Charmerende feriehus nær Snogebæk strand
Sommerhus - 6 personer - Ellegade - Snogebæk - 3730 - Nexø
Alternative emner
I nærheden (248)6 personer
Oversigt
Emne nr.: 130-I63243
7 overnatninger
Fra
DKK 4.623,-
Valgfri rengøring: DKK 857,-
Hyggeligt feriehus i Snogebæk med terrasse, brændeovn og kort afstand til strand og byliv.
- Soverum 2
- Badeværelser 1
- Boligareal 88 m²
- Husdyr Ikke tilladt
- Tilbyder miniferie Ja
- Afstand vand 600 m
- Afstand indkøb 600 m
- Internet Ja
- Brændeovn Ja
- Aircondition Ja
- Vaskemaskine Ja
- Opvaskemaskine Ja
- Ikkeryger Ja
- Energivenligt Ja
Beskrivelse
Feriebolig i smuk, ældre byejendom i hyggelige Snogebæk.
Her får I nogle skønne feriedage, uanset om sæsonen er til indendørshygge eller sol i haven. I opholdsrummet kan I tænde op i brændeovnen på kølige dage og give jer god tid til madlavningen i køkkenet, mens børnene slapper af i de bløde møbler.
Når vejret er lunt, kan I rykke selskabet ud på terrassen med havemøbler og grill. Rundt om huset er der en dejlig grund, hvor I kan lytte til fuglefløjt og nyde freden og roen samt duften af de forskellige frugttræer.
Snogebæk har en masse at byde på til det ubekymrede ferieliv. Lige fra en flot sandstrand til den charmerende havn med den fine, gamle træbro og skønne kræmmermarkeder, moderne røgeri og den smukke Povls Kirke i romansk byggestil. I befinder jer på den sydøstlige del af Bornholms kystlinje, og derfor har I heller ikke langt til alle de spændende seværdigheder i Nexø og den forrygende strand ved Dueodde.
Fra dette charmerende hus er der få minutters gang til Snogebæks mange tilbud samt en børnevenlig sandstrand.
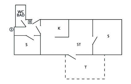
Feriebolig
Soveværelse (nr. 1) - 2 Sovepladser. (Dobbeltseng(e)). 2 Sovepladser. (Etageseng(e)).
Soveværelse (nr. 2) - 2 Sovepladser. (Enkeltseng(e)).
Komb. spisestue/køkken
Badeværelse (nr. 1) - WC. Varmt og koldt vand. Bruser
Terrasse el. lignende - Åben terrasse
Her får I nogle skønne feriedage, uanset om sæsonen er til indendørshygge eller sol i haven. I opholdsrummet kan I tænde op i brændeovnen på kølige dage og give jer god tid til madlavningen i køkkenet, mens børnene slapper af i de bløde møbler.
Når vejret er lunt, kan I rykke selskabet ud på terrassen med havemøbler og grill. Rundt om huset er der en dejlig grund, hvor I kan lytte til fuglefløjt og nyde freden og roen samt duften af de forskellige frugttræer.
Snogebæk har en masse at byde på til det ubekymrede ferieliv. Lige fra en flot sandstrand til den charmerende havn med den fine, gamle træbro og skønne kræmmermarkeder, moderne røgeri og den smukke Povls Kirke i romansk byggestil. I befinder jer på den sydøstlige del af Bornholms kystlinje, og derfor har I heller ikke langt til alle de spændende seværdigheder i Nexø og den forrygende strand ved Dueodde.
Fra dette charmerende hus er der få minutters gang til Snogebæks mange tilbud samt en børnevenlig sandstrand.
Feriebolig
Soveværelse (nr. 1) - 2 Sovepladser. (Dobbeltseng(e)). 2 Sovepladser. (Etageseng(e)).
Soveværelse (nr. 2) - 2 Sovepladser. (Enkeltseng(e)).
Komb. spisestue/køkken
Badeværelse (nr. 1) - WC. Varmt og koldt vand. Bruser
Terrasse el. lignende - Åben terrasse
Vores gæsteanmeldelser Eksterne anmeldelser
Faciliteter
-
Bad
-
WC. Varmt og koldt vand
-
-
Diverse
-
Antal gratis børn (< 4 år)1
-
Antal solvogne2
-
Delvis isoleret
-
EL ekskl.
-
Feriehus88 m²
-
Gratis brænde
-
Helårshus
-
Kæledyr Nej
-
Opvarmning alternativ, Varmepumpe
-
Opvarmning, Elvarme
-
Parabol, tyske kanaler
-
Renoveret2010
-
Selvbetjent check-in
-
Vand inkl.
-
Vaskemaskine
-
-
El artikler
-
1 DVD
-
1 TV
-
CD afspiller
-
DK-DR1/TV2
-
Internet (trådløst)
-
-
I nærheden
-
Afs. til nærmeste vand/badning600 m
-
Afstand til indkøb600 m
-
Golfbane6,7 km
-
-
Indendørs
-
Brændeovn
-
Klimaanlæg
-
-
Koncepter
-
Energispare hus
-
Husdyrfrit
-
Røgfrit hus
-
Tæt på havet
-
-
Køkken
-
El-plader
-
Emhætte
-
Kaffemaskine
-
Køkkenet har v/k vand
-
Køleskab
-
Mikroovn
-
Opvaskemaskine
-
-
Udendørs
-
Gratis garage på grunden
-
Grill
-
Havemøbler
-
Miniferie
Der er begrænset mulighed for miniferie hele året, typisk uden for højsæsonen.
Priser og kalender
Kalender
Varighed
Pris
Periode
- Ankomst
- Afrejse
- Varighed
- 1 uge
Personer
Op til 6 personer
Bemærk
Ankomst er ikke valgt.
