Hyggeligt feriehus med havudsigt i Binderup
Sommerhus - 6 personer - Kausvej - Binderup - 6091 - Bjert
Alternative emner
I nærheden (170)6 personer
Oversigt
Emne nr.: 121-61-6245
7 overnatninger
Fra
DKK 3.223,-
Valgfri rengøring: DKK 1.236,-
Hyggeligt feriehus i Binderup med havudsigt og nærhed til stranden, perfekt til en afslappende ferie i naturskønne omgivelser.
- Soverum 3
- Badeværelser 1
- Boligareal 81 m²
- Grundareal 454 m²
- Husdyr Ikke tilladt
- Tilbyder miniferie Ja
- Afstand vand 50 m
- Afstand indkøb 6.500 m
- Internet Ja
- Brændeovn Ja
- Udsigt til vand Ja
- Indhegnet område Ja
- Opvaskemaskine Ja
- Ikkeryger Ja
- Energivenligt Ja
Beskrivelse
Kun et stenkast fra vandet i skønne Binderup ligger dette dejlige feriehus, der med sin varme og hyggelige atmosfære danner den ideelle ramme om en afslappende ferie. Huset er indrettet med plads til op til seks personer og byder på en stemning, hvor man straks føler sig hjemme. Fra huset er der havkig til den smukke strand, og beliggenheden gør det nemt at tage en hurtig dukkert eller nyde en stille stund med udsigt over vandet.
Såvel inde som ude er der kræset for detaljerne, og husets ejer har nøje udvalgt materialer og møbler, som tilsammen skaber et skønt feriemiljø. Her er det nemt at finde ro, slappe af og bare nyde tiden med hinanden - uanset om I samles omkring måltiderne, nyder solen på terrassen eller tager på opdagelse i det smukke område.
Indretning
Sommerhuset egner sig til 6 personer. Ferieboligen er på 81 m² og er bygget i 1997. I 2024 gennemgik ferieboligen en renovering. Det er ikke tilladt at medbringe husdyr. Ferieboligen er udstyret med energibesparende luft til luft varmepumpe. Frysekapacitet på 30 liter. Der er desuden brændeovn.
Udenfor
Ferieboligen er beliggende på en 454 m² stor naturgrund. Grunden er indhegnet. Der er 50 m til havet. Nærmeste forretning er beliggende i en afstand af 6500 m. Til ferieboligen hører åbent terrasseareal. Desuden er der overdækket terrasse. Bålsted. Grill til rådighed. Parkering ved ferieboligen.
Soveforhold
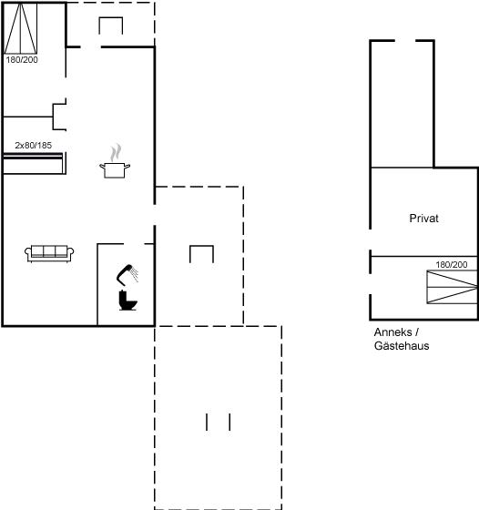
Der er i alt 3 soveværelser. Sovepladserne fordeler sig på: 4 sovepladser i dobbeltsenge. 2 sovepladser i køjeseng. 2 af disse sovepladser befinder sig i anneks.
Køkken
Køkkenet er udstyret med 1 køleskab. Der er 4 induktionskogeplader, varmluftovn, mikrobølgeovn, Airfryer, blender samt opvaskemaskine.
Toilet og bad
Der er 1 badeværelse med bruseniche og 1 toilet.
Multimedier
1 Smart-TV. Radio. Der er 1-3 danske kanaler. 1-3 svenske kanaler. 1-3 tyske kanaler. Der er trådløst internet til rådighed.
Værd at vide
Ingen udlejning til ungdomsgrupper, hvor alle er 15-25 år. Rygning ikke tilladt. Ved overtrædelse af forbuddet opkræves et gebyr på minimum DKK 3.000,-.
Indretning
Sommerhuset egner sig til 6 personer. Ferieboligen er på 81 m² og er bygget i 1997. I 2024 gennemgik ferieboligen en renovering. Det er ikke tilladt at medbringe husdyr. Ferieboligen er udstyret med energibesparende luft til luft varmepumpe. Frysekapacitet på 30 liter. Der er desuden brændeovn.
Udenfor
Ferieboligen er beliggende på en 454 m² stor naturgrund. Grunden er indhegnet. Der er 50 m til havet. Nærmeste forretning er beliggende i en afstand af 6500 m. Til ferieboligen hører åbent terrasseareal. Desuden er der overdækket terrasse. Bålsted. Grill til rådighed. Parkering ved ferieboligen.
Soveforhold
Der er i alt 3 soveværelser. Sovepladserne fordeler sig på: 4 sovepladser i dobbeltsenge. 2 sovepladser i køjeseng. 2 af disse sovepladser befinder sig i anneks.
Køkken
Køkkenet er udstyret med 1 køleskab. Der er 4 induktionskogeplader, varmluftovn, mikrobølgeovn, Airfryer, blender samt opvaskemaskine.
Toilet og bad
Der er 1 badeværelse med bruseniche og 1 toilet.
Multimedier
1 Smart-TV. Radio. Der er 1-3 danske kanaler. 1-3 svenske kanaler. 1-3 tyske kanaler. Der er trådløst internet til rådighed.
Værd at vide
Ingen udlejning til ungdomsgrupper, hvor alle er 15-25 år. Rygning ikke tilladt. Ved overtrædelse af forbuddet opkræves et gebyr på minimum DKK 3.000,-.
Alle faciliteter
-
Adgang til ferieboligen
-
Nøgleboks med kode
-
-
Bemærk
-
Fokushus
-
Ingen håndværkere efter anmodning
-
Ingen ungdomsgrupper efter anmodning
-
Rygning er forbudt
-
-
Indretning
-
Antal voksne inkl. 4-11 år6
-
Bebygget areal81 m²
-
Brændeovn1
-
Byggeår1997
-
Feriebolig
-
Frysekapacitet (antal liter)30
-
Renovering2024
-
Varmepumpe
-
Varmepumpe luft til luft
-
-
Køkken
-
Airfryer1
-
Antal induktionskogeplader4
-
Køleskab1
-
Mikrobølgeovn1
-
Opvaskemaskine1
-
Varmluftovn1
-
-
Multimedier
-
0-3 danske kanaler
-
0-3 svenske kanaler
-
0-3 tyske kanaler
-
Antal tv'er1
-
Download200
-
Radio
-
Smart-Tv1
-
Trådløst internet
-
Upload200
-
-
Soveforhold
-
Anneks (antal sovepladser)
-
Antal soveværelser3
-
Dobbeltseng (antal sovepladser)4
-
Køjeseng (antal sovepladser)2
-
Soveplads ikke i soveværelset
-
-
Toilet og bad
-
Antal badeværelser1
-
Antal toiletter1
-
Brusekabine
-
-
Udenfor
-
Butik6,5 km
-
Bålplads
-
Grill1
-
Hav50 m
-
Indhegnet plads
-
Natursted
-
Overdækket terrasse
-
Parkeringsplads ved huset
-
Størrelse af grunden454 m²
-
Terrasse
-
-
Udsigt
-
Havudsigt fra feriehuset
-
Havudsigt fra pladsen
-
Miniferie
Der er begrænset mulighed for miniferie hele året, typisk uden for højsæsonen.
Priser og kalender
Kalender
Varighed
Pris
Periode
- Ankomst
- Afrejse
- Varighed
- 1 uge
Personer
Op til 6 personer
Bemærk
Ankomst er ikke valgt.
