Sommerhus - 8 personer - Bjerregårdsvej 38 B - Bjerregård - 6960 - Hvide Sande
Alternative emner
I nærheden (775)Oversigt
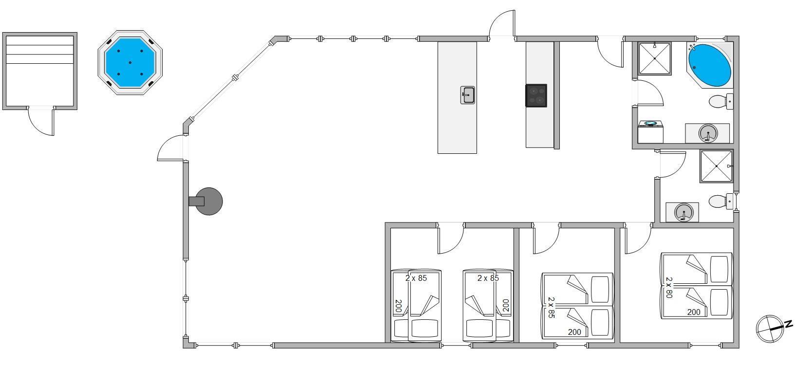
- Soverum 3
- Badeværelser 2
- Boligareal 112 m²
- Grundareal 1.203 m²
- Husdyr 1
- Tilbyder miniferie Nej
- Afstand vand 750 m
- Afstand indkøb 850 m
- Spa Ja
- Sauna Ja
- Internet Ja
- Parabol/kabel TV Ja
- Brændeovn Ja
- Vaskemaskine Ja
- Tørretumbler Ja
- Opvaskemaskine Ja
- Ikkeryger Ja
- Ladestander til elbil Ja
- Energivenligt Ja
Beskrivelse
På Bjerregårdsvej 38 B finder I dette moderne sommerhus til 8 personer. Sommerhuset har flere lækre faciliteter, som indbyder til en afslappende ferie. Den delvist overdækkede og afskærmede terrasse er perfekt til hyggelige grillaftener med familien. Det er tilladt at medbringe jeres hund til sommerhuset.
Lyst opholdsrum med brændeovn
Sommerhusets opholdsrum har plads til hele familien og ligger i åben forbindelse med køkkenet. Her skaber loft til kip og de store vinduer et rigtig godt lysindfald i rummet, så det fremstår lyst og indbydende. Her er en hyggelig atmosfære med en fin brændeovn som spreder varme og ekstra hygge til jeres ferie.
Sommerhuset har en hyggelig og praktisk indretning med både opvaskemaskine samt vaskemaskine og tørretumbler. Derfor behøver I ikke bekymre jer meget om de huslige pligter. I køkkenet er der desuden installeret en vinkøler, så I kan nyde et koldt glas rosé på en lun sommeraften.
De 8 sovepladser fordeler sig på 3 gode soveværelser. I finder en dobbeltseng på 2 af værelserne, og på det sidste værelse er der plads til 4 personer i de 2 køjesenge. Her er desuden en fin hems med et fladskærms-TV, hvor børnene kan tilslutte de medbragte spillekonsoller.
Lademuligheden for el bilen er en ladestander med type 2 stik.
Udendørs wellness med sauna, udebruser og spabad
Sommerhuset er perfekt til jer, som ønsker ro og afslapning på ferien. Sommerhuset har 2 badeværelser med gulvvarme, og på det ene er der endda et spabad, som I kan hoppe i efter en dag i naturen.
Også udendørs er der lagt op til velvære og afslapning. Der findes intet bedre end at slappe af og få varmen efter en lang dag i den friske havluft. Det har I mulighed for I dette sommerhus, som har udendørs bruser, spabad og sauna. Udebruseren kan benyttes fra april til november.
Nyd den store terrasse, som omkranser sommerhuset på alle sider
Der er en i alt 160 m² stor flisebelagt terrasse hele vejen rundt om sommerhuset. Det giver mulighed for at nyde udelivet på terrassen dagen lang, ligesom der her altid kan findes læ. Den delvist overdækkede del af terrassen er ideel til hyggelige grillaftener, hvor man evt. kan tilberede de friskfangede fisk fra Hvide Sande. Ved feriehuset står både kul- og gasgrill til rådighed. Terrassen er udstyret med en el-varmer, så I kan blive ude, selvom det begynder at blive køligt. Mod øst er der træer som giver både privatliv og læ. Og har man medbragt cykler, er der et godt stisystem fra Bjerregård til Hvide Sande.
På naturgrunden er der en sandkasse og en gynge, som er til stor glæde for børnene. Til de lidt ældre er der et stort skakspil på terrassen, som I kan afprøve.
Faciliteter
-
Opholdsrum
-
CD afspiller
-
DVD-afspiller1
-
Gulv: Trælaminat
-
Radio
-
Brændeovn
-
Fladskærms-TV2
-
-
Soverum
-
Gulv: Trælaminat
-
Dobbeltsenge2
-
Køjesenge2
-
Sovepladser8
-
Soverum3
-
1. soverum/sengestørrelser2x80x200
-
2. soverum/sengestørrelser2x85x200
-
3. soverum/sengestørrelser4X85X200
-
-
Køkken
-
Komfur: Induktion m. ovn
-
Køleskab
-
Opvaskemaskine
-
Mikroovn
-
Separat fryser /L59
-
-
Baderum
-
Gulvvarme bad
-
Antal badeværelser2
-
Tømmespa, antal pers.2
-
-
Objektinfo - Inde
-
Areal: Hus m²112
-
Byggeår2014
-
Barneseng1
-
Højstol1
-
Husdyr tilladt
-
Husdyr antal, max1
-
Ikke ryger hus
-
Gratis Internet
-
Personantal8
-
Tyske tv-programmer
-
Tørretumbler
-
Varme: Elvarme
-
Varme: Varmepumpe luft til luft
-
Vaskemaskine
-
Parabol (enkelte danske og tyske kanaler)
-
-
Objektinfo - ude
-
Afstand hav750 m
-
Afstand indkøb850 m
-
Areal: Grund m²1203
-
Gynge
-
Sandkasse
-
Grill
-
Havemøbler
-
Solvogne
-
Terrasse: åben
-
Terrasse: Overdækket
-
Redskabsrum
-
Naturgrund
-
Affald hentes:Mandag
-
Affald: Liter240
-
Udespa: antal pers.4
-
Gasgrill
-
Ladestik til el-bil
-
Udesauna
-
Udebruser (April - 1. november)
-
Udespa: Gæst fylder
-
-
Koncepter
-
Skiftedag: Fredag
-
Varme: 24 timer f. ankomst
-
Vandaflæsning
-
Miniferie tilladt (KUN gl. Schultz)
-
Priser og kalender
Kalender
Pris
- Ankomst
- Afrejse
- Varighed
- 1 uge
