Sommerhus - 4 personer - Julianevej - Bjerregård - 6960 - Hvide Sande
Alternative emner
I nærheden (923)Oversigt
- Soverum 3
- Badeværelser 1
- Boligareal 73 m²
- Grundareal 1.300 m²
- Husdyr Ikke tilladt
- Tilbyder miniferie Nej
- Afstand vand 700 m
- Afstand indkøb 600 m
- Internet Ja
- Parabol/kabel TV Ja
- Brændeovn Ja
- Vaskemaskine Ja
- Tørretumbler Ja
- Opvaskemaskine Ja
- Ikkeryger Ja
- Energivenligt Ja
Beskrivelse
På Julianevej 28 ligger dette fine sommerhus, som har lukket terrasse. Med kun 700 meter til stranden og cirka 600 meter til købmanden, ligger sommerhuset rigtig fint til en dejlig ferie med familien eller vennerne. Sommerhuset er udstyret med både vaskemaskine og opvaskemaskine og en hurtig, gratis internetforbindelse.
Sommerhus til 4 personer på Julianevej 28
Sommerhusets hjerte er det hyggelige og åbne køkken- og stueområde, som ved første blik indbyder til fælles hygge, madlavning og samvær generelt. Det store vinduesparti lader masser af lys slippe ind og giver samtidig en flot udsigt ud over området. Den stilfulde indretning er afstemt i hele huset og giver en følelse af harmoni og komfort. Her vil I med det samme føle jer hjemme og nyde ferien i fulde drag.
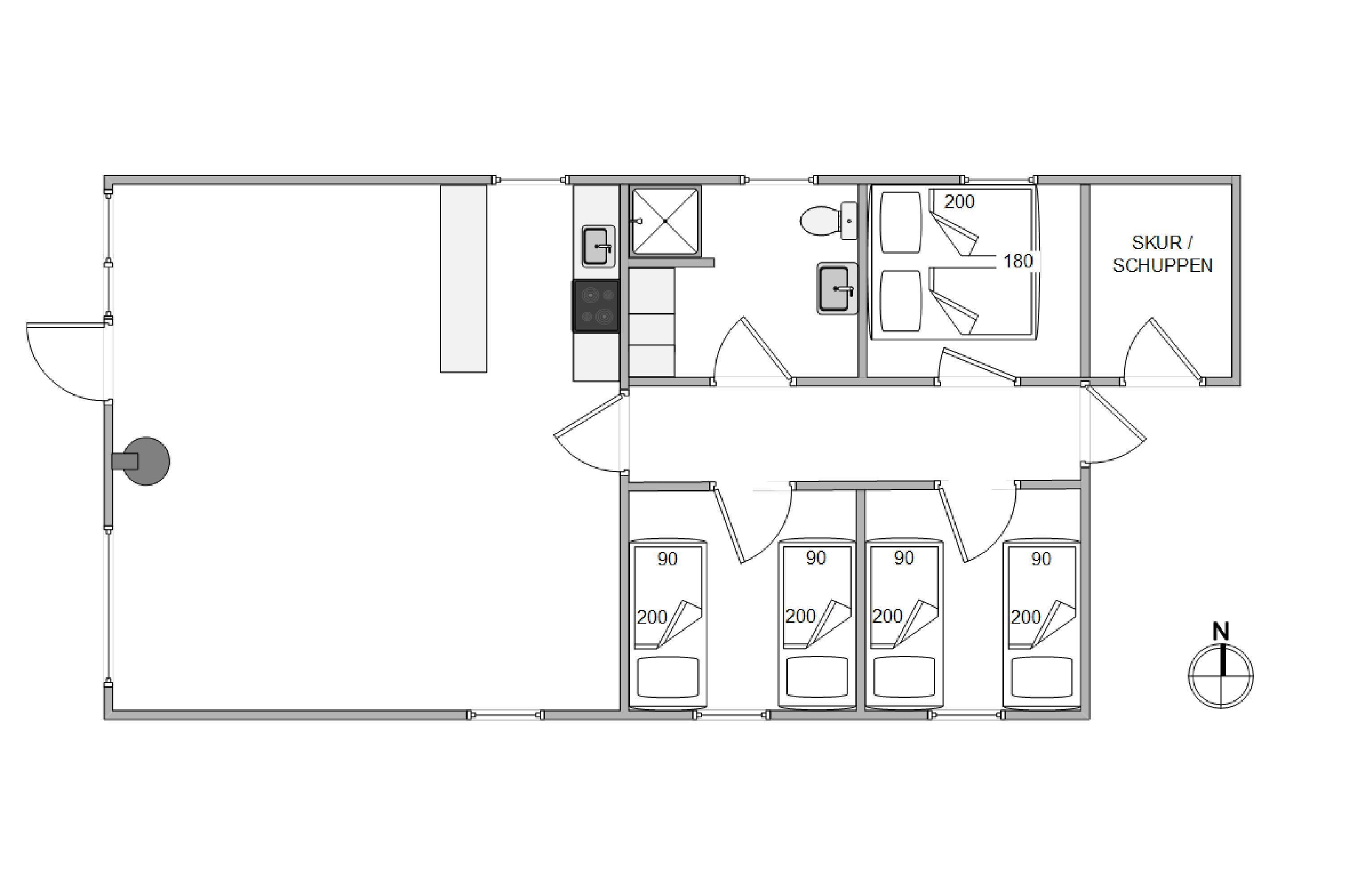
I sommerhuset er der plads til op til 4 personer. Sovepladserne er fordelt på 3 soveværelser - ét med dobbeltseng og resten med 2 enkeltsenge i hver. Sommerhuset er derfor ganske ideelt for familier med børn. Også opvaskemaskinen, vaskemaskinen og tørretumbleren er meget praktiske for familien og vil spare jer for ekstra arbejde, så I virkelig kan slappe af og holde ferie.
Den lukkede terrasse indbyder til sol og grill
Endnu et stort plus ved sommerhuset er den lukkede terrasse. Her kan børnene lege i det gode vejr, uden I behøver at bekymre jer om, at de begynder at udforske området uden jer. På terrassen står der havemøbler såvel som grill klar til jer, og der er alle muligheder for en skøn grillaften på terrassen med familien på de lune sommeraftener.
Tæt på strand og indkøbsmuligheder
Sommerhuset ligger tæt på både stranden og købmanden, som begge kan nås på gåben – for store som små. På den lange, flotte sandstrand kan I helt sikkert hurtigt skabe masser af nye, skønne ferieminder, og det kræver ikke mere end en lille, hyggelig gåtur i ferieomgivelserne, når der skal hentes rundstykker til morgenbordet eller handles ind til en grillaften.
Faciliteter
-
Opholdsrum
-
CD afspiller
-
DVD-afspiller1
-
Gulv: Klinker
-
Radio
-
Brændeovn
-
Fladskærms-TV1
-
Dock/Bluetooth enhed
-
-
Soverum
-
Gulv: Tæppe
-
Dobbeltsenge1
-
Enkeltsenge4
-
Sovepladser6
-
Soverum3
-
-
Køkken
-
Komfur: Induktion m. ovn
-
Køleskab
-
Opvaskemaskine
-
Mikroovn
-
Separat fryser /L80
-
-
Baderum
-
Gulvvarme bad
-
Antal badeværelser1
-
-
Objektinfo - Inde
-
Areal: Hus m²73
-
Byggeår1970
-
Ikke ryger hus
-
Personantal4
-
Renoveret2016
-
Tyske tv-programmer
-
Tørretumbler
-
Varme: Elvarme
-
Varme: Varmepumpe luft til luft
-
Vaskemaskine
-
Parabol (enkelte danske og tyske kanaler)
-
Gratis fiber Internet
-
-
Objektinfo - ude
-
Afstand hav700 m
-
Afstand indkøb600 m
-
Areal: Grund m²1300
-
Sandkasse
-
Havemøbler
-
Solvogne
-
Parasol
-
Terrasse: Afskærmet
-
Terrasse: Lukket
-
Terrasse: Overdækket
-
Redskabsrum
-
Naturgrund
-
Affald hentes:Mandag
-
Affald: Liter240
-
Gasgrill
-
-
Koncepter
-
Skiftedag: Lørdag
-
Varme: 48 timer før ankomst
-
Priser og kalender
Kalender
Pris
- Ankomst
- Afrejse
- Varighed
- 1 uge
