Sommerhus - 6 personer - Sydslugen - 6857 - Blåvand
Alternative emner
I nærheden (465)Oversigt
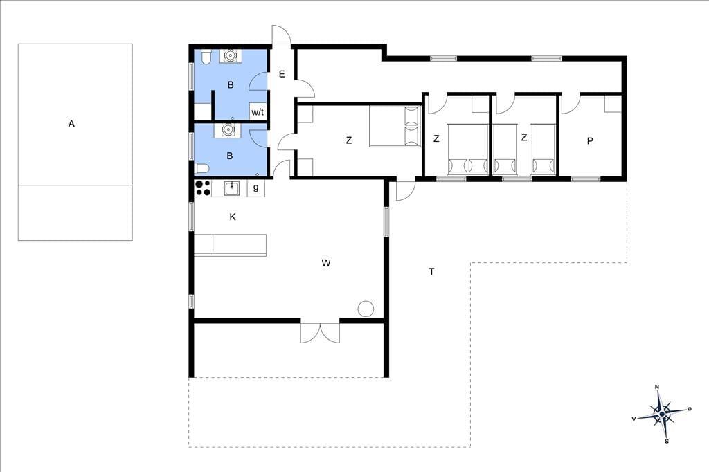
- Soverum 3
- Badeværelser 2
- Boligareal 94 m²
- Grundareal 400 m²
- Husdyr 2
- Tilbyder miniferie Nej
- Afstand vand 350 m
- Afstand indkøb 1.800 m
- Internet Ja
- Parabol/kabel TV Ja
- Brændeovn Ja
- Aircondition Ja
- Vaskemaskine Ja
- Tørretumbler Ja
- Opvaskemaskine Ja
- Ikkeryger Ja
- Ladestander til elbil Ja
- Energivenligt Ja
Beskrivelse
I får jeres helt egen solbeskinnede oase med dette sommerhus, der ligger på en dejlig, fredfyldt naturgrund omgivet af Blåvands smukke natur. Her er der åbne vidder, lyng og klitter, og der er blot 350 meter ned til den brede og børnevenlige sandstrand.
Velkommen indenfor
Huset har græs på taget, sortmalet træfacade og hvide vinduesrammer – et rigtigt sommerhus, som emmer og fred og idyl. Indvendig er der lyst og indbydende, og indretningen understøtter ferieturens hyggelige samvær med venner og familie. I stuen er der spisebord og sofagruppe, som bliver lunet ekstra op af brændeovnen i hjørnet. Det tosidede køkken ligger i åben forbindelse med opholdsrummet, så madlavningen kan blive en naturlig del af samværet. Huset indeholder tre soverum, hvoraf det største har direkte udgang til terrassen – det er en særlig luksus at kunne gå direkte fra sengen og ud i dagens første solstråler. Endelig får I to badeværelser med brus.
Nyd livet udenfor
Fra stuen er der direkte udgang til terrassen, som på de varme sommerdage bliver en naturlig udvidelse af opholdsarealet. Terrassen følger husets facade mod syd og øst, så der er god mulighed for at vælge sol eller skygge efter behov. Og ellers er det bare med at læne sig tilbage og nyde de fredfyldte omgivelser med en god krimi eller en podcast. Maden kan naturligvis serveres under åben himmel, og skulle duggen falde om aftenen, kan I rykke ind under den overdækkede del af terrassen.
Kom tæt på de lokale oplevelser
Mod vest har du klitterne og Blåvand fyr, syd blot 350 m. væk har du den flotte bredde og børnevenlige sandstrand. Til nord har du heden så langt øjet rækker og til øst har du byen. Beliggenheden fås ikke meget bedre i Blåvand - med masser af fred og idylliske omgivelser.
Huset ligger fredeligt placeret på en lukket vej. Det er en dejlig børnevenlig strand, hvor I kan bade i Vesterhavet eller dase i sandet. Med blot 1 kilometer til Blåvandshuk Fyr, kan I opleve den fantastiske panoramaudsigt fra toppen af tårnet. Vi kan varmt anbefale en gåtur ud over klitter og rundt om fyret og tilbage langs Blåvands Strand, en dejlig tur på godt 2 km. I Blåvands hyggelige bymidte finder I et godt udvalg af helårsåbne spisesteder, cafeer og butikker. Blåvand Zoo ligger også tæt på, og I bør heller ikke snyde jer selv for et besøg på Tirpitz-museet. Alt i alt får I med dette sommerhus en beliggenhed, der giver de bedste betingelser for afslappende feriedage med både natur og kultur og masser af badeture i det skønne Vesterhav.
GRATIS! Udlån af trækvogne, barnestole og barnesenge (kan hentes og afleveres på det nærmeste bureau).
Vores gæsteanmeldelser Eksterne anmeldelser
Faciliteter
-
Hus Info
-
2 x Bruser
-
2 x WC
-
Antal husdyr2
-
Antal voksne6
-
Byggeår1979
-
Grundareal / Naturgrund400 m²
-
Husareal94 m²
-
Renoveringsår2018
-
-
Afstande
-
Afstand golfbane9 km
-
Afstand indkøb / Helårsbutik1,8 km
-
Afstand restaurant1,8 km
-
Afstand strand / Sandstrand350 m
-
-
Energi / Opvarmning
-
Brændeovn
-
Elvarme
-
Varmepumpe / Med køl
-
-
Hårde hvidevarer
-
Elkedel
-
Emhætte
-
Fryser107
-
Kaffemaskine
-
Komfur
-
Køleskab134
-
Opvaskemaskine
-
Tørretumbler
-
Vaskemaskine
-
-
Multimedier
-
Dansk tv
-
Gratis Wi-Fi - Over 20 Mbit
-
Kabel-TV
-
Norsk TV
-
Svensk TV
-
TV
-
Tysk TV
-
-
Ekstra
-
2 x Barnestol
-
Golfferie
-
-
Udenfor
-
Carport
-
Grill
-
Havemøbler
-
Liggestole3
-
Parasol
-
Parkering på grunden
-
Terrasse
-
-
Diverse
-
2 x Dobbeltseng 160 x 200 cm
-
2 x Enkeltseng 80 x 200 cm
-
2 x Gulvvarme
-
-
Regler
-
Opladning af elbil tilladt / Lader til elbil forefindes (Type 2-stik, medbring kabel)
-
Rygning ikke tilladt
-
-
Pris inklusiv
-
Slutrengøring inkl.
-
Priser og kalender
Kalender
Pris
- Ankomst
- Afrejse
- Varighed
- 1 uge
