Historisk klitgård med spa nær Blåvand
  
  Sommerhus - 15 personer - Kallesmærskvej - 6857 - Blåvand
Alternative emner
I nærheden (949)15 personer
    Oversigt
Emne nr.: 121-26-0855
    
7 overnatninger
          
                  Fra
                DKK 5.379,-
              
             
              
        Valgfri rengøring: DKK 1.667,-
      
    Oplev historisk klitgård med moderne komfort og naturskøn beliggenhed nær Blåvand.
  
            - Soverum 6
- Badeværelser 4
- Boligareal 255 m²
- Grundareal 4.000 m²
- Husdyr Ikke tilladt
- Tilbyder miniferie Ja
- Afstand vand 2 km
- Afstand indkøb 850 m
- Spa Ja
- Internet Ja
- Brændeovn Ja
- Vaskemaskine Ja
- Tørretumbler Ja
- Opvaskemaskine Ja
- Ikkeryger Ja
Beskrivelse
      Denne skønne klitgård fra 1700-tallet ligger i et fredet klitlandskab på en ca. 20.000 m² stor grund. 
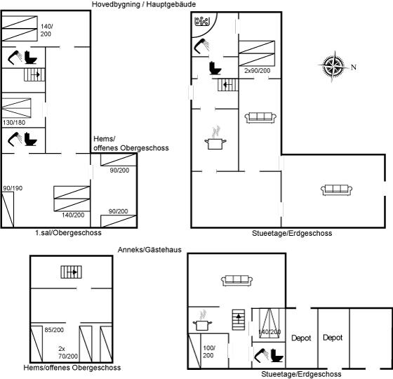
Hovedbygningen, der er omgivet af græsplæner, terrasser og læpladser, består af to længer samt af et L-formet annekshus, i alt ca. 300 m2.  Der bydes på klassisk og hyggelig vestkyst-stemning og udsøgt landlig stil. I 2004-2006 blev husene totalrenoveret indvendigt med bevarelse af de oprindelige ydervægge og træværk i tømmer fra strandingsgods. Alt indvendigt er helt tidssvarende med gulvvarme, helårsisolering, nye badeværelser og to nye køkkener (et i hovedbygningen og et i annekset). Alt er holdt i den oprindelige stil, ligesom husets udvendige facade og stråtag, som Varde Kommune har bestemt bevaringsværdigt. Af de 16 sovepladser findes der én i en alkove og to efter gennemgang af et andet soveværelse.
Gården er charmerende og afsides beliggende i et klitterræn op mod Kallesmærsk Hede. Man er tæt på den smukke natur og klitlandskabet. Der er ca. 2,5 km til sandstranden. Til ejendommen hører en privat strandgrund, hvor der kan parkeres cykler og biler.
Velkommen til!
Indretning
Sommerhuset egner sig til 15 personer. 5 af sovepladserne er kun egnet til større børn (4-11 år). Ferieboligen er på 255 m² og er bygget i 1859. I 2002 gennemgik ferieboligen en delvis renovering. Det er ikke tilladt at medbringe husdyr. Ferieboligen har vaskemaskine. Tørretumbler. Endvidere pejs.
Udenfor
Ferieboligen er beliggende på en 4000 m² stor naturgrund. Der er 2000 m til havet. Nærmeste forretning er beliggende i en afstand af 850 m. Til ferieboligen hører åbent terrasseareal. Parkering ved ferieboligen.
Soveforhold
Der er i alt 6 soveværelser. Sovepladserne fordeler sig på: 10 sovepladser i dobbeltsenge. 7 sovepladser i enkeltsenge. 3 af disse sovepladser befinder sig i et anneks og 5 af disse sovepladser fordeler sig på 2 hemse.
Køkken
Køkkenet er udstyret med 2 køleskabe. Der er 4 elkogeplader, varmluftovn, mikrobølgeovn samt opvaskemaskine.
Toilet og bad
Der er 4 badeværelser med bruseniche og 4 toiletter, heraf 1 gæstetoilet. Der er gulvvarme på 1 badeværelse.
Spa
Der er mulighed for afslapning i indendørs spa til 2 personer.
Multimedier
I ferieboligen er der 3 TV. Radio. Der er 1-3 danske kanaler. 1-3 tyske kanaler. Der er trådløst internet til rådighed.
Værd at vide
Ingen udlejning til ungdomsgrupper, hvor alle er 15-25 år. Rygning ikke tilladt. Ved overtrædelse af forbuddet opkræves et gebyr på minimum DKK 3.000,-.
  Indretning
Sommerhuset egner sig til 15 personer. 5 af sovepladserne er kun egnet til større børn (4-11 år). Ferieboligen er på 255 m² og er bygget i 1859. I 2002 gennemgik ferieboligen en delvis renovering. Det er ikke tilladt at medbringe husdyr. Ferieboligen har vaskemaskine. Tørretumbler. Endvidere pejs.
Udenfor
Ferieboligen er beliggende på en 4000 m² stor naturgrund. Der er 2000 m til havet. Nærmeste forretning er beliggende i en afstand af 850 m. Til ferieboligen hører åbent terrasseareal. Parkering ved ferieboligen.
Soveforhold
Der er i alt 6 soveværelser. Sovepladserne fordeler sig på: 10 sovepladser i dobbeltsenge. 7 sovepladser i enkeltsenge. 3 af disse sovepladser befinder sig i et anneks og 5 af disse sovepladser fordeler sig på 2 hemse.
Køkken
Køkkenet er udstyret med 2 køleskabe. Der er 4 elkogeplader, varmluftovn, mikrobølgeovn samt opvaskemaskine.
Toilet og bad
Der er 4 badeværelser med bruseniche og 4 toiletter, heraf 1 gæstetoilet. Der er gulvvarme på 1 badeværelse.
Spa
Der er mulighed for afslapning i indendørs spa til 2 personer.
Multimedier
I ferieboligen er der 3 TV. Radio. Der er 1-3 danske kanaler. 1-3 tyske kanaler. Der er trådløst internet til rådighed.
Værd at vide
Ingen udlejning til ungdomsgrupper, hvor alle er 15-25 år. Rygning ikke tilladt. Ved overtrædelse af forbuddet opkræves et gebyr på minimum DKK 3.000,-.
Vores gæsteanmeldelser Eksterne anmeldelser
Faciliteter
- 
            Bemærk- 
                  Ingen ungdomsgrupper efter anmodning
- 
                  Rygning er forbudt
 
- 
                  
- 
            Indretning- 
                  Antal børn 4-11 år5
- 
                  Antal voksne inkl. 4-11 år15
- 
                  Bebygget areal255 m²
- 
                  Byggeår1859
- 
                  Feriebolig
- 
                  Pejs2
- 
                  Renoveringsår2002
- 
                  Tørretumbler1
- 
                  Vaskemaskine1
 
- 
                  
- 
            Køkken- 
                  Antal elektriske kogeplader4
- 
                  Køleskab2
- 
                  Mikrobølgeovn1
- 
                  Opvaskemaskine1
- 
                  Varmluftovn1
 
- 
                  
- 
            Multimedier- 
                  0-3 danske kanaler
- 
                  0-3 tyske kanaler
- 
                  Antal tv'er3
- 
                  Radio
- 
                  Trådløst internet
 
- 
                  
- 
            Soveforhold- 
                  Antal soveværelser6
- 
                  Bilag
- 
                  Dobbeltseng10
- 
                  Enkeltseng7
- 
                  Sengeloft
- 
                  Soveplads ikke i soveværelset
 
- 
                  
- 
            Spa- 
                  Indendørs spabad (antal personer)2
 
- 
                  
- 
            Toilet og bad- 
                  Antal badeværelser4
- 
                  Antal gæstebadeværelser1
- 
                  Antal toiletter4
- 
                  Brusekabine
- 
                  Gulvvarme1
 
- 
                  
- 
            Udenfor- 
                  Butik850 m
- 
                  Hav2 km
- 
                  Natursted
- 
                  Parkeringsplads ved huset
- 
                  Størrelse af grunden4000 m²
- 
                  Terrasse
 
- 
                  
Miniferie
        Der er mulighed for miniferie i udvalgte perioder af året.
      
    Priser og kalender
Kalender
Varighed
    
  Pris
Periode
        - Ankomst
- Afrejse
- Varighed
- 1 uge
Personer
    
Op til 15 personer    
  Bemærk
Ankomst er ikke valgt.
      
 
           
           
           
           
           
           
           
           
           
           
           
           
           
           
           
           
           
           
           
           
           
           
           
           
           
           
           
           
           
           
           
           
           
           
           
           
           
           
           
           
           
           
           
           
           
           
           
          