Sommerhus - 6 personer - Midtbyvej - 6857 - Blåvand
Alternative emner
I nærheden (1.020)Oversigt
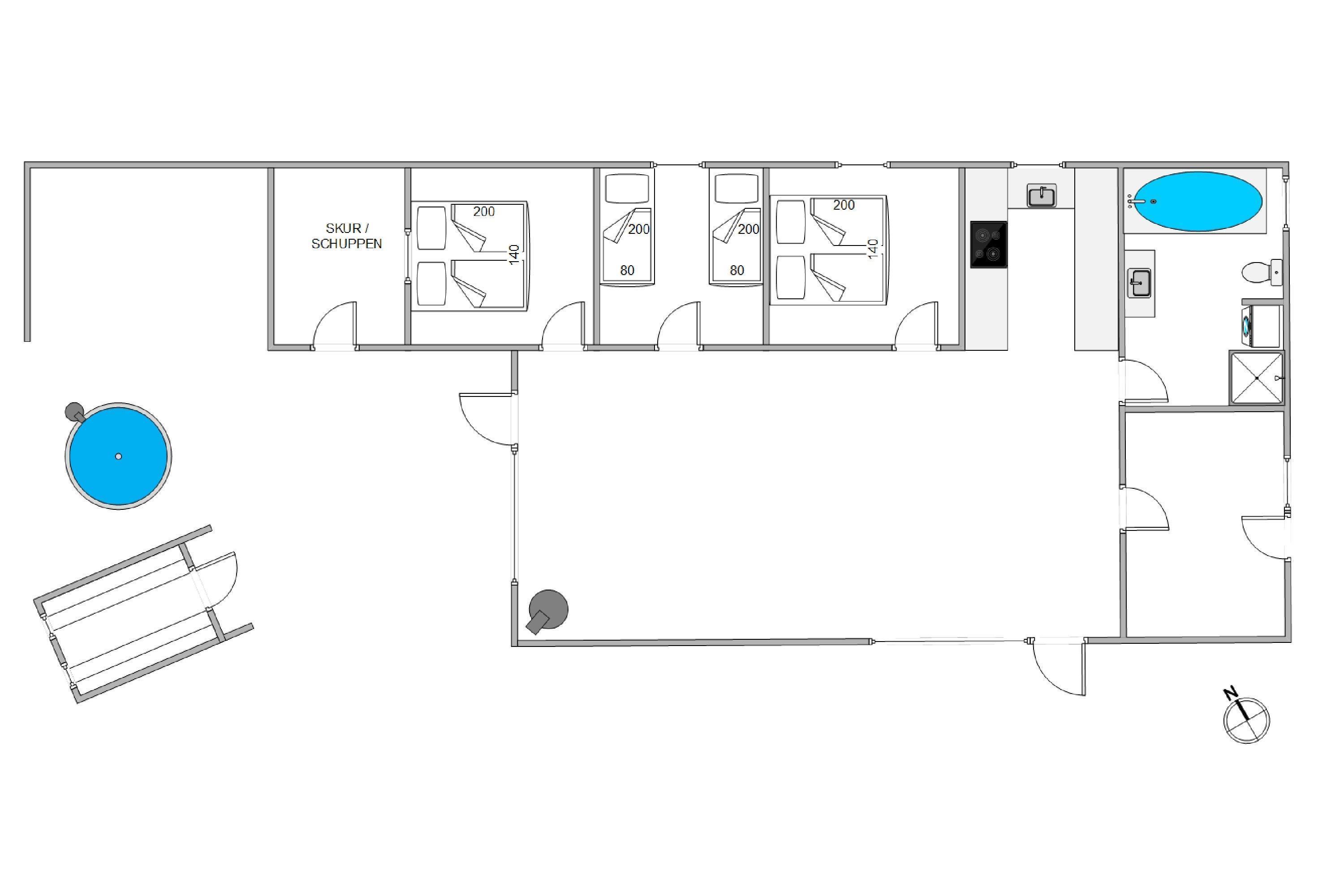
- Soverum 3
 - Badeværelser 1
 - Boligareal 95 m²
 - Grundareal 751 m²
 - Husdyr 1
 - Tilbyder miniferie Nej
 - Afstand vand 1.400 m
 - Afstand indkøb 450 m
 
- Spa Ja
 - Sauna Ja
 - Internet Ja
 - Brændeovn Ja
 - Vaskemaskine Ja
 - Opvaskemaskine Ja
 - Ikkeryger Ja
 - Energivenligt Ja
 
Beskrivelse
Dette moderne og centralt beliggende sommerhus i Blåvand er opført i 2019 og indeholder en masse fede faciliteter. I kan blandt andet nyde ferien i husets udendørs sauna eller indendørs spabad. Huset har plads til 6 personer, og hunden er også velkommen.
Centralt beliggenhed og moderne indretning
På Midtbyvej 9, centralt og stadig roligt beliggende, finder I dette sommerhus, som er moderniseret i 2019. Huset er helt ideelt både til en ferie med den lille familie eller en udflugt med vennerne.
Sommerhuet byder på 95 kvadratmeter og god plads at brede sig ud på. Den moderne og velovervejede indretning indeholder alt, hvad I rent praktisk får brug for på ferien, og på hjørnesofaen finder I alle en siddeplads foran den knitrende brændeovn. Den energibesparende varmepumpe sørger for, at I hver dag har en behagelig rumtemperatur.
Den lille hems med PlayStation og sækkestol bliver et sikkert hit blandt børnene.
Wellness med spa og udendørs sauna
Holder I af wellness, så har I masser af muligheder for at forkæle jer selv i sommerhuset. På badeværelset står et spabad til 2 personer, og fra terrassen er der adgang til den lækre udendørs saunatønde, som ligger i forlængelse af den lukkede terrasse og kan bruges hele året rundt.
Lukket, delvist overdækket terrasse og egen legeplads
Den store, lukkede og delvist overdækkede terrasse giver jer mulighed for at nyde den friske luft alle årets måneder. I kan altid finde ly og læ, og de yngste feriegæster kan rigtig få lov til at boltre sig på husets private 'legeplads' med rutsjebane, klatretårn og gynger.
Der er kort vej til Blåvands centrum, hvor der venter jer et bredt udvalg af shoppemuligheder, restauranter og caféer. Derudover byder Blåvand på flere forskellige attraktioner; blandt andet minigolf, Blåvandshuk Fyr, zoologisk have og det spændende bunkermuseum Tirpitz. Selvfølgelig er det også oplagt at besøge Blåvands rene badestrand, der indbyder til lange gåture langs vandet med børnene og hunden.
Vores gæsteanmeldelser Eksterne anmeldelser
Faciliteter
- 
            
Opholdsrum
- 
                  DVD-afspiller1
 - 
                  Gulv: Trælaminat
 - 
                  Gulv: Træ
 - 
                  Radio
 - 
                  Brændeovn
 - 
                  Fladskærms-TV1
 
 - 
                  
 - 
            
Soverum
- 
                  Gulv: Trælaminat
 - 
                  Dobbeltsenge2
 - 
                  Enkeltsenge2
 - 
                  Sovepladser6
 - 
                  Soverum3
 - 
                  1. soverum/sengestørrelser140x200
 - 
                  2. soverum/sengestørrelser80x200
 - 
                  3. soverum/sengestørrelser140x200
 
 - 
                  
 - 
            
Køkken
- 
                  Komfur: El m. ovn
 - 
                  Køleskab m. frostboks
 - 
                  Opvaskemaskine
 - 
                  Mikroovn
 
 - 
                  
 - 
            
Baderum
- 
                  Sauna
 - 
                  Gulvvarme bad
 - 
                  Antal badeværelser1
 - 
                  Tømmespa, antal pers.2
 
 - 
                  
 - 
            
Objektinfo - Inde
- 
                  Areal: Hus m²95
 - 
                  Byggeår1957
 - 
                  Barneseng1
 - 
                  Højstol1
 - 
                  Husdyr tilladt
 - 
                  Husdyr antal, max1
 - 
                  Ikke ryger hus
 - 
                  Personantal6
 - 
                  Renoveret2019
 - 
                  Danske TV-kanaler (Betalingskanaler)
 - 
                  Tyske tv-programmer
 - 
                  Varme: Varmepumpe luft til luft
 - 
                  Vaskemaskine
 - 
                  Gratis fiber Internet
 
 - 
                  
 - 
            
Objektinfo - ude
- 
                  Afstand hav1,4 km
 - 
                  Afstand indkøb450 m
 - 
                  Areal: Grund m²751
 - 
                  Gynge
 - 
                  Sandkasse
 - 
                  Grill
 - 
                  Havemøbler
 - 
                  Solvogne
 - 
                  Terrasse: åben
 - 
                  Terrasse: Afskærmet
 - 
                  Terrasse: Lukket
 - 
                  Terrasse: Overdækket
 - 
                  Klitgrund
 - 
                  Affald hentes:Mandag
 - 
                  Affald: Helårstømning
 - 
                  Affald: Liter140
 - 
                  Vildmarksbad, antal pers4
 
 - 
                  
 - 
            
Koncepter
- 
                  Skiftedag: Fredag
 - 
                  Varme: 24 timer f. ankomst
 - 
                  Vandaflæsning
 - 
                  Fjernaflæsning af vandmåler
 
 - 
                  
 
Priser og kalender
Kalender
Pris
- Ankomst
 - Afrejse
 - Varighed
 - 1 uge
 
