Lyst sommerhus med havudsigt nær stranden
Sommerhus - 11 personer - Strandvejen - 9492 - Blokhus
Alternative emner
I nærheden (339)11 personer
Oversigt
Emne nr.: 121-14-0546
7 overnatninger
Fra
DKK 6.497,-
Inkl. rengøring
Stort og lyst sommerhus nær Blokhus' brede sandstrand med skøn havudsigt og privat gårdhave.
- Soverum 6
- Badeværelser 3
- Boligareal 205 m²
- Grundareal 486 m²
- Husdyr Ikke tilladt
- Tilbyder miniferie Ja
- Afstand vand 100 m
- Afstand indkøb 240 m
- Spa Ja
- Internet Ja
- Aktivitetsrum Ja
- Udsigt til vand Ja
- Vaskemaskine Ja
- Opvaskemaskine Ja
- Ikkeryger Ja
Beskrivelse
Ved nedkørslen til den brede sandstrand ved Blokhus ligger dette store sommerhus centralt i forhold til byens liv og stranden. Et godt sted for den store familie med dejlig udsigt til stranden og vandet fra husets 1. sal.
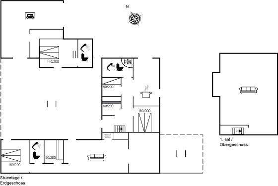
Huset er opdelt i 3 enheder (se grundplan), således, at der dannes en ugeneret gårdhave mellem husene, hvor kan man nyde mange timer i det fri.
Huset, som i løbet af de senere år har gennemgået en større renovering fremtræder lyst og indbydende. Der findes også et anneks, som er indrettet med et soveværelse og eget badeværelse.
Feriebyen Blokhus byder på restauranter, caféer og indkøbsmuligheder samt et hyggeligt torv.
Indretning
Sommerhuset egner sig til 11 personer. Ferieboligen er på 205 m², er i 2 plan, og er bygget i 1928. I 2023 gennemgik ferieboligen en delvis renovering. Det er ikke tilladt at medbringe husdyr. Ferieboligen har 2 vaskemaskiner. Frysekapacitet på 60 liter.
Udenfor
Ferieboligen er beliggende på en 486 m² stor naturgrund. Der er 100 m til havet. Nærmeste forretning er beliggende i en afstand af 240 m. Der er en golfbane i en afstand af 5000 m. Til ferieboligen hører lukket terrasse. Grill til rådighed. Parkering ved ferieboligen.
Aktivitetsrum
I aktivitetsrummet er der følgende udstyr: Bordtennis.
Soveforhold
Der er i alt 6 soveværelser. Sovepladserne fordeler sig på: 6 sovepladser i dobbeltsenge. 1 soveplads i enkeltseng. 4 sovepladser i køjesenge. 2 af disse sovepladser befinder sig i et anneks.
Køkken
Køkkenet er udstyret med 1 køleskab. Der er 4 keramiske kogeplader, varmluftovn samt opvaskemaskine.
Toilet og bad
Der er 3 badeværelser med bruseniche og 3 toiletter. Der er gulvvarme på 3 badeværelser.
Spa
Der er mulighed for afslapning i indendørs spa til 2 personer.
Multimedier
I ferieboligen er der 1 Smart-TV. 2 Chromecasts. Ingen TV-kanaler - kun streaming. Der er trådløst internet til rådighed.
Værd at vide
Ingen udlejning til ungdomsgrupper, hvor alle er 15-25 år. Rygning ikke tilladt. Ved overtrædelse af forbuddet opkræves et gebyr på minimum DKK 3.000,-.
Indretning
Sommerhuset egner sig til 11 personer. Ferieboligen er på 205 m², er i 2 plan, og er bygget i 1928. I 2023 gennemgik ferieboligen en delvis renovering. Det er ikke tilladt at medbringe husdyr. Ferieboligen har 2 vaskemaskiner. Frysekapacitet på 60 liter.
Udenfor
Ferieboligen er beliggende på en 486 m² stor naturgrund. Der er 100 m til havet. Nærmeste forretning er beliggende i en afstand af 240 m. Der er en golfbane i en afstand af 5000 m. Til ferieboligen hører lukket terrasse. Grill til rådighed. Parkering ved ferieboligen.
Aktivitetsrum
I aktivitetsrummet er der følgende udstyr: Bordtennis.
Soveforhold
Der er i alt 6 soveværelser. Sovepladserne fordeler sig på: 6 sovepladser i dobbeltsenge. 1 soveplads i enkeltseng. 4 sovepladser i køjesenge. 2 af disse sovepladser befinder sig i et anneks.
Køkken
Køkkenet er udstyret med 1 køleskab. Der er 4 keramiske kogeplader, varmluftovn samt opvaskemaskine.
Toilet og bad
Der er 3 badeværelser med bruseniche og 3 toiletter. Der er gulvvarme på 3 badeværelser.
Spa
Der er mulighed for afslapning i indendørs spa til 2 personer.
Multimedier
I ferieboligen er der 1 Smart-TV. 2 Chromecasts. Ingen TV-kanaler - kun streaming. Der er trådløst internet til rådighed.
Værd at vide
Ingen udlejning til ungdomsgrupper, hvor alle er 15-25 år. Rygning ikke tilladt. Ved overtrædelse af forbuddet opkræves et gebyr på minimum DKK 3.000,-.
Vores gæsteanmeldelser Eksterne anmeldelser
Faciliteter
-
Adgang til ferieboligen
-
Nøgleboks med kode
-
-
Aktivitetsrum
-
Aktivitetsrum
-
Bordtennis
-
-
Bemærk
-
Ingen håndværkere efter anmodning
-
Ingen ungdomsgrupper efter anmodning
-
Rygning er forbudt
-
-
Indretning
-
2 niveauer
-
Antal voksne inkl. 4-11 år11
-
Bebygget areal205 m²
-
Byggeår1928
-
Feriebolig
-
Frysekapacitet (antal liter)60
-
Renoveringsår2023
-
Vaskemaskine2
-
-
Køkken
-
Antal keramiske kogeplader4
-
Køleskab1
-
Opvaskemaskine1
-
Varmluftovn1
-
-
Multimedier
-
Antal tv'er1
-
Chromecast2
-
Download200
-
Ingen tv-kanaler - kun streaming
-
Smart-Tv1
-
Trådløst internet
-
Upload200
-
-
Soveforhold
-
Anneks (antal sovepladser)
-
Antal soveværelser6
-
Dobbeltseng (antal sovepladser)6
-
Enkeltseng (antal sovepladser)1
-
Køjeseng (antal sovepladser)4
-
Soveplads ikke i soveværelset
-
-
Spa
-
Indendørs spabad (antal personer)2
-
-
Toilet og bad
-
Antal badeværelser3
-
Antal toiletter3
-
Brusekabine
-
Gulvvarme3
-
-
Udenfor
-
Butik240 m
-
Golfbane5 km
-
Grill1
-
Hav100 m
-
Lukket terrasse
-
Natursted
-
Parkeringsplads ved huset
-
Størrelse af grunden486 m²
-
Terrasse
-
-
Udsigt
-
Havudsigt fra feriehuset
-
Havudsigt fra pladsen
-
Miniferie
Der er begrænset mulighed for miniferie hele året, typisk uden for højsæsonen.
Priser og kalender
Kalender
Varighed
Pris
Periode
- Ankomst
- Afrejse
- Varighed
- 1 uge
Personer
Op til 11 personer
Bemærk
Ankomst er ikke valgt.
