Sommerhus - 4 personer - Mosevænget - Bork Havn - 6893 - Hemmet Strand
Alternative emner
I nærheden (635)Oversigt
- Soverum 3
- Badeværelser 1
- Boligareal 76 m²
- Grundareal 1.500 m²
- Husdyr 1
- Tilbyder miniferie Ja
- Afstand vand 2 km
- Afstand indkøb 2 km
- Internet Ja
- Parabol/kabel TV Ja
- Brændeovn Ja
- Opvaskemaskine Ja
- Ikkeryger Ja
- Energivenligt Ja
Beskrivelse
I kommer hurtigt til at føle jer hjemme i dette hyggelige sommerhus, der ligger i rolige og grønne omgivelser på en lukket vej i Bork Havn.
Indretning
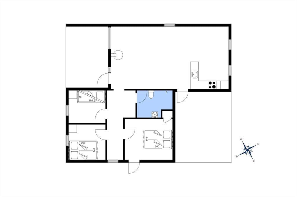
Holder I ferie på et tidspunkt af året, hvor I gerne vil tilbringe mange timer inden døre, vil sommerhusets stue fungere som det oplagte samlingspunkt både morgen, middag og aften. I kan starte med at servere dagens første kop kaffe ved spisekrogen i det åbne køkken – og her kan I egentlig sagtens blive siddende for at spille brætspil, tegne og lave andre hyggelige fællesaktiviteter. Vil I sidde lidt mere komfortabelt, kan I rykke hen i sofaafdelingen for at se film på TV’et, og vil I skrue ekstra op for den gode stemning, kan I tænde op i brændeovnen. Et badeværelse og tre soveværelser hører også med til planløsningen, og der er en barnestol til rådighed til småbørnsfamilier.
Udendørs
Børnevenlige faciliteter finder I også ude i det fri på den 1500 m2 store grund. Her er der nemlig både gyngestativ og sandkasse til de alleryngste feriegæster, og hvis hele familien skal aktiveres, kan I spille havespil eller lege fangeleg på den velanlagte græsplæne. Er det tid til en pause i skyggen, kan I sætte jer på den overdækkede, sydvestvendte terrasse, som er et skønt sted at blive siddende til langt ud på de lyse sommeraftner.
Beliggenhed
Det er herligt at holde ferie i Bork Havn – og ikke mindst når man bor i rolige omgivelser som her for enden af Mosevænget. Den lille havneby er populær blandt børnefamilier, for udover de offentlige legepladser og den lille badestrand er der sjove ferieaktiviteter for store og små i blandt andet Bork Legeland og Bork Vikingehavn, og hos er der både minigolfbane og cykeludlejning. Kan I lide at surfe eller sejle kajak, giver den lokale surfstrand jer rig mulighed for at udleve et aktivt ferieliv på vandet, hvis ikke dagene skal bruges på at fiske, køre mountainbike eller bade i Vesterhavets bølger.
Rumindretning
- Soveværelse
- Køjeseng - 2x70x200
- Soveværelse
- Dobbeltseng - 1x140x200
- Soveværelse
- Dobbeltseng - 1x140x200
Vores gæsteanmeldelser Eksterne anmeldelser
Alle faciliteter
-
Hus Info
-
Antal husdyr1
-
Antal voksne4
-
Bruser
-
Byggeår1984
-
Grundareal / Have1500 m²
-
Husareal76 m²
-
Renoveringsår2004
-
WC
-
-
Afstande
-
Afstand fjord2 km
-
Afstand golfbane20 km
-
Afstand indkøb / Sommerbutik2 km
-
Afstand restaurant2 km
-
Afstand strand / Sand-/stenstrand2 km
-
Afstand svømmehal10 km
-
-
Energi / Opvarmning
-
Brændeovn
-
Elvarme
-
Varmepumpe / Uden køl
-
-
Hårde hvidevarer
-
Elkedel
-
Emhætte
-
Fryser
-
Kaffemaskine
-
Komfur
-
Køleskab
-
Mikroovn
-
Opvaskemaskine
-
-
Multimedier
-
Dansk tv
-
Gratis Wi-Fi - Over 20 Mbit
-
Parabol
-
TVDr 1 og 2 - minus tv2
-
Tysk TV
-
-
Ekstra
-
Barnestol
-
-
Udenfor
-
Carport
-
Grill
-
Gynge
-
Havemøbler
-
Liggestole2
-
Overdækket terrasse
-
Parkering på grunden
-
Sandkasse
-
-
Diverse
-
Gulvvarme
-
-
Regler
-
Opladning af elbil ikke tilladt
-
Rygning ikke tilladt
-
-
Pris inklusiv
-
Slutrengøring inkl.
-
Vand inkl.
-
Miniferie
Priser og kalender
Kalender
Pris
- Ankomst
- Afrejse
- Varighed
- 1 uge
