Hyggeligt Fanøhus med havkik og skøn terrasse
Sommerhus - 6 personer - Sønderklit - Fanø Bad - 6720 - Fanø
Alternative emner
I nærheden (388)6 personer
Oversigt
Emne nr.: 121-28-4153
7 overnatninger
Fra
DKK 9.258,-
Inkl. rengøring
Charmerende Fanøhus med havkik, skøn beliggenhed på klitgrund og gode terrasser, perfekt til en afslappende ferie.
- Soverum 3
- Badeværelser 1
- Boligareal 140 m²
- Grundareal 1.100 m²
- Husdyr Ikke tilladt
- Tilbyder miniferie Nej
- Afstand vand 100 m
- Afstand indkøb 1.800 m
- Internet Ja
- Brændeovn Ja
- Vaskemaskine Ja
- Opvaskemaskine Ja
- Ikkeryger Ja
- Energivenligt Ja
Beskrivelse
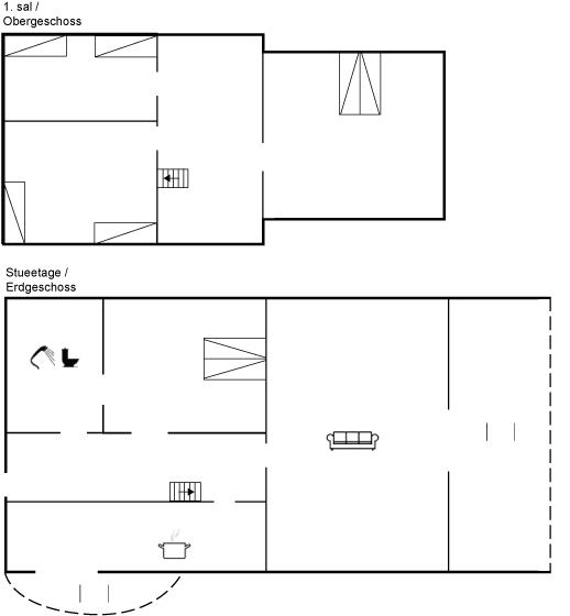
Pragtfuldt og charmerende Fanøhus med 1. sal. Huset er særdeles smagfuldt og hyggeligt indrettet. Skøn beliggenhed på klitgrund, hvorfra der er havkik. Rigtig gode terrasser: Én er delvist overdækket.
Indretning
Sommerhuset egner sig til 6 personer samt 1 barn op til 3 år. Ferieboligen er på 140 m² og er bygget i 1939. I 2000 gennemgik ferieboligen en delvis renovering. Det er ikke tilladt at medbringe husdyr. Ferieboligen er udstyret med energibesparende varmepumpe. Ferieboligen har vaskemaskine. Frysekapacitet på 10 liter. Der er desuden brændeovn. Til de små er der 1 stk. barnestol.
Udenfor
Ferieboligen er beliggende på en 1100 m² stor naturgrund. Der er 100 m til havet. Nærmeste forretning er beliggende i en afstand af 1800 m. Sandkasse. Der er garage til rådighed.
Soveforhold
Der er i alt 3 soveværelser. Sovepladserne fordeler sig på: 4 sovepladser i dobbeltsenge. 2 sovepladser i enkeltsenge. Derudover er der 1 stk. barneseng.
Køkken
Køkkenet er udstyret med 1 køleskab. Der er 4 keramiske kogeplader, bageovn, mikrobølgeovn samt opvaskemaskine.
Toilet og bad
Der er 1 badeværelse med bruseniche og 1 toilet.. Der er gulvvarme på 1 badeværelse.
Multimedier
I ferieboligen er der 1 TV. Radio. CD-afspiller. Der er 1-3 danske kanaler. 1-3 tyske kanaler. Der er trådløst internet til rådighed.
Værd at vide
Ingen udlejning til ungdomsgrupper, hvor alle er 15-25 år. Rygning i huset frabedes. Inkl. vandforbrug.
Indretning
Sommerhuset egner sig til 6 personer samt 1 barn op til 3 år. Ferieboligen er på 140 m² og er bygget i 1939. I 2000 gennemgik ferieboligen en delvis renovering. Det er ikke tilladt at medbringe husdyr. Ferieboligen er udstyret med energibesparende varmepumpe. Ferieboligen har vaskemaskine. Frysekapacitet på 10 liter. Der er desuden brændeovn. Til de små er der 1 stk. barnestol.
Udenfor
Ferieboligen er beliggende på en 1100 m² stor naturgrund. Der er 100 m til havet. Nærmeste forretning er beliggende i en afstand af 1800 m. Sandkasse. Der er garage til rådighed.
Soveforhold
Der er i alt 3 soveværelser. Sovepladserne fordeler sig på: 4 sovepladser i dobbeltsenge. 2 sovepladser i enkeltsenge. Derudover er der 1 stk. barneseng.
Køkken
Køkkenet er udstyret med 1 køleskab. Der er 4 keramiske kogeplader, bageovn, mikrobølgeovn samt opvaskemaskine.
Toilet og bad
Der er 1 badeværelse med bruseniche og 1 toilet.. Der er gulvvarme på 1 badeværelse.
Multimedier
I ferieboligen er der 1 TV. Radio. CD-afspiller. Der er 1-3 danske kanaler. 1-3 tyske kanaler. Der er trådløst internet til rådighed.
Værd at vide
Ingen udlejning til ungdomsgrupper, hvor alle er 15-25 år. Rygning i huset frabedes. Inkl. vandforbrug.
Vores gæsteanmeldelser Eksterne anmeldelser
Faciliteter
-
Bemærk
-
Rygning er forbudt
-
-
Indretning
-
Antal børn (0-3 år)1
-
Antal voksne inkl. 4-11 år6
-
Bebygget areal140 m²
-
Brændeovn1
-
Byggeår1939
-
Feriebolig
-
Frysekapacitet (antal liter)10
-
Højstol1
-
Renoveringsår2000
-
Varmepumpe
-
Vaskemaskine1
-
-
Køkken
-
Antal keramiske kogeplader4
-
Bageovn1
-
Køleskab1
-
Mikrobølgeovn1
-
Opvaskemaskine1
-
-
Multimedier
-
0-3 danske kanaler
-
0-3 tyske kanaler
-
Antal tv'er1
-
CD afspiller
-
Radio
-
Trådløst internet
-
-
Soveforhold
-
Antal soveværelser3
-
Barneseng1
-
Dobbeltseng (antal sovepladser)4
-
Enkeltseng (antal sovepladser)2
-
-
Toilet og bad
-
Antal badeværelser1
-
Antal toiletter1
-
Brusekabine
-
Gulvvarme1
-
-
Udenfor
-
Butik1,8 km
-
Garage
-
Hav100 m
-
Natursted
-
Sandkasse
-
Størrelse af grunden1100 m²
-
Priser og kalender
Kalender
Varighed
Pris
Periode
- Ankomst
- Afrejse
- Varighed
- 1 uge
Personer
Op til 6 personer
Bemærk
Ankomst er ikke valgt.
