Sommerhus - 6 personer - Sløjbrovej - 9690 - Fjerritslev
Alternative emner
I nærheden (1)Oversigt
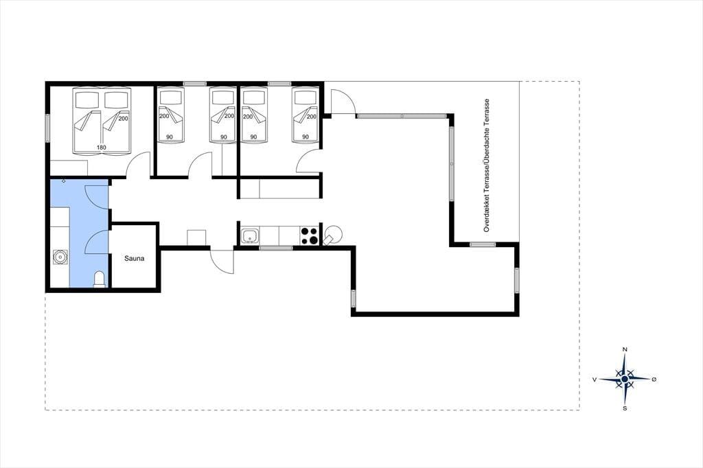
- Soverum 3
- Badeværelser 1
- Boligareal 82 m²
- Grundareal 4.675 m²
- Husdyr 2
- Tilbyder miniferie Ja
- Afstand vand 3.700 m
- Afstand indkøb 6 km
- Sauna Ja
- Internet Ja
- Parabol/kabel TV Ja
- Brændeovn Ja
- Vaskemaskine Ja
- Opvaskemaskine Ja
- Ikkeryger Ja
- Energivenligt Ja
Beskrivelse
Drømmer I om at holde ferie i rolige og naturskønne omgivelser? Så skal I endelig se nærmere på dette charmerende træsommerhus, der ligger på en 4.675 m2 stor naturgrund i det kønne landskab mellem Fjerritslev og Vejlerne.
Velkommen indenfor
Sommerhuset er opført i 1965 og er senest blevet renoveret i 2020, så det fremstår pænt og velholdt. Med tre soveværelser, et badeværelse og en stue med åben forbindelse til køkkenet er planløsningen velfungerende, og I kan dermed sagtens samles seks personer i huset. Møblementet passer godt ind i de hyggelige rum – ikke mindst i stuen, hvor en brændeovn er med til at skrue op for den varme og venlige atmosfære. Apropos varme, så ligger en sauna i forlængelse af badeværelset, og den kan oplagt tages i brug, hvis I holder ferie på kølige tidspunkter af året. For øvrigt skal det bemærkes, at hvis I vil se dansk tv, skal det streames via Chromecast fra egne medbragte enheder.
Nyd livet udenfor
Navnet på huset er Birkely, og der står da også flere flotte birketræer på den store naturgrund. I det hele taget føles det lidt som at holde ferie i et skovbryn, for sommerhusets græsplæne er på kønneste vis omkranset af grønt, hvilket også gør det udendørs ferieliv dejligt ugeneret. Syd og øst for sommerhuset breder en stor træterrasse sig, og her er der både overdækkede og åbne siddepladser at vælge imellem.
Kom tæt på de lokale oplevelser
De allernærmeste omgivelser er flotte og fredelige, så hvis I trænger til at koble af på ferien, er I kommet til det helt rette sted. Hvis I ovenikøbet elsker naturen – og måske endda er særligt vilde med fugle – vil I sætte pris på, at I bor meget tæt på Vejlerne, som med sine cirka 6.000 hektar er Nordeuropas største fuglereservat. Fra huset er der også blot få kilometer til Fjerritslev, der er en hyggelig handelsby med gode indkøbsmuligheder, en lille biograf, svømmehal, golfklub og meget mere. Derudover har I nem adgang til både Limfjorden og Vesterhavet: Sidstnævnte byder på dejlige strande langs med Jammerbugten – blandt andet Svinkløv Strand med det flotte badehotel og en tilhørende isbod.
Husk, at du altid kan låne trækvogne, barnestole og barnesenge hos os. Du kan hente dem direkte på bureauet og returnere dem til os igen, når din ferie er vel overstået.
Dansk TV skal streames til Cromecast fra egne enheder
Vores gæsteanmeldelser Eksterne anmeldelser
Faciliteter
-
Hus Info
-
Antal husdyr2
-
Antal voksne6
-
Bruser
-
Byggeår1965
-
Grundareal / Naturgrund4675 m²
-
Husareal82 m²
-
Renoveringsår2020
-
Sauna
-
WC
-
-
Afstande
-
Afstand fjord3,7 km
-
Afstand golfbane6 km
-
Afstand indkøb / Helårsbutik6 km
-
Afstand restaurant6 km
-
Afstand strand / Sand-/stenstrand8,5 km
-
-
Energi / Opvarmning
-
Brændeovn
-
Elvarme
-
Varmepumpe
-
-
Hårde hvidevarer
-
Elkedel
-
Emhætte
-
Kaffemaskine
-
Kogeplader
-
Køleskab med frys
-
Mikroovn
-
Opvaskemaskine
-
Ovn
-
Vaskemaskine
-
-
Multimedier
-
Chromecast
-
Gratis Wi-Fi - Over 20 Mbit
-
Parabol
-
TV
-
Tysk TV
-
-
Ekstra
-
Barneseng
-
Barnestol
-
Børnevenlig
-
Golfferie
-
Vandrevenlig
-
-
Udenfor
-
Grill
-
Gynge
-
Havemøbler
-
Liggestole2
-
Overdækket terrasse
-
Parasol
-
Parkering på grunden
-
Sandkasse
-
Åben terrasse
-
-
Diverse
-
4 x Enkeltseng 1x90x200
-
Afmærkede vandreruter i nærheden
-
Dobbeltseng 1x180x200
-
Gulvvarme
-
-
Regler
-
Husdyr: alle slags husdyr tilladt
-
Opladning af elbil ikke tilladt
-
Rygning ikke tilladt
-
-
Pris inklusiv
-
Slutrengøring inkl.
-
Vand inkl.
-
-
GAMMEL
-
DVD
-
Radio
-
Miniferie
Priser og kalender
Kalender
Pris
- Ankomst
- Afrejse
- Varighed
- 1 uge
