Sommerhus - 8 personer - Diget - Furreby - 9480 - Løkken
Alternative emner
I nærheden (164)Oversigt
- Soverum 4
- Badeværelser 1
- Boligareal 94 m²
- Grundareal 1.400 m²
- Husdyr 2
- Tilbyder miniferie Ja
- Afstand vand 550 m
- Afstand indkøb 1.500 m
- Spa Ja
- Sauna Ja
- Internet Ja
- Parabol/kabel TV Ja
- Brændeovn Ja
- Aircondition Ja
- Vaskemaskine Ja
- Tørretumbler Ja
- Opvaskemaskine Ja
- Ikkeryger Ja
- Energivenligt Ja
Beskrivelse
I den nordlige del af Løkken ligger Furreby, hvor dette stilfuldt indrettede sommerhus med spabad ligger.
Velkommen indenfor
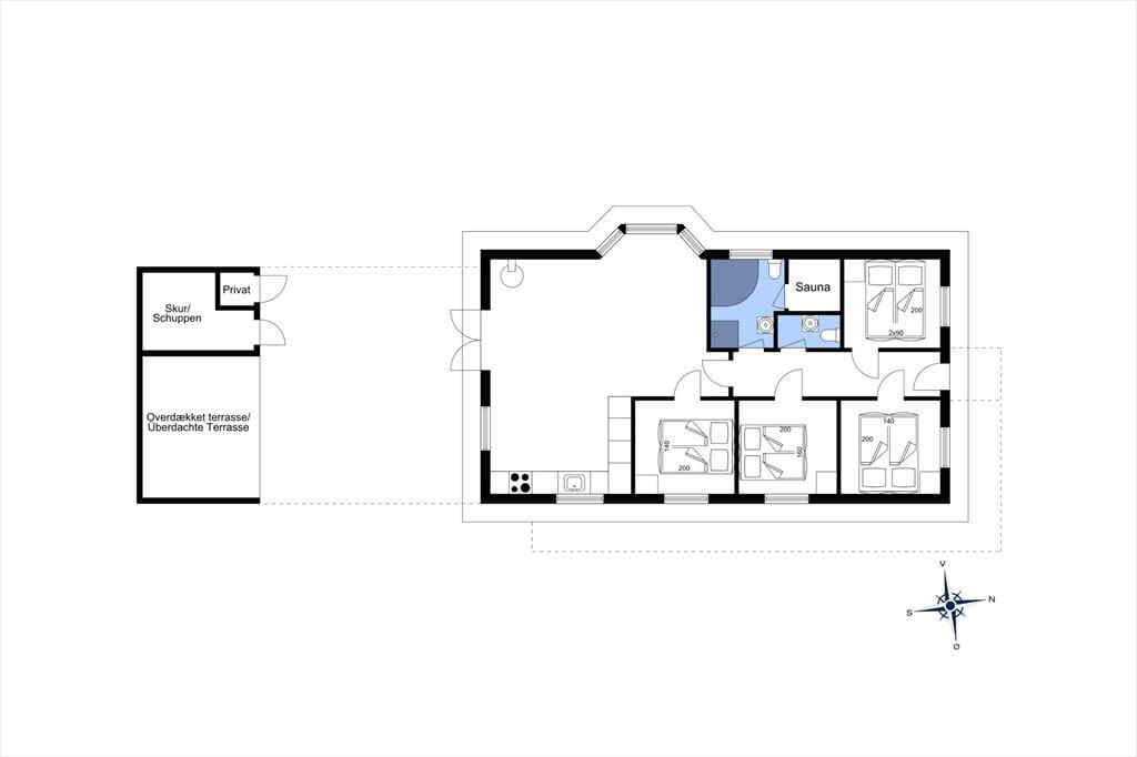
Sommerhuset er stilfuldt indrettet og fremtræder lyst og atmosfærefyldt. Sommerhuset indeholder 4 rummelige soveværelser med dobbeltsenge, et gæstetoilet og et stort badeværelse med spa og sauna. Opholdsrummet fremtræder lyst og hyggeligt og er sammenhængende med det åbne veludstyrede køkken, og herfra har man adgang til den lukkede terrasse.
Nyd livet udenfor
Den flotte grund byder på leg og aktiviteter, og på den hyggelige lukkede terrasse mellem sommerhuset og carporten, er man helt for sig selv.
Kom tæt på de lokale oplevelser
Furreby, hvor sommerhuset ligger, er den nordlige del af Løkken, som er et meget fredeligt sommerhusområde. Her begynder skrænten hvoraf havet hvert år tager en stor bid af landet. Området er præget af en enestående natur og de mange paraglider flyver herfra langs skranten, forbi rubjerg Knude fyr til Lønstrup.
Husk, at du altid kan låne trækvogne, barnestole og barnesenge hos os i Løkken. Du kan hente dem direkte på bureauet og returnere dem til os igen, når din ferie er vel overstået.
Rumindretning
- Soveværelse
- Dobbeltseng - 1x160x200
- Soveværelse
- Dobbeltseng - 2x90x200
- Soveværelse
- Dobbeltseng - 1x140x200
- Soveværelse
- Dobbeltseng - 1x140x200
Vores gæsteanmeldelser Eksterne anmeldelser
Alle faciliteter
-
Hus Info
-
2 x WC
-
Antal husdyr2
-
Antal voksne8
-
Bruser
-
Byggeår2002
-
Grundareal1400 m²
-
Husareal94 m²
-
Indendørs spabad
-
Renoveringsår2009
-
Sauna
-
-
Afstande
-
Afstand golfbane2,8 km
-
Afstand indkøb / Helårsbutik1,5 km
-
Afstand restaurant2 km
-
Afstand strand / Sandstrand550 m
-
-
Energi / Opvarmning
-
Brændeovn
-
Elvarme
-
Varmepumpe / Med køl
-
-
Hårde hvidevarer
-
Elkedel
-
Emhætte
-
Kaffemaskine
-
Kogeplader4
-
Køleskab med frys10
-
Mikroovn
-
Opvaskemaskine
-
Ovn
-
Tørretumbler
-
Vaskemaskine
-
-
Multimedier
-
Chromecast
-
Gratis Wi-Fi - Over 20 Mbit
-
Parabol
-
TV
-
Tysk TV
-
-
Ekstra
-
Golfferie
-
Vandrevenlig
-
-
Udenfor
-
GrillKul
-
Havemøbler
-
Liggestole2
-
Lukket terrasse35 m²
-
Parkering på grunden
-
-
Diverse
-
2 x Gulvvarme
-
Afmærkede vandreruter i nærheden
-
-
Regler
-
Opladning af elbil ikke tilladt
-
Rygning ikke tilladt
-
-
Pris inklusiv
-
Slutrengøring inkl.
-
Vand inkl.
-
Miniferie
Priser og kalender
Kalender
Pris
- Ankomst
- Afrejse
- Varighed
- 1 uge
