Moderne sommerhus med spa og aktivitetsrum
Sommerhus - 10 personer - Kringelbækvej - Grønhøj - 9480 - Løkken
Alternative emner
I nærheden (352)10 personer
Oversigt
Emne nr.: 121-12-0391
7 overnatninger
Fra
DKK 5.793,-
Inkl. rengøring
Skønt sommerhus i Løkken med spa, aktivitetsrum og stor naturgrund nær havet.
- Soverum 5
- Badeværelser 2
- Boligareal 162 m²
- Grundareal 2.146 m²
- Husdyr 2
- Tilbyder miniferie Ja
- Afstand vand 1.550 m
- Afstand indkøb 1 km
- Spa Ja
- Sauna Ja
- Internet Ja
- Parabol/kabel TV Ja
- Brændeovn Ja
- Aktivitetsrum Ja
- Vaskemaskine Ja
- Tørretumbler Ja
- Opvaskemaskine Ja
- Ikkeryger Ja
Beskrivelse
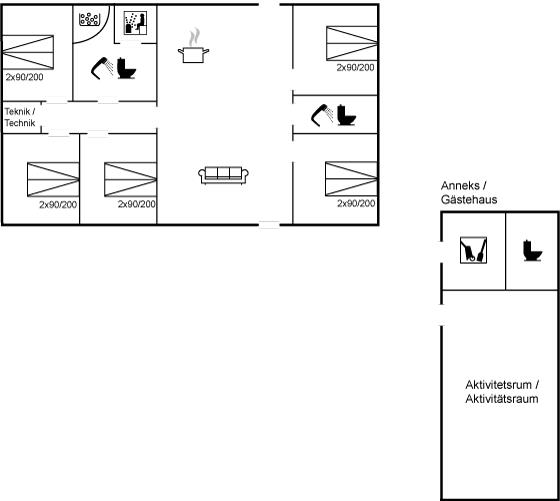
Dette skønne sommerhus ligger på en stor og åben grund i et nyt sommerhusområde under opførsel. Her er der mulighed for at nyde den flotte natur med søer og et rigt dyreliv. Huset er veludstyret og flere muligheder for aktiviteter. Aktivitetsrummet ligger i annekset, og her er der også toilet og TV.
Indretning
Sommerhuset egner sig til 10 personer. Ferieboligen er på 162 m² og er bygget i 2017. Det er tilladt at medbringe 2 husdyr. Ferieboligen har vaskemaskine. Tørretumbler. Frysekapacitet på 80 liter. Der er desuden brændeovn.
Udenfor
Ferieboligen er beliggende på en 2146 m² stor naturgrund. Der er 1550 m til havet. Nærmeste forretning er beliggende i en afstand af 1000 m. Til ferieboligen hører 40 m² terrasseareal. Der er redskabsrum. Parkering ved ferieboligen.
Aktivitetsrum
I aktivitetsrummet er der følgende udstyr: Billard. Bordtennis. Dart. Bordfodbold.
Soveforhold
Der er i alt 5 soveværelser. Sovepladserne fordeler sig på: 10 sovepladser i dobbeltsenge. Derudover er der 1 stk. barneseng.
Køkken
Køkkenet er udstyret med 1 køleskab. Der er 4 keramiske kogeplader, varmluftovn, mikrobølgeovn samt opvaskemaskine.
Toilet og bad
Der er 2 badeværelser med bruseniche og 3 toiletter, heraf 1 gæstetoilet. Der er gulvvarme på 2 badeværelser. I den infrarøde sauna er der mulighed for afslapning.
Spa
Der er mulighed for afslapning i indendørs spa til 2 personer.
Multimedier
I ferieboligen er der 2 TV.1 Chromecast. Radiokanaler via TV. Der er mindst 4 danske kanaler. 1-3 tyske kanaler. Der er trådløst internet til rådighed.
Værd at vide
Ingen udlejning til ungdomsgrupper, hvor alle er 15-25 år. Rygning ikke tilladt. Ved overtrædelse af forbuddet opkræves et gebyr på minimum DKK 3.000,- OBS: Gyngestativet er IKKE længere ved huset.
Indretning
Sommerhuset egner sig til 10 personer. Ferieboligen er på 162 m² og er bygget i 2017. Det er tilladt at medbringe 2 husdyr. Ferieboligen har vaskemaskine. Tørretumbler. Frysekapacitet på 80 liter. Der er desuden brændeovn.
Udenfor
Ferieboligen er beliggende på en 2146 m² stor naturgrund. Der er 1550 m til havet. Nærmeste forretning er beliggende i en afstand af 1000 m. Til ferieboligen hører 40 m² terrasseareal. Der er redskabsrum. Parkering ved ferieboligen.
Aktivitetsrum
I aktivitetsrummet er der følgende udstyr: Billard. Bordtennis. Dart. Bordfodbold.
Soveforhold
Der er i alt 5 soveværelser. Sovepladserne fordeler sig på: 10 sovepladser i dobbeltsenge. Derudover er der 1 stk. barneseng.
Køkken
Køkkenet er udstyret med 1 køleskab. Der er 4 keramiske kogeplader, varmluftovn, mikrobølgeovn samt opvaskemaskine.
Toilet og bad
Der er 2 badeværelser med bruseniche og 3 toiletter, heraf 1 gæstetoilet. Der er gulvvarme på 2 badeværelser. I den infrarøde sauna er der mulighed for afslapning.
Spa
Der er mulighed for afslapning i indendørs spa til 2 personer.
Multimedier
I ferieboligen er der 2 TV.1 Chromecast. Radiokanaler via TV. Der er mindst 4 danske kanaler. 1-3 tyske kanaler. Der er trådløst internet til rådighed.
Værd at vide
Ingen udlejning til ungdomsgrupper, hvor alle er 15-25 år. Rygning ikke tilladt. Ved overtrædelse af forbuddet opkræves et gebyr på minimum DKK 3.000,- OBS: Gyngestativet er IKKE længere ved huset.
Vores gæsteanmeldelser Eksterne anmeldelser
Faciliteter
-
Adgang til ferieboligen
-
Nøgleboks med kode
-
-
Aktivitetsrum
-
Aktivitetsrum
-
Billard
-
Bordfodbold
-
Bordtennis
-
Dart
-
-
Bemærk
-
Aktivitetshus
-
Ingen ungdomsgrupper efter anmodning
-
Rygning er forbudt
-
-
Indretning
-
Antal voksne inkl. 4-11 år10
-
Bebygget areal162 m²
-
Brændeovn1
-
Byggeår2017
-
Feriebolig
-
Frysekapacitet (antal liter)80
-
Husdyr2
-
Tørretumbler1
-
Vaskemaskine1
-
-
Køkken
-
Antal keramiske kogeplader4
-
Køleskab1
-
Mikrobølgeovn1
-
Opvaskemaskine1
-
Varmluftovn1
-
-
Multimedier
-
> 3 danske kanaler
-
0-3 tyske kanaler
-
Antal tv'er2
-
Chromecast1
-
Radio
-
Trådløst internet
-
-
Soveforhold
-
Antal soveværelser5
-
Barneseng1
-
Dobbeltseng (antal sovepladser)10
-
-
Spa
-
Indendørs spabad (antal personer)2
-
-
Toilet og bad
-
Antal badeværelser2
-
Antal gæstebadeværelser1
-
Antal toiletter3
-
Brusekabine
-
Gulvvarme2
-
Sauna
-
-
Udenfor
-
Butik1 km
-
Hav1,6 km
-
Natursted
-
Parkeringsplads ved huset
-
Redskabsskur
-
Størrelse af grunden2146 m²
-
Terrasse40 m²
-
Miniferie
Der er begrænset mulighed for miniferie hele året, typisk uden for højsæsonen.
Priser og kalender
Kalender
Varighed
Pris
Periode
- Ankomst
- Afrejse
- Varighed
- 1 uge
Personer
Op til 10 personer
Bemærk
Ankomst er ikke valgt.
