Rummeligt sommerhus nær Vadehavet med sauna
Sommerhus - 16 personer - Kirkegårdsgade - 6280 - Højer
Alternative emner
I nærheden (28)16 personer
Oversigt
Emne nr.: 121-29-5060
7 overnatninger
Fra
DKK 14.946,-
Valgfri rengøring: DKK 1.753,-
Flot, rummeligt sommerhus i Højer tæt på Vadehavet med sauna og aktivitetsrum.
- Soverum 7
- Badeværelser 2
- Boligareal 550 m²
- Grundareal 1.608 m²
- Husdyr 2
- Tilbyder miniferie Ja
- Afstand vand 2.500 m
- Afstand indkøb 200 m
- Sauna Ja
- Internet Ja
- Parabol/kabel TV Ja
- Aktivitetsrum Ja
- Indhegnet område Ja
- Vaskemaskine Ja
- Tørretumbler Ja
- Opvaskemaskine Ja
- Ikkeryger Ja
- Ladestander til elbil Ja
Beskrivelse
Dette flotte, rummelige og lyst indrettede sommerhus ligger i den hyggelige marskby Højer - i et enestående og naturskønt område tæt på Vadehavet.
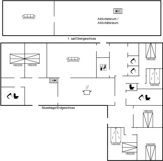
Indretning
Sommerhuset egner sig til 16 personer. Ferieboligen er på 550 m², er i 2 plan, og er bygget i 1806. I 2019 gennemgik ferieboligen en renovering. I 2011 gennemgik ferieboligen en delvis renovering. Det er tilladt at medbringe 2 husdyr. Ferieboligen har vaskemaskine. Tørretumbler. Frysekapacitet på 80 liter. Til de små er der 2 stk. barnestole.
Udenfor
Ferieboligen er beliggende på en 1608 m² stor havegrund. Grunden er indhegnet (lavt hegn). Der er 2500 m til Vadehavet. Nærmeste forretning er beliggende i en afstand af 200 m. Til ferieboligen hører åbent terrasseareal. Der er installeret stik til opladning af elbil. Parkering ved ferieboligen.
Aktivitetsrum
Poolbord. Bordfodbold.
Soveforhold
Der er i alt 7 soveværelser. Sovepladserne fordeler sig på: 12 sovepladser i dobbeltsenge. 4 sovepladser i sovesofa (dobbelt). Derudover er der 2 stk. barnesenge.
Køkken
Køkkenet er udstyret med 1 køleskab. Der er 4 induktionskogeplader, varmluftovn, mikrobølgeovn samt opvaskemaskine.
Toilet og bad
Der er 2 badeværelser med bruseniche og 3 toiletter, heraf 2 gæstetoiletter. Der er gulvvarme på 1 badeværelse.. Badekar. I saunaen er der mulighed for afslapning.
Multimedier
I ferieboligen er der 2 TV. DVD-afspiller. Radio. Der er mindst 4 danske kanaler. 1-3 svenske kanaler. 1-3 norske kanaler. Mindst 4 tyske kanaler. Der er trådløst internet til rådighed.
Værd at vide
Ingen udlejning til ungdomsgrupper, hvor alle er 15-25 år. Rygning ikke tilladt. Ved overtrædelse af forbuddet opkræves et gebyr på minimum DKK 3.000,-.
Indretning
Sommerhuset egner sig til 16 personer. Ferieboligen er på 550 m², er i 2 plan, og er bygget i 1806. I 2019 gennemgik ferieboligen en renovering. I 2011 gennemgik ferieboligen en delvis renovering. Det er tilladt at medbringe 2 husdyr. Ferieboligen har vaskemaskine. Tørretumbler. Frysekapacitet på 80 liter. Til de små er der 2 stk. barnestole.
Udenfor
Ferieboligen er beliggende på en 1608 m² stor havegrund. Grunden er indhegnet (lavt hegn). Der er 2500 m til Vadehavet. Nærmeste forretning er beliggende i en afstand af 200 m. Til ferieboligen hører åbent terrasseareal. Der er installeret stik til opladning af elbil. Parkering ved ferieboligen.
Aktivitetsrum
Poolbord. Bordfodbold.
Soveforhold
Der er i alt 7 soveværelser. Sovepladserne fordeler sig på: 12 sovepladser i dobbeltsenge. 4 sovepladser i sovesofa (dobbelt). Derudover er der 2 stk. barnesenge.
Køkken
Køkkenet er udstyret med 1 køleskab. Der er 4 induktionskogeplader, varmluftovn, mikrobølgeovn samt opvaskemaskine.
Toilet og bad
Der er 2 badeværelser med bruseniche og 3 toiletter, heraf 2 gæstetoiletter. Der er gulvvarme på 1 badeværelse.. Badekar. I saunaen er der mulighed for afslapning.
Multimedier
I ferieboligen er der 2 TV. DVD-afspiller. Radio. Der er mindst 4 danske kanaler. 1-3 svenske kanaler. 1-3 norske kanaler. Mindst 4 tyske kanaler. Der er trådløst internet til rådighed.
Værd at vide
Ingen udlejning til ungdomsgrupper, hvor alle er 15-25 år. Rygning ikke tilladt. Ved overtrædelse af forbuddet opkræves et gebyr på minimum DKK 3.000,-.
Vores gæsteanmeldelser Eksterne anmeldelser
Alle faciliteter
-
Adgang til ferieboligen
-
Nøgleboks med kode
-
-
Aktivitetsrum
-
Aktivitetsrum
-
Bordfodbold
-
Poolbord
-
-
Bemærk
-
Ingen ungdomsgrupper efter anmodning
-
Rygning er forbudt
-
-
Indretning
-
2 niveauer
-
Antal voksne inkl. 4-11 år16
-
Bebygget areal550 m²
-
Byggeår1806
-
Feriebolig
-
Frysekapacitet (antal liter)80
-
Husdyr2
-
Højstol2
-
Renovering2019
-
Renoveringsår2011
-
Tørretumbler1
-
Vaskemaskine1
-
-
Køkken
-
Antal induktionskogeplader4
-
Køleskab1
-
Mikrobølgeovn1
-
Opvaskemaskine1
-
Varmluftovn1
-
-
Multimedier
-
> 3 danske kanaler
-
> 3 tyske kanaler
-
0-3 norske kanaler
-
0-3 svenske kanaler
-
Antal tv'er2
-
DVD1
-
Radio
-
Trådløst internet
-
-
Soveforhold
-
Antal soveværelser7
-
Barneseng2
-
Dobbeltseng (antal sovepladser)12
-
Sovesofa, dobbelt (antal sovepladser)4
-
-
Toilet og bad
-
Antal badeværelser2
-
Antal gæstebadeværelser2
-
Antal toiletter3
-
Badekar
-
Brusekabine
-
Gulvvarme1
-
Sauna
-
-
Udenfor
-
Anlagt have
-
Butik200 m
-
Elbil hjemmeoplader
-
Indhegnet plads
-
Parkeringsplads ved huset
-
Størrelse af grunden1608 m²
-
Terrasse
-
Vadehavet2,5 km
-
Miniferie
Der er mulighed for miniferie hele året.
Priser og kalender
Kalender
Varighed
Pris
Periode
- Ankomst
- Afrejse
- Varighed
- 1 uge
Personer
Op til 16 personer
Bemærk
Ankomst er ikke valgt.
