Sommerhus - 5 personer - Feriecenter Rim, Vestergade 97A, lejl. - Havneby - 6792 - Rømø
Alternative emner
I nærheden (636)Oversigt
- Soverum 3
- Badeværelser 1
- Boligareal 73 m²
- Grundareal 200 m²
- Husdyr 1
- Tilbyder miniferie Nej
- Afstand vand 1.500 m
- Afstand indkøb 900 m
- Internet Ja
- Vaskemaskine Ja
- Ikkeryger Ja
Beskrivelse
Op til 5 personer kan holde ferie sammen i det indbydende feriehus i Feriecenter Rim i Havneby. Hunden er også velkommen. Det fritliggende feriehus på Vestergade 97A rummer 73 kvadratmeter fordelt på 2 etager og egner sig godt til familien eller to par, der ønsker en afslappende ferie ved Vesterhavet.
Gennemtænkt og hyggelig indretning
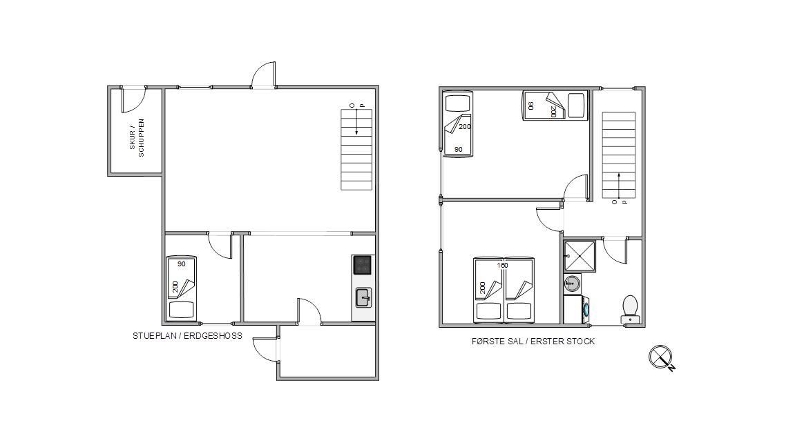
I den lyse stue kan I slappe af i sofahjørnet eller fordybe jer i en god bog. Ved spisebordet er der plads til hyggelige måltider eller en spilleaften, og det åbne køkken indeholder alt, hvad I behøver for at tilberede hjemmelavede retter. Badeværelset på 1. sal er praktisk indrettet og udstyret med vaskemaskine, så I nemt kan friske håndklæder og tøj op under ferien. De 3 soveværelser med 5 komfortable sengepladser er fordelt med 1 soveværelse med en enkeltseng i stueetagen, 1 soveværelse med dobbeltseng på 1. sal og 1 soveværelse med 2 enkeltsenge på 1. sal, så I kan fordele jer efter behov.
Åben terrasse med kig til kuperet natur
Fra opholdsstuen er der udgang til en åben terrasse med afskærmning ind mod naboen. Når I sidder på terrassen, har I udsigt til den kuperede natur med lyng og skrænt, som samtidig skærmer af ud mod vejen. Her kan I nyde morgenkaffen eller grille sammen om aftenen og tilberede aftensmaden i den friske havluft. Børnene kan lege og udfolde sig på feriecentrets nærliggende legeplads. Efter aftensmaden kan I gå en tur med hunden og nyde solnedgangen i havet.
Aktiv ferie for børn og voksne
Feriecenter Rim byder på alt, hvad I behøver for en fantastisk ferieoplevelse! Her finder I et bredt udvalg af faciliteter for enhver smag, uanset om I er til afslapning eller aktiviteter.
Indeholdt i lejeprisen er benyttelsen af tre dejlige swimmingpools, hvoraf den ene er udendørs og lader jer svømme under åben himmel (sommeråben). Efter en forfriskende dukkert kan I forkæle jer selv i saunaer eller holde jer i form i fitnesscenteret, som ligeledes er gratis for Feriecentrets gæster.
For de små er der et hyggeligt småbørnslegerum og to gode legepladser, hvor de kan lege og have det sjovt. De mere aktive kan udfordre sig selv på fodboldbanen eller hoppe på hoppepuden.
Til elbilejere er der to ladestandere med en maksimal ladetid på 3 timer, så I kan være klar til at udforske området.
For ekstra underholdning kan I mod betaling prøve kræfter med tennis, minigolf, spillemaskiner eller en omgang pool og air hockey. Og hvis I har brug for at få vasket tøj, er der også et møntvaskeri til rådighed.
Idylliske Havneby - tæt på stranden og Vadehavet
Feriehuset er en del af feriecentret Rim, som ligger i den sydlige ende af Rømø. Havnebys centrum er let tilgængeligt til fods eller på cykel. Her finder I supermarkeder, hvor I kan forsyne jer med lækkerier til grillen eller friske rundstykker til en lækker morgenmad.
Hvis I kan lide at se på dyr, bør I også tage en tur til Vadehavet, som ligger ca. 650 meter væk. Det er også muligt at tilmelde sig sort sol-arrangementer eller østerssafari alt efter årstiden. Badestranden Sønderstrand ligger kun 1,2 kilometer væk, og her må I absolut nyde den smukke sandstrand og det brusende Vesterhav. En solnedgang i Vesterhavet er altid en oplevelse.
Faciliteter
-
Opholdsrum
-
Gulv: Tæppe
-
Fladskærms-TV1
-
Ekstra varmekilder
-
-
Soverum
-
Gulv: Tæppe
-
Dobbeltsenge1
-
Enkeltsenge3
-
Sovepladser5
-
Soverum3
-
1. soverum/sengestørrelser160x200
-
2. soverum/sengestørrelser2x90x200
-
3. soverum/sengestørrelser90x200
-
-
Køkken
-
Komfur: El m. ovn
-
Køleskab m. frostboks
-
Mikroovn
-
-
Baderum
-
Antal badeværelser1
-
-
Objektinfo - Inde
-
Areal: Hus m²73
-
Byggeår1987
-
Husdyr tilladt
-
Husdyr antal, max1
-
Ikke ryger hus
-
Personantal5
-
Renoveret2015
-
Tyske tv-programmer
-
Varme: Fjernvarme
-
Vaskemaskine
-
Gratis fiber Internet
-
-
Objektinfo - ude
-
Afstand hav1,5 km
-
Afstand indkøb900 m
-
Areal: Grund m²200
-
Grill
-
Havemøbler
-
Terrasse: åben
-
Naturgrund
-
Affald hentes:Fælles
-
Affald: Helårstømning
-
Affald: Liter1
-
-
Koncepter
-
Skiftedag: Lørdag
-
Vandaflæsning
-
Priser og kalender
Kalender
Pris
- Ankomst
- Afrejse
- Varighed
- 1 uge
