Sommerhus - 5 personer - Nyvej - Hejlsminde - 6094 - Hejls
Alternative emner
I nærheden (254)Oversigt
- Soverum 2
- Badeværelser 1
- Boligareal 60 m²
- Husdyr Ikke tilladt
- Tilbyder miniferie Ja
- Afstand vand 275 m
- Afstand indkøb 2.300 m
- Internet Ja
- Brændeovn Ja
- Vaskemaskine Ja
- Opvaskemaskine Ja
- Ikkeryger Ja
- Energivenligt Ja
Beskrivelse
Dette smukt renoverede feriehus i Hejlsminde, næsten fuldstændig opdateret i 2021, byder på en perfekt blanding af moderne komfort og hyggeligt familieliv. I hjertet af huset er et lyst køkken og opholdsstue i åbent plan, omhyggeligt indrettet til afslapning, socialt samvær og fælles familiestunder.
Boligen har et Smart TV med Chromecast og Viaplay, sammen med hurtig Wi-Fi på 200/200 Mbit, der sikrer både underholdning og forbindelse. Familier med små børn vil sætte pris på den medfølgende barneseng og højstol, hvilket gør det nemt at finde sig til rette og nyde et stressfrit ophold.
Fra køkkenet og familieområdet, træde direkte ud på terrassen, som er delvist overdækket for at tillade udendørs nydelse selv om aftenen, eller når vejret er mindre forudsigeligt. Uanset om du spiser udendørs, nyder en morgenkaffe eller blot slapper af i den friske luft, tilføjer dette udendørsområde fleksibilitet og komfort til dit ophold.
Husets gennemtænkte indretning og moderne faciliteter gør det ideelt for familier, der leder efter en fredelig ferie nær kysten. Dens bekvemme beliggenhed i Hejlsminde giver nem adgang til lokale attraktioner, strande og udendørsaktiviteter, samtidig med at den bevarer en rolig atmosfære til afslapning.
Bemærk venligst, at udlejning til ungdomsgrupper ikke er tilladt, hvilket sikrer et roligt og familievenligt miljø under hele dit ophold. Denne ejendom kombinerer komfort, stil og en førsteklasses beliggenhed, hvilket gør den til et perfekt valg for en mindeværdig dansk ferie.
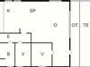
1 Opholdsstue: Brændeovn, Chromecast, tv, høj stol
2 Soveværelser: (1DS)+(3K), barneseng
Køkkenafd.: El-komfur, køle-frys, mikroovn, emhætte, kaffemaskine, opvaskemask., vaskemaskine
Bad/wc: Wc, håndvask, bruseniche, gulvvarme
Og: Terrasse, overd. terrasse, carport, el-varme, luft/luft varmepumpe, havegrill, anlagt have 570 m2, moderne møblering, sommerhusområde, ikke-ryger hus
- Nøglen til ferieboligen er til rådighed fra kl. 16:00 på indflytningsdagen.
- Nøglen udleveres ved huset.
- Dette hus er udstyret med smart lock
Vores gæsteanmeldelser Eksterne anmeldelser
Alle faciliteter
-
Afstand
-
Indkøb2,3 km
-
Kyst275 m
-
Restaurant800 m
-
-
Bad
-
Bruseniche
-
Håndvask
-
WC
-
-
Diverse
-
Antal badeværelser1
-
Antal soveværelser2
-
Badeland
-
Boligareal60 m²
-
Byggeår1964
-
Energihus
-
Høj stol
-
Højhastighedsinternet
-
Ikke ryger
-
Internet
-
Luft/luft varmepumpe
-
Nationalt tv
-
Renoveret2021
-
Tysk TV
-
-
Indendørs
-
Barneseng
-
Chromecast
-
Pejs / brændeovn
-
TV
-
Vaskemaskine
-
-
Køkken
-
El-komfur
-
Emhætte
-
Kaffemaskine
-
Køle-frys
-
Mikroovn
-
Opvaskemask.
-
-
Udendørs
-
Carport
-
Havegrill
-
Miniferie
Priser og kalender
Kalender
Pris
- Ankomst
- Afrejse
- Varighed
- 1 uge
