Feriehus med spa, sauna og stor terrasse
Sommerhus - 6 personer - Blåbærvej - 6854 - Henne Strand
Alternative emner
I nærheden (895)6 personer
Oversigt
Emne nr.: 320-182470
7 overnatninger
Fra
DKK 5.282,-
Inkl. forsikring
Skønt feriehus i Henne Strand med spa, sauna og stor terrasse nær stranden.
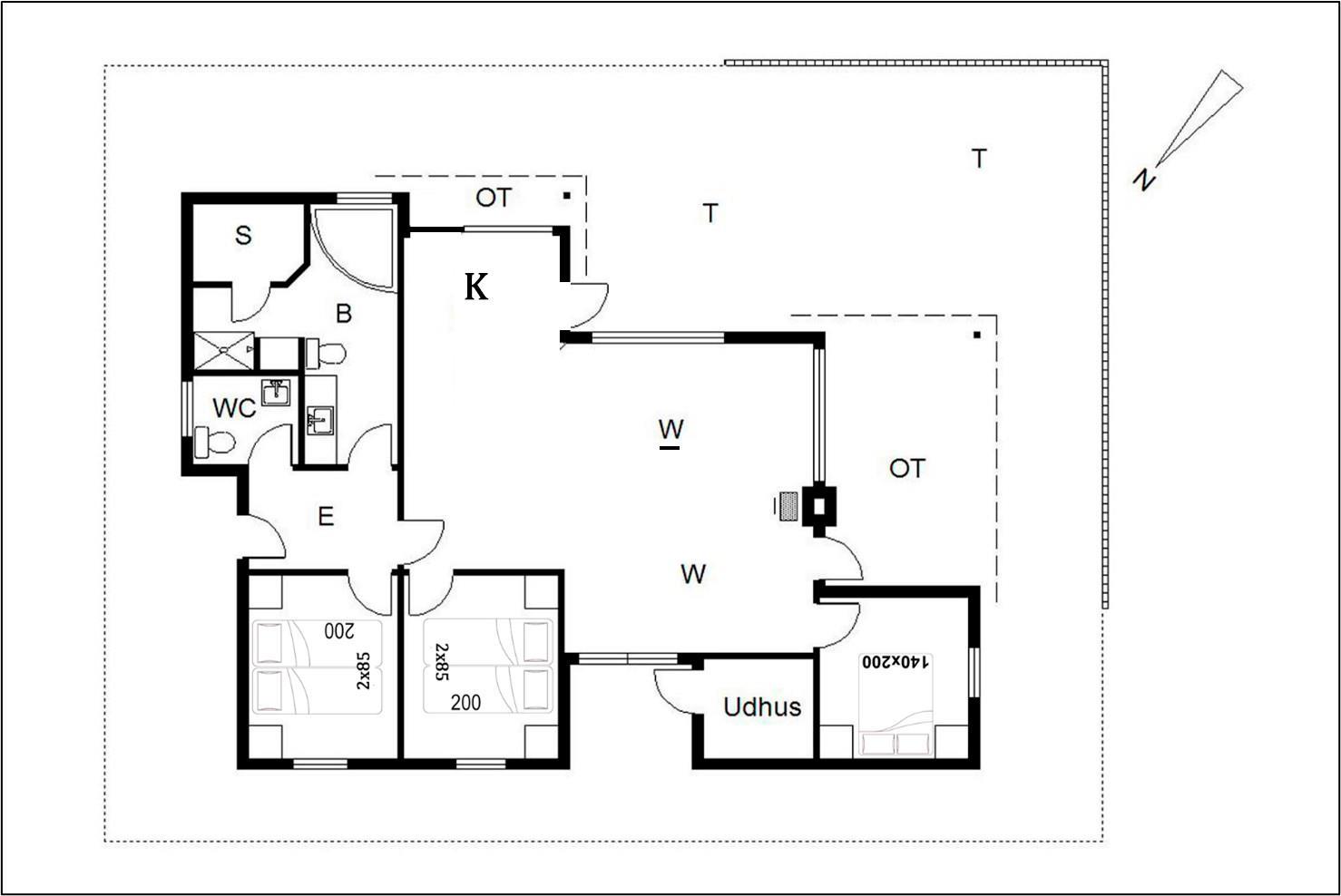
- Soverum 3
- Boligareal 100 m²
- Grundareal 1.500 m²
- Husdyr Ikke tilladt
- Tilbyder miniferie Nej
- Afstand vand 500 m
- Afstand indkøb 700 m
- Sauna Ja
- Internet Ja
- Parabol/kabel TV Ja
- Brændeovn Ja
- Vaskemaskine Ja
- Tørretumbler Ja
- Opvaskemaskine Ja
- Ikkeryger Ja
- Energivenligt Ja
Beskrivelse
Skønt feriehus beliggende på en ugeneret naturgrund i rolige omgivelser. Stort badeværelse med spa og sauna. Desuden gæstetoilet. Til huset hører såvel åben som overdækket terrasse. Hyggelig og pænt møbleret stue med brændeovn. 3 gode og rummelige soverum med dobbeltsenge.
Sengestørrelse: 2 dobbeltsenge med 2 madrasser 85 x 200 cm + 1 dobbeltseng 140 x 200 cm
Faciliteter
-
Opholdsrum
-
TV1
-
CD afspiller1
-
Trægulv
-
-
Soverum
-
Trægulv
-
Sovepladser6
-
Soverum3
-
Dobbeltseng3
-
-
Køkken
-
Trægulv
-
Kogeplader: El keramisk
-
Indbygningsovn
-
Emhætte
-
Køleskab med sep. fryseboks
-
Opvaskemaskine
-
-
Baderum
-
Gulvvarme
-
Toilet
-
Bruseniche
-
Ekstra: Toilet1
-
Sauna
-
-
Objektinfo
-
TV-programmer: Danske
-
TV-programmer: Tyske
-
Internetadgang: WiFi
-
Internetadgang
-
Husareal100
-
Byggeår1991
-
Renoveret: Delvis2023
-
Højstol1
-
Varme: Brændeovn
-
Varme: Varmepumpe1
-
Vaskemaskine
-
Tørretumbler
-
Værdiboks / Safe
-
Ikke ryger hus
-
-
Objektinfo - ude
-
Afstand hav500 m
-
Afstand indkøb700 m
-
Grundareal1500
-
Gynge
-
Sandkasse
-
Havemøbler
-
Liggestole
-
Overdækket terrasse
-
Priser og kalender
Kalender
Varighed
Pris
Periode
- Ankomst
- Afrejse
- Varighed
- 1 uge
Personer
Op til 6 personer
Bemærk
Ankomst er ikke valgt.
