Sommerhus - 6 personer - Langsand - 6960 - Hvide Sande
Alternative emner
I nærheden (278)Oversigt
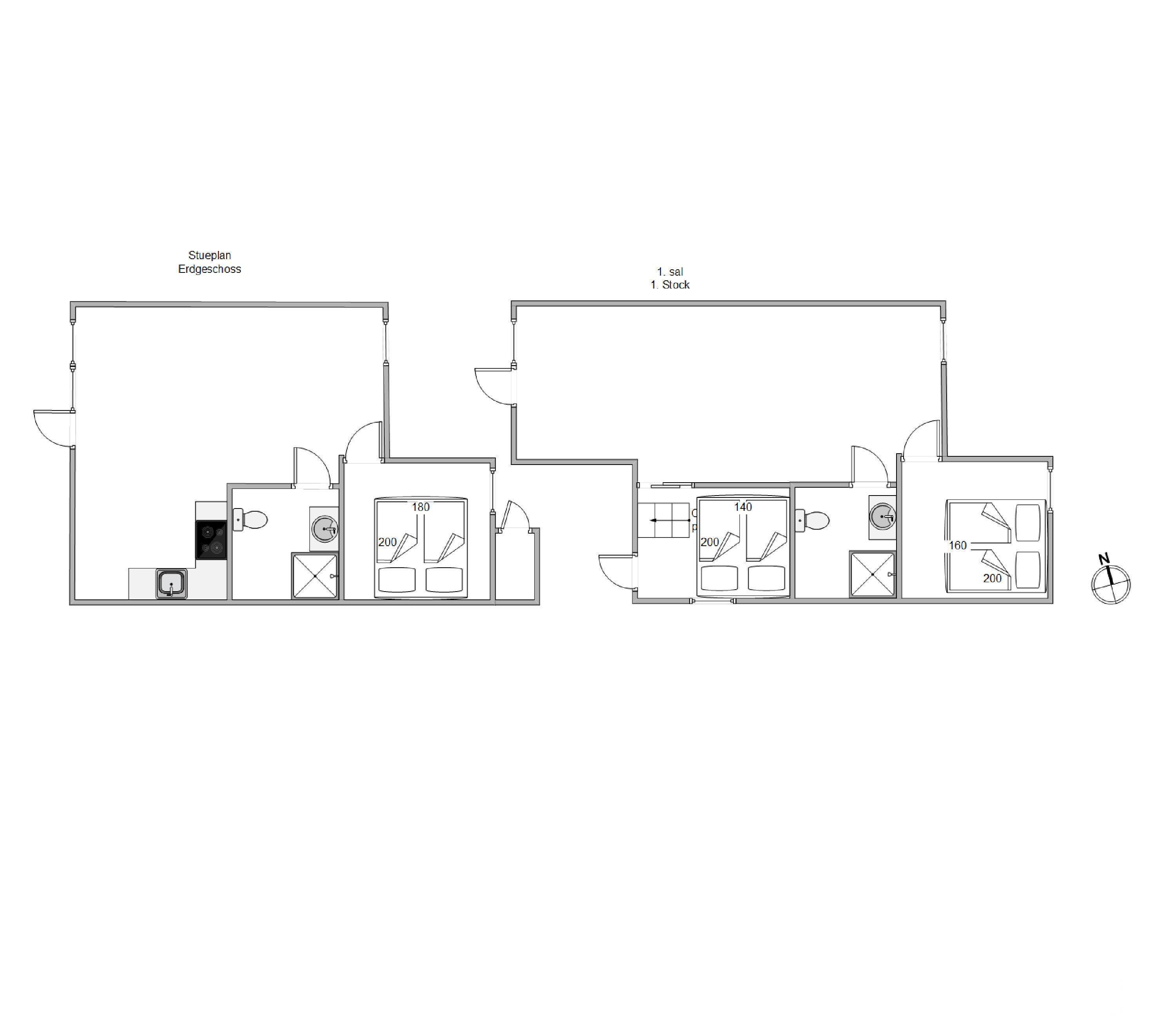
- Soverum 3
- Badeværelser 2
- Boligareal 96 m²
- Grundareal 102 m²
- Husdyr Ikke tilladt
- Tilbyder miniferie Nej
- Afstand vand 1.400 m
- Afstand indkøb 1 km
- Internet Ja
- Vaskemaskine Ja
- Tørretumbler Ja
- Opvaskemaskine Ja
- Ikkeryger Ja
Beskrivelse
Denne flotte, nybyggede (2019) ferielejlighed på fjordsiden i Hvide Sande, er en sand perle. Ferieboligen ligger i et helt nyanlagt ferieområde ved Ringkøbing Fjord, og der er en fantastisk udsigt fra alle terrasserne. Hvide Sandes charmerende centrum ligger 10 minutters gang væk!
Moderne ferielejlighed på to etager
Kom med indenfor - vi byder velkommen på Langsand 100, som har 96 m² (fordelt på to etager) og plads til 6 personer. Indretningen er moderne med lyse farver bl.a. i soverummene og store vinduespartier, der inviterer de naturskønne omgivelser indenfor og giver et fantastisk lysindfald - og så kan I stå op til de smukkeste solopgange.
Sovepladserne er fordelt på tre gode dobbeltsenge. Her er desuden lavet en hyggelig hems over det ene værelse, hvor der er plads til børnenes leg. Det veludstyrede køkken har alt, hvad et feriekokken har brug for, samt en opvaskemaskine, der hjælper til med oprydningen efter aftensmaden.
Ferielejligheden er udstyret med 2 badeværelser med gulvvarme, så I slipper for lange toiletkøer og kolde fødder om morgenen. Med en hurtig og stabil internetforbindelse kan I alle være online på ferien og streame film på de medbragte iPad's og computere. Her er desuden placeret 2 gode lænestole, i en dejlig hyggekrog med udsigt udover fjorden. Her kan man læne sig tilbage og nyde ferieroen sænke sig.
Fantastiske terrasser med udsigt og kort vej til centrum
De skønne sommerdage skal selvfølgelig også bruges udenfor, og I får intet mindre end 4 fantastiske terrasser. Sæt jer godt til rette i de gode havemøbler og nyd solens stråler og den smukke udsigt hen over vejen til det naturskønne ferieområde ved Langsand. Når dagen går på hæld, kan I tænde op i grillen og spise en lækker middag i den gyldne aftensol.
Beliggenheden er rigtig skøn med en charmerende blanding af havnelivet og en herlig natur til alle sider. Der går en sti langs fjorden, så I kan udforske området helt tæt på. I kommer også til at bo ved den autentiske 'Tyskerhavn', en lille fjordhavn med små kuttere. Her hersker en helt speciel atmosfære. På hverdage kan der forekomme erhvervsmæssig kørsel på vejen foran lejligheden.
Kun 10 minutters gang fra ferieboligen ligger Hvide Sandes hyggelige bymidte med spændende forretninger, lækre iscaféer og restauranter, hvor I kan smage på de lokale (maritime) specialiteter. Der er gode parkeringsmuligheder i byen, samt en parkeringsplads direkte ved strandopgangen.
Vores gæsteanmeldelser Eksterne anmeldelser
Faciliteter
-
Opholdsrum
-
DVD-afspiller1
-
Gulv: Trælaminat
-
Gulvvarme
-
Fladskærms-TV2
-
Dock/Bluetooth enhed
-
Ekstra varmekilder
-
-
Soverum
-
Gulv: Trælaminat
-
Dobbeltsenge3
-
Sovepladser6
-
Soverum3
-
1. soverum/sengestørrelser1x180x200
-
2. soverum/sengestørrelser1x160x200
-
3. soverum/sengestørrelser1x140x200
-
-
Køkken
-
Komfur: Induktion m. ovn
-
Køleskab
-
Opvaskemaskine
-
Mikroovn
-
Separat fryser /L60
-
-
Baderum
-
Gulvvarme bad
-
Antal badeværelser2
-
-
Objektinfo - Inde
-
Areal: Hus m²96
-
Byggeår2019
-
Ikke ryger hus
-
Personantal6
-
Danske TV-kanaler (Betalingskanaler)
-
Tyske tv-programmer
-
Tørretumbler
-
Varme: Fjernvarme
-
Vaskemaskine
-
Gratis fiber Internet
-
-
Objektinfo - ude
-
Afstand hav1,4 km
-
Afstand indkøb1 km
-
Areal: Grund m²102
-
Grill
-
Havemøbler
-
Solvogne
-
Parasol
-
Terrasse: åben
-
Terrasse: Afskærmet
-
Terrasse: Overdækket
-
Naturgrund
-
Panoramaudsigt
-
Affald hentes:Fælles
-
Affald: Helårstømning
-
Affald: Liter240
-
-
Koncepter
-
Skiftedag: Fredag
-
Varme: 24 timer f. ankomst
-
Ferielejlighed
-
Priser og kalender
Kalender
-
maj 2026
ma ti on to fr lø sø 18 1 2 3 19 4 5 6 7 8 9 10 20 11 12 13 14 15 16 17 21 18 19 20 21 22 23 24 22 25 26 27 28 29 30 31 23 -
juni 2026
ma ti on to fr lø sø 23 1 2 3 4 5 6 7 24 8 9 10 11 12 13 14 25 15 16 17 18 19 20 21 26 22 23 24 25 26 27 28 27 29 30 28
Pris
- Ankomst
- Afrejse
- Varighed
- 1 uge
