Sommerhus - 4 personer - Æ Gammel Havn - 6960 - Hvide Sande
Alternative emner
I nærheden (281)Oversigt
- Soverum 1
- Badeværelser 1
- Boligareal 35 m²
- Grundareal 100 m²
- Husdyr Ikke tilladt
- Tilbyder miniferie Nej
- Afstand vand 1.300 m
- Afstand indkøb 1 km
- Internet Ja
- Parabol/kabel TV Ja
- Opvaskemaskine Ja
- Ikkeryger Ja
- Energivenligt Ja
Beskrivelse
En virkelig hyggelig og moderne hytte på Tyskerhavnen i Hvide Sande. Her bor du i ægte havnemiljø, med den hyggelige jollehavn lige i baghaven. Hytten har plads til max 4 personer, og ligger midt i Hvide Sande, perfekt for et par eller for en lille familie der gerne vil bo centralt.
Afslapning i Hvide Sande
En dejlig lille hytte bygget i et gammelt havne område i Hvide Sande. Her har hytterne i mange år fungeret som opmagasinering for fiskernes redskaber. I dag er mange af de gamle hytter fjernet og bliver nu erstattet at disse små hyggelige hytter, som er bygget med respekt for området, så det autentiske miljø bevares. Her er kun et par minutters gang til fjorden og Hvide Sandes hyggelige Lystbådehavn, og til Tyskerhavnen, – en velfungerende lille jollehavn hvor der losses små fangster af f.eks. sild og skrubber.
Moderne og hyggelig
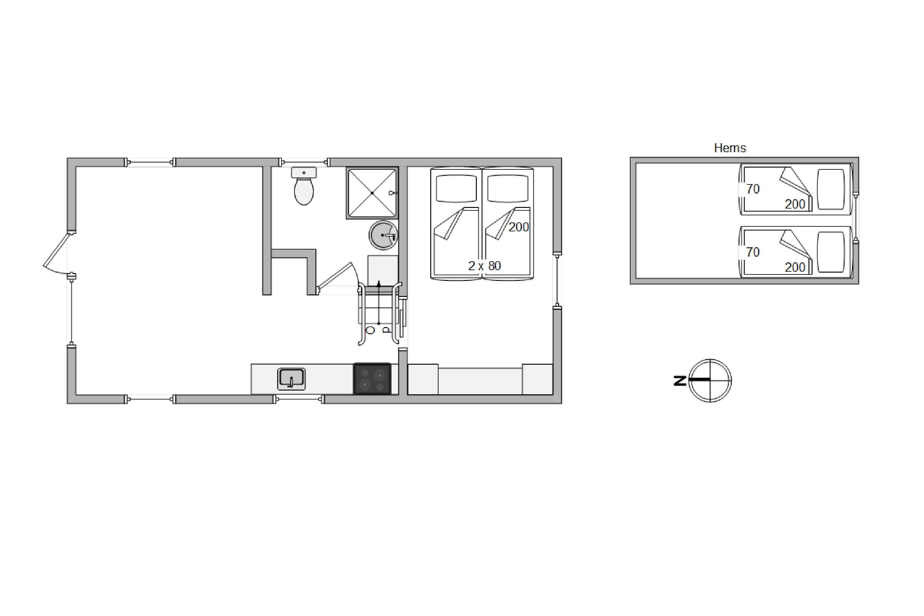
Den lille fine hytte er bygget i med respekt for omgivelserne og i samme stil som de gamle hytter der står i området. Inden i er hytten moderne og indbydende indrettet med et godt soveværelse med dobbeltseng og fladskærm, fint badeværese med gulvvarme og bruseniche og praktisk indrettet køkken med opvaskemaskine og køle/fryse skab. Den hyggelige stue står i åben forbindelse med køkkenet og her er der adgang til hems med 2 sovepladser. Fjernsynet poå hemsen er kun til DVD-afspiller eller spillekonsol. I stuen er der fladskærms-TV og du har også adgang til gratis trådløst internet. Hytten opvarmes med en energibesparende varmepumpe.
Den store port giver godt afskærmning på den lille terrasse, hvor du kan nyde den friske luft og slappe af med fjorden som den hyggelige baggrund.
Det idelle udgangspunkt for en rigtig lystfiskerferie.
Faciliteter
-
Opholdsrum
-
DVD-afspiller2
-
Gulv: Trælaminat
-
Radio
-
Fladskærms-TV1
-
Ekstra varmekilder
-
-
Soverum
-
Ekstra sovepl. Hems1
-
Gulv: Trælaminat
-
Enkeltsenge4
-
Sovepladser4
-
Soverum1
-
Antal personer (loft, anneks osv.)2
-
1. soverum/sengestørrelser2x80x200
-
2. soverum/sengestørrelser2x70x200
-
-
Køkken
-
Komfur: Induktion m. ovn
-
Køleskab
-
Opvaskemaskine
-
Mikroovn
-
Separat fryser /L50
-
-
Baderum
-
Gulvvarme bad
-
Antal badeværelser1
-
-
Objektinfo - Inde
-
Areal: Hus m²35
-
Byggeår2013
-
Ikke ryger hus
-
Gratis Internet
-
Personantal4
-
Tyske tv-programmer
-
Varme: Elvarme
-
Varme: Varmepumpe luft til luft
-
Parabol (enkelte danske og tyske kanaler)
-
-
Objektinfo - ude
-
Afstand hav1,3 km
-
Afstand indkøb1 km
-
Areal: Grund m²100
-
Grill
-
Havemøbler
-
Solvogne
-
Terrasse: åben
-
Naturgrund
-
Affald hentes:Mandag
-
Affald: Liter240
-
-
Koncepter
-
Skiftedag: Fredag
-
Priser og kalender
Kalender
Pris
- Ankomst
- Afrejse
- Varighed
- 1 uge
