Sommerhus - 4 personer - Lars Badskjærs Sti - Klitmøller - 7700 - Thisted
Alternative emner
I nærheden (249)Oversigt
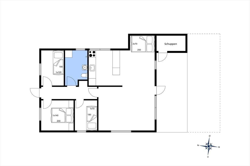
- Soverum 3
- Badeværelser 1
- Boligareal 66 m²
- Grundareal 400 m²
- Husdyr 1
- Tilbyder miniferie Ja
- Afstand vand 1.200 m
- Afstand indkøb 700 m
- Internet Ja
- Parabol/kabel TV Ja
- Aircondition Ja
- Vaskemaskine Ja
- Opvaskemaskine Ja
- Ikkeryger Ja
- Energivenligt Ja
Beskrivelse
Oplev det autentiske Klitmøller i dette charmerende træsommerhus på Lars Badskjærs Sti 2. Her forenes natur og komfort i en perfekt balance, og du får både ro, udsigt og plads til at nyde ferien med dem, du holder af – og måske også din firbenede ven.
Velkommen indenfor
Når du træder ind i sommerhuset, mærker du straks den hyggelige og indbydende atmosfære. Det klassiske træinteriør danner en varm ramme om din ferie, og med plads til op til seks personer er der god mulighed for at samle familien eller vennegruppen til afslappende dage i fredelige omgivelser. Huset er udstyret med en varmepumpe, som sikrer et behageligt indeklima året rundt. Efter en dag i naturen kan du slappe af i stuen med en god bog eller foran fjernsynet.
Nyd livet udenfor
Sommerhuset ligger på en stor naturgrund, der giver fornemmelsen af at være midt i den vilde, uspolerede natur. Fra terrassen kan du nyde udsigten over Nationalpark Thy, mens du drikker morgenkaffe eller planlægger dagens eventyr. Den omkringliggende natur indbyder til alt fra leg på græsset til afslappende øjeblikke i solen – måske med en god bog eller et glas vin i hånden. Her er der også plads til, at familiens hund kan boltre sig i det fri. Beliggenheden i Klitmøller, lige ved Cold Hawaiis betagende kyst, gør det nemt at kombinere afslapning med oplevelser i naturen.
Kom tæt på de lokale oplevelser
Fra sommerhuset er der kort afstand til alt, hvad Klitmøller og omegn har at byde på. Området er kendt som Cold Hawaii og er et paradis for surfere, men også for dem, der elsker lange gåture langs stranden, cykelture i det bakkede terræn eller bare at nyde den friske luft og de imponerende naturoplevelser. Nationalpark Thy ligger lige uden for døren og inviterer til spændende vandreture blandt søer, klitter og skove. Efter dagens eventyr kan du udforske de lokale spisesteder, hvor friske fisk og skaldyr ofte står på menuen.
Husk, at du altid kan låne trækvogne, barnestole og barnesenge hos os i . Du kan hente dem direkte på bureauet og returnere dem til os igen, når din ferie er vel overstået.
Alle faciliteter
-
Hus Info
-
Antal husdyr1
-
Antal voksne4
-
Bruser
-
Byggeår1978
-
Grundareal / Naturgrund400 m²
-
Husareal66 m²
-
Udsigt over landskab
-
WC
-
-
Afstande
-
Afstand golfbane2,5 km
-
Afstand hav1,2 km
-
Afstand indkøb / Helårsbutik700 m
-
Afstand restaurant1,6 km
-
Afstand strand / Sand-/stenstrand1,2 km
-
-
Energi / Opvarmning
-
Elvarme
-
Varmepumpe / Med køl
-
-
Hårde hvidevarer
-
Elkedel
-
Emhætte
-
Kaffemaskine
-
KomfurMed keramiske kogeplader
-
Mikroovn
-
Opvaskemaskine
-
Strygebræt
-
Strygejern
-
Vaskemaskine
-
-
Multimedier
-
ChromecastTil streaming
-
Dansk tv
-
Gratis Wi-Fi - Over 100 Mbit
-
Kabel-TVMere TV
-
Norsk TV
-
Svensk TV
-
TV
-
Tysk TV
-
-
Ekstra
-
Golfferie
-
Vandrevenlig
-
-
Udenfor
-
Aflåst skur
-
GrillGas
-
Havemøbler
-
Liggestole2
-
Parasol1
-
Parkering på grunden
-
Terrasse
-
-
Diverse
-
2 x madras70x200
-
Afmærkede vandreruter i nærheden
-
Dobbeltseng 140x200
-
Enkeltseng 1x70x180
-
Gulvvarme
-
Sovesofa dobbelt120x190
-
-
Regler
-
Husdyr: alle slags husdyr tilladt
-
Opladning af elbil ikke tilladt
-
Rygning ikke tilladt
-
-
Pris inklusiv
-
Gratis adgang til aktiviteter / Tennis
-
Gratis adgang til Badeland / Svømmehal / Sydthy Svømmebad og Thyhallens Svømmecenter
-
Slutrengøring inkl.
-
Vand inkl.
-
Miniferie
Priser og kalender
Kalender
Pris
- Ankomst
- Afrejse
- Varighed
- 1 uge
