Sommerhus - 8 personer - Ørhagevej - Klitmøller - 7700 - Thisted
Alternative emner
I nærheden (248)Oversigt
- Soverum 4
- Badeværelser 2
- Boligareal 138 m²
- Grundareal 1.009 m²
- Husdyr 1
- Tilbyder miniferie Ja
- Afstand vand 200 m
- Afstand indkøb 800 m
- Sauna Ja
- Internet Ja
- Brændeovn Ja
- Vaskemaskine Ja
- Tørretumbler Ja
- Opvaskemaskine Ja
- Ikkeryger Ja
Beskrivelse
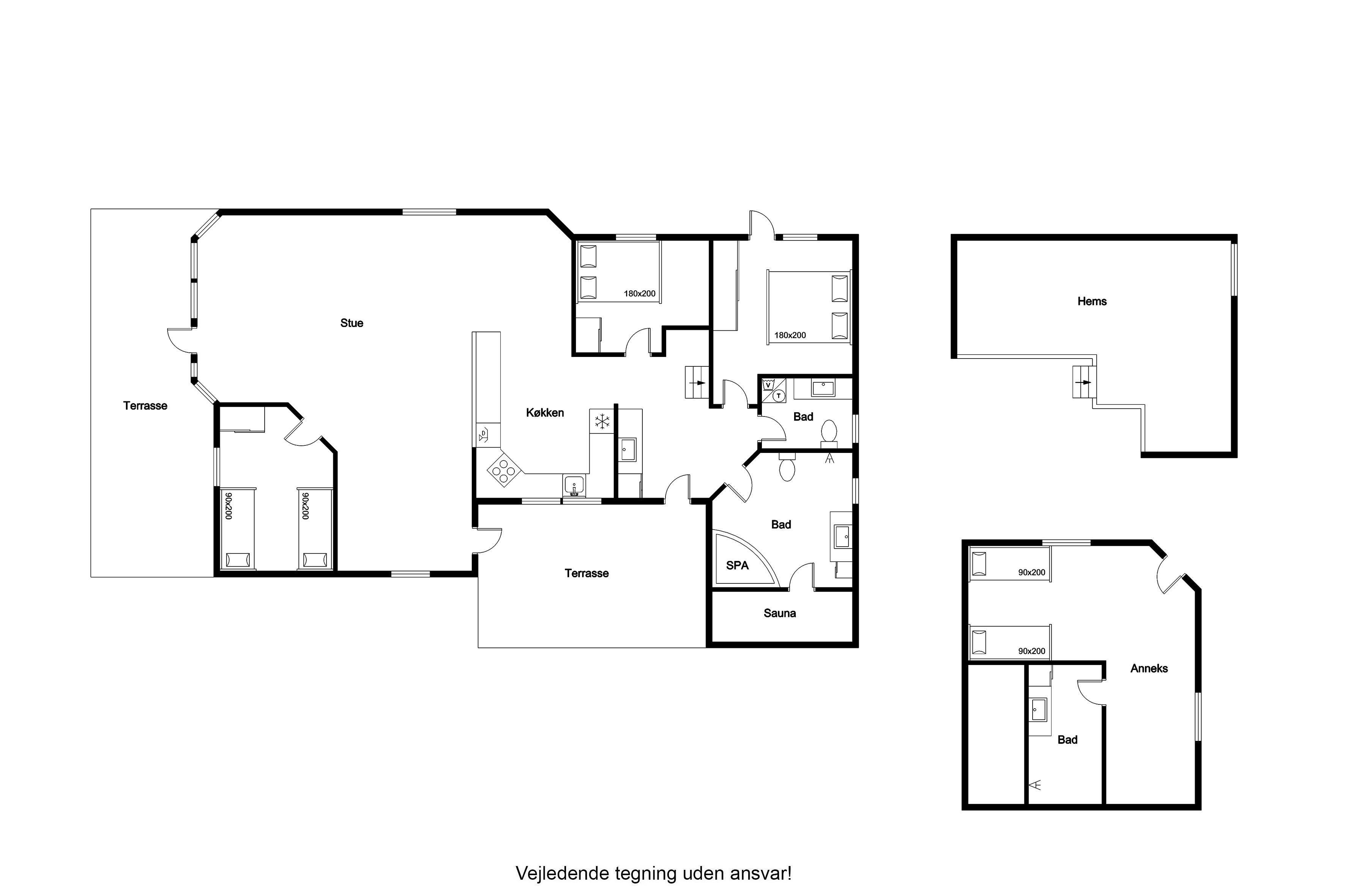
Dette skønne feriehus på Ørhagevej 96B i Klitmøller, er perfekt til en familie eller en gruppe venner, der ønsker at nyde en afslappende tid sammen i naturskønne omgivelser. Huset, som blev bygget i 2001, tilbyder moderne faciliteter og en rummelig indretning, der gør det ideelt til op til 8 personer. Med et grundareal på 1009 kvadratmeter og et husareal på 138 kvadratmeter, er der rigeligt med plads til alle.
Huset har en dejlig beliggenhed kun 200 meter fra vandet, hvilket giver mulighed for både afslapning ved stranden og spændende vandaktiviteter. Det er også tilladt at tage husdyr med, så du kan tage din firbenede ven med på ferie. Huset er designet til at være komfortabelt og funktionelt med faciliteter, der opfylder alle behov.
Indenfor finder du fire hyggelige soveværelser, hvoraf tre er udstyret med dobbeltsenge. Det fjerde værelse, der befinder sig i husets anneks, er udstyret med to enkeltsenge. Dette giver fleksibilitet til at rumme både par og enkeltpersoner. Der er også to moderne badeværelser og et gæstetoilet, hvoraf det ene af badeværelserne har både bruser og et luksuriøst badekar, perfekt til at slappe af efter en lang dag. Det andet af badeværelserne befinder sig i husets anneks. Begge badeværelser har gulvvarme, hvilket sikrer en behagelig temperatur, selv på de køligere dage.
Husets stue er det ideelle sted at samles, hvor du kan nyde en varm ild fra brændeovnen eller se en film på det store fjernsyn med adgang til både dansk og tysk TV. Med Chromecast og trådløst internet kan du nemt streame dine yndlingsprogrammer eller holde kontakten med omverdenen. For dem, der ønsker at tilberede lækre måltider, er det moderne køkken udstyret med alle nødvendige apparater, herunder en induktionskomfur, ovn, mikrobølgeovn, opvaskemaskine, køleskab og en kaffemaskine.
Huset har også praktiske faciliteter som vaskemaskine og tørretumbler, hvilket gør det nemt at holde tøj rent og friskt under dit ophold. Derudover er der en barneseng og barnestol til rådighed, hvilket gør det til et familievenligt valg.
Udendørsområdet er lige så imponerende med en stor terrasse, hvor du kan nyde solen eller grille lækre måltider på den medfølgende grill. For dem, der ønsker at slappe af, er der også en indesauna, perfekt til at løsne op efter en dag med aktiviteter.
Uanset om du søger eventyr ved vandet, afslapning i saunaen eller hyggelige stunder ved brændeovnen, vil dette hus opfylde alle dine behov.
Faciliteter
-
Afstande
-
Afstand vand200 m
-
Afstand indkøb800 m
-
Afstand restaurant100 m
-
-
Huset
-
Byggeår2001
-
Grundareal1009
-
Husareal138
-
Husdyr tilladt
-
Intet depositum
-
Elvarme
-
Skur
-
Max antal personer8
-
Husdyr1
-
Rygning ikke tilladt
-
Antal stjerner4
-
Opvarmning
-
Etager1
-
Ungdomsgrupper ikke tilladt
-
Nøgleboks ved hus
-
Anneks
-
-
Huset - indendørs
-
Brændeovn
-
Gulvvarme
-
Toiletter3
-
Badeværelser2
-
Barnestol
-
Gulvvarme på badeværelse
-
Køkken
-
Stue1
-
Skorsten
-
Røgalarm
-
Antal Køkkener1
-
Bruser2
-
Gæste toilet1
-
-
Huset - udendørs
-
Havemøbler
-
Grill
-
Liggestole2
-
Terrasse
-
Gratis parkering
-
-
Hårde hvidevarer
-
Vaskemaskine
-
Tørretumbler
-
Opvaskemaskine
-
Mikrobølgeovn
-
Ovn
-
Køleskab
-
Kaffemaskine
-
Induktionskomfur
-
-
Multimedier
-
Fjernsyn
-
Trådløst internet
-
Antal Fjernsyn1
-
Chromecast
-
Tysk TV
-
Dansk tv
-
-
Wellness
-
Sauna
-
Badekar
-
Indesauna
-
-
Soverum
-
Barneseng
-
Soverværelser4
-
Dobbeltsenge3
-
Enkeltsenge2
-
Sovepladser8
-
Soveværelse 1: Dobbeltsenge1
-
Soveværelse 2: Dobbeltsenge1
-
Soveværelse 4: Dobbeltsenge1
-
Soveværelse 3: Enkeltsenge2
-
-
Faciliteter
-
Ikke-ryger
-
Miniferie
Priser og kalender
Kalender
Pris
- Ankomst
- Afrejse
- Varighed
- 1 uge
