Sommerhus - 6 personer - Ivigtut - Kongsmark - 6792 - Rømø
Alternative emner
I nærheden (351)Oversigt
- Soverum 3
- Badeværelser 1
- Boligareal 113 m²
- Grundareal 2.500 m²
- Husdyr 1
- Tilbyder miniferie Ja
- Afstand vand 2.900 m
- Afstand indkøb 4.500 m
- Sauna Ja
- Internet Ja
- Parabol/kabel TV Ja
- Brændeovn Ja
- Vaskemaskine Ja
- Tørretumbler Ja
- Opvaskemaskine Ja
- Ikkeryger Ja
- Energivenligt Ja
Beskrivelse
Solskinsfrokost på terrassen, hyggestunder nær brændeovnen, afslapning i saunaen og udflugter i naturskønne omgivelser – alt det og meget mere kan I se frem til, når I holder ferie i dette fine, stråtækte sommerhus i Kongsmark.
Velkommen indenfor
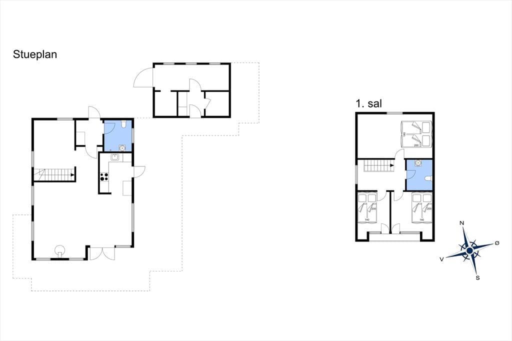
Sommerhuset er et lyst og særdeles hyggeligt eksemplar fra 1970, som fremstår pænt og velholdt takket være omsorgsfuld renovering. Planløsningen er fornuftig med tre gode soveværelser, der alle ligger på førstesalen. Et toilet er også placeret på førstesalen, mens husets badeværelse ligger i stueplan. Nyt badeværelse i stueplan fra 2021. Her finder I også den dejlige opholdsafdeling, der består af køkken og stue i åben forbindelse. Det veludstyrede køkken er et dejligt sted at kokkerere, og takket være den åbne planløsning er det muligt at tage del i familiehyggen og nyde varmen fra brændeovnen, selvom man tager dagens kokketjans. Får I lyst til en tur i saunaen, skal I over i tilbygningen, der også byder på en ekstra bruser samt opvaskemaskine, vaskemaskine, tørretumbler og fryser.
Nyd livet udenfor
Udearealerne er skønne, for sommerhuset er placeret på en stor naturgrund, der skærmes af fyrretræer. På en del af grunden får beplantningen lov til at vokse mere vildt. Endelig er der terrassen, som breder sig om flere sider af sommerhuset og tilbygningerne. Uanset tidspunktet på dagen er det nemt at finde en solrig opholdsplads, og hvis I hellere vil have skygge, kan I slå parasollen op eller sætte jer på førstesalens overdækkede altan.
Kom tæt på de lokale oplevelser
På den anden side af den lukkede vej breder et fredet naturområde sig helt til Lakolk – så det er ingen overdrivelse at sige, at alt ånder fred og idyl på adressen. Fra Kongsmark er det nemt at tage på udflugt i Rømøs smukke natur: Lakolk er den rette destination, hvis I vil bade i Vesterhavet og lege på en bred sandstrand, mens Sønderstrand er et skønt sted at køre blokart og kitebuggy. Vil I spille golf, kan I tage mod Havneby, hvor I også kan leje cykler og tage færgen mod Sild. Ved Rømøs kyster er det oplagt at se nærmere på Vadehavet, som er optaget på UNESCO’s verdensarvsliste. For eksempel kan I nyde panoramaudsigten, når I kører over Rømø-dæmningen ind til fastlandet.
Rumindretning
- Soveværelse
- Dobbeltseng - 140 x 200
- Soveværelse
- Dobbeltseng - 180 x 200
- Soveværelse
- Dobbeltseng - 140 x 200
Vores gæsteanmeldelser Eksterne anmeldelser
Alle faciliteter
-
Hus Info
-
2 x Bruser
-
2 x WC
-
Antal husdyr1
-
Antal voksne6
-
Byggeår1970
-
Grundareal / Naturgrund2500 m²
-
Husareal113 m²
-
Renoveringsår1998
-
Sauna
-
-
Afstande
-
Afstand golfbane7 km
-
Afstand indkøb / Helårsbutik4,5 km
-
Afstand restaurant2,9 km
-
Afstand strand / Sandstrand2,9 km
-
-
Energi / Opvarmning
-
Brændeovn
-
Elvarme
-
Varmepumpe / Uden køl
-
-
Hårde hvidevarer
-
Elkedel
-
Emhætte
-
Fryser66
-
Kaffemaskine
-
Kogeplader
-
Køleskab100
-
Mikroovn
-
Opvaskemaskine
-
Ovn
-
Tørretumbler
-
Vaskemaskine
-
-
Multimedier
-
2 x TV
-
2 x Tysk tv
-
Dansk tv
-
Gratis Wi-Fi - Over 20 Mbit
-
Parabol
-
-
Ekstra
-
Barnestol
-
Golfferie
-
-
Udenfor
-
Garage15 m²
-
Grill
-
Havemøbler
-
Liggestole2
-
Parasol1
-
Parkering på grunden
-
Åben terrasse
-
-
Diverse
-
Gulvvarme
-
-
Regler
-
Husdyr: alle slags husdyr tilladt
-
Opladning af elbil tilladt / Medbring nødlader/mormorkabel
-
Rygning ikke tilladt
-
-
Pris inklusiv
-
Slutrengøring inkl.
-
-
GAMMEL
-
CD
-
DVD
-
Radio
-
Miniferie
Priser og kalender
Kalender
Pris
- Ankomst
- Afrejse
- Varighed
- 1 uge
