Sommerhus - 6 personer - Fugleklovej - Lønstrup - 9800 - Hjørring
Alternative emner
I nærheden (430)Oversigt
- Soverum 2
- Badeværelser 1
- Boligareal 79 m²
- Grundareal 1.200 m²
- Husdyr Ikke tilladt
- Tilbyder miniferie Ja
- Afstand vand 750 m
- Afstand indkøb 650 m
- Internet Ja
- Parabol/kabel TV Ja
- Brændeovn Ja
- Vaskemaskine Ja
- Opvaskemaskine Ja
- Ikkeryger Ja
- Energivenligt Ja
Beskrivelse
Skønt sommerhus med dejlige terrasser og kort til Lønstrups strand
Dette lyse og hyggeligt indrettede sommerhus på Fugleklovej 15 giver dig og dine nærmeste en perfekt ramme om en afslappende ferie i Lønstrup. Med sin skønne beliggenhed, nær både strand og byliv, kan du nemt nyde både morgensol og aftensol fra de flere terrasser, mens du trækker frisk luft og lader feriestemningen sænke sig. Sommerhuset har plads til seks personer og rummer alt, hvad du behøver for en hyggelig ferie tæt på naturen.
Velkommen indenfor
Når du træder indenfor i sommerhuset, mødes du af en lys og indbydende atmosfære, der gør det til en fornøjelse at tilbringe tid her. De store vinduer giver et fantastisk lysindfald og åbner op for den rolige havegrund. Indretningen er lys og charmerende med både klassiske og moderne detaljer, og du vil hurtigt føle dig hjemme. Stuen og køkkenet er i åben forbindelse, hvilket giver masser af plads til både samvær og afslapning. Når du sætter dig til rette i sofaen, er det let at forestille sig hyggelige stunder med en god bog eller et glas vin, mens solen langsomt går ned over området.
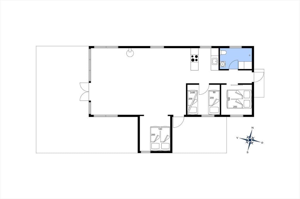
Sommerhuset har en god rumfordeling, der passer til både familie og vennegruppe, og de to soveværelser er skabt til en god nattesøvn. En ekstra soveplads findes i den hyggelige alkove i stuen, som er perfekt til dem, der gerne vil være tæt på fællesskabet. De øvrige rum fremstår enkle og funktionelle, hvilket understøtter den afslappende ferieoplevelse.
Nyd livet udenfor
Det er de udendørs arealer, der virkelig gør sommerhuset til noget særligt. Den store havegrund giver rig mulighed for både leg og afslapning, og med flere terrasser rundt om huset har du mulighed for at vælge, om du vil sidde i morgensolen eller flytte over til den sydvestvendte terrasse og nyde aftensolen. Hvis du vil tage en pause fra solen, kan du slappe af i skyggen på den delvist overdækkede terrasse. Uanset hvor du vælger at slå dig ned, vil du opleve den rolige atmosfære, som omgivelserne her i Lønstrup skaber.
Kom tæt på de lokale oplevelser
Sommerhusets beliggenhed gør det nemt at opleve alt det, Lønstrup og de omkringliggende områder har at byde på. Kun en kort gåtur bringer dig til den smukke strand, hvor du kan tage en forfriskende dukkert i Vesterhavet eller gå en tur langs kysten. Lønstrup by byder på hyggelige caféer, kunsthåndværk, gallerier og butikker, hvor du kan finde unikke souvenirs og kunstværker. Du kan også tage en tur op på Lønstrup Klint, som byder på en fantastisk udsigt over havet og det omkringliggende landskab. Hvis du er i humør til noget ekstra lækkert, kan du besøge de lokale restauranter, der byder på alt fra lokale delikatesser til gastronomiske oplevelser.
Sommerhuset er en ideel base for både afslapning og aktiviteter i området.
Husk, at du altid kan låne trækvogne, barnestole og barnesenge hos os i Lønstrup. Du kan hente dem direkte på bureauet og returnere dem til os igen, når din ferie er vel overstået.
Rumindretning
- Soveværelse
- Køjeseng - 90x200
- Enkelt seng - 90x200
- Soveværelse
- Dobbeltseng - 180x200
Vores gæsteanmeldelser Eksterne anmeldelser
Alle faciliteter
-
Hus Info
-
Antal voksne6
-
Bruser
-
Byggeår1986
-
Grundareal / Naturgrund1200 m²
-
Husareal79 m²
-
WC
-
-
Afstande
-
Afstand golfbane3,3 km
-
Afstand indkøb / Helårsbutik650 m
-
Afstand restaurant650 m
-
Afstand strand / Sand-/stenstrand750 m
-
-
Energi / Opvarmning
-
Brændeovn
-
Elvarme
-
Varmepumpe
-
-
Hårde hvidevarer
-
Elkedel
-
Emhætte
-
Kaffemaskine
-
Komfur
-
Køleskab
-
Køleskab med frys
-
Mikroovn
-
Opvaskemaskine
-
Vaskemaskine
-
-
Multimedier
-
Dansk tvDesværre ingen TV2
-
Gratis Wi-Fi - Over 20 Mbit
-
Kabel-TV
-
TV
-
Tysk TVKun et par tyske programmer
-
-
Ekstra
-
Golfferie
-
-
Udenfor
-
Garage
-
Grill
-
Havemøbler
-
Liggestole2
-
Parasol
-
Parkering på grunden
-
Åben terrasse55 m²
-
-
Regler
-
Husdyr ikke tilladt
-
Opladning af elbil ikke tilladt
-
Rygning ikke tilladt
-
-
Pris inklusiv
-
Slutrengøring inkl.
-
Vand inkl.
-
-
GAMMEL
-
CD
-
DVD
-
Radio
-
Miniferie
Priser og kalender
Kalender
Pris
- Ankomst
- Afrejse
- Varighed
- 1 uge
