Sommerhus - 6 personer - Marken - Lønstrup - 9800 - Hjørring
Alternative emner
I nærheden (423)Oversigt
- Soverum 3
- Badeværelser 1
- Boligareal 84 m²
- Grundareal 1.182 m²
- Husdyr Ikke tilladt
- Tilbyder miniferie Ja
- Afstand vand 560 m
- Afstand indkøb 600 m
- Spa Ja
- Sauna Ja
- Internet Ja
- Parabol/kabel TV Ja
- Brændeovn Ja
- Aircondition Ja
- Vaskemaskine Ja
- Tørretumbler Ja
- Opvaskemaskine Ja
- Ikkeryger Ja
- Energivenligt Ja
Beskrivelse
Skønt og velbeliggende sommerhus i Lønstrup med spabad og sauna
Central beliggenhed tæt på den hyggelige hovedgade og tæt på den hyggelige bil-fri strand i Lønstrup
Velkommen indenfor
Køkkenet ligger i åben forbindelse til stuen som er praktisk og hyggeligt indrettet med lyse g komfortable møbler. Der er store vinduespartier i stuen som giver et dejligt lysindfald samtidig med en dejlig udsigt til haven. Der er en brændeovn som giver god varme og en hyggelig stemning. Badeværelset er rummeligt og praktisk indrettet med sauna og spabad.
Nyd livet udenfor
Huset ligger på en havegrund i et skønt sommerhusområde, som ligger tæt på både strand og by. Der er god randbeplantning så huset ligger dejligt i læ. Fra husets store terrasse kan man sidde på den overdækkede terrasse og følge med i livet i haven.
Kom tæt på de lokale oplevelser
Med en central beliggenhed, kan man på en kort spadseretur nå Lønstrups maleriske hovedgade med de mange kunsthåndværkere og hyggelige cafeer. I området er der mange gode udflugtsmuligheder, med bl.a Rubjerg Knude, Mårup Kirke og Skallerup Seaside Resort. Den nærmeste større by er Hjørring med mange gode shoppingmuligheder.
Husk, at du altid kan låne trækvogne, barnestole og barnesenge hos os i Lønstrup. Du kan hente dem direkte på bureauet og returnere dem til os igen, når din ferie er vel overstået.
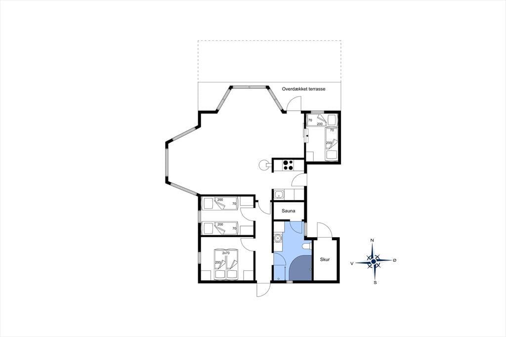
Rumindretning
- Soveværelse
- Enkelt seng - 1x70x200
- Enkelt seng - 1x70x200
- Soveværelse
- Dobbeltseng - 2x70x200
- Soveværelse
- Enkelt seng - 1x70x200
- Enkelt seng - 1x70x200
- Badeværelse
- Køkken
- Stue
- Sovehems
- Enkelt madras
- Enkelt madras
Alle faciliteter
-
Hus Info
-
Antal voksne6
-
Bruser
-
Byggeår1992
-
Grundareal / Have1182 m²
-
Husareal84 m²
-
Indendørs spabad
-
Sauna
-
WC
-
-
Afstande
-
Afstand golfbane3,5 km
-
Afstand indkøb600 m
-
Afstand restaurant550 m
-
Afstand strand560 m
-
-
Energi / Opvarmning
-
Brændeovn
-
Elvarme
-
Varmepumpe / Med køl
-
-
Hårde hvidevarer
-
Elkedel
-
Emhætte
-
Kaffemaskine
-
Kogeplader
-
Køleskab med frys40
-
Mikroovn
-
Opvaskemaskine
-
Ovn
-
Tørretumbler
-
Vaskemaskine
-
-
Multimedier
-
Dansk tvDesværre ingen TV2
-
Gratis Wi-Fi - Over 20 Mbit
-
Parabol
-
TV
-
Tysk TV
-
-
Ekstra
-
Barnestol
-
Børnevenlig
-
Golfferie
-
-
Udenfor
-
Grill
-
Gynge
-
Havemøbler
-
Liggestole
-
Overdækket terrasse
-
Parkering på grunden
-
Sandkasse
-
Åben terrasse
-
-
Diverse
-
Gulvvarme
-
-
Regler
-
Husdyr ikke tilladt
-
Opladning af elbil ikke tilladt
-
Rygning ikke tilladt
-
-
Pris inklusiv
-
Slutrengøring inkl.
-
Vand inkl.
-
-
GAMMEL
-
CD
-
DVD
-
Radio
-
Miniferie
Priser og kalender
Kalender
Pris
- Ankomst
- Afrejse
- Varighed
- 1 uge
