Hyggeligt sommerhus tæt på Vesterhavet i Rødhus
Sommerhus - 6 personer - Rødhus Klitvej - Rødhus - 9490 - Pandrup
Alternative emner
I nærheden (104)6 personer
Oversigt
Emne nr.: 121-15-0290
7 overnatninger
Fra
DKK 2.112,-
Valgfri rengøring: DKK 896,-
Hyggeligt og lyst sommerhus i Rødhus med lukket have tæt på Vesterhavet og klitter.
- Soverum 2
- Badeværelser 1
- Boligareal 76 m²
- Grundareal 150 m²
- Husdyr 2
- Tilbyder miniferie Ja
- Afstand vand 700 m
- Afstand indkøb 8 km
- Internet Ja
- Parabol/kabel TV Ja
- Brændeovn Ja
- Indhegnet område Ja
- Opvaskemaskine Ja
- Ikkeryger Ja
- Energivenligt Ja
Beskrivelse
Hyggelig og lyst indrettet feriebolig beliggende i feriebyen lige bag klitterne til stranden og Vesterhavet i et naturskønt og kuperet område.
Sommerhuset er særdeles velholdt med lukket have.
Indretning
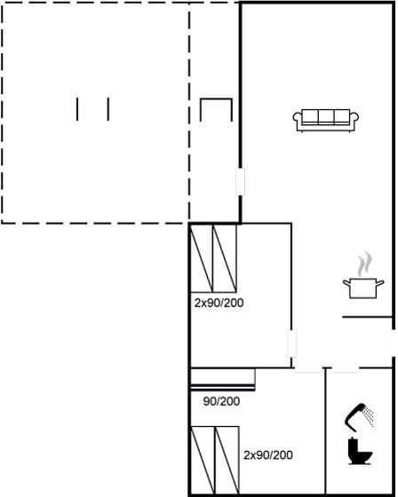
Sommerhuset egner sig til 6 personer. Ferieboligen er på 76 m² og er bygget i 1979. I 2013 gennemgik ferieboligen en renovering. Det er tilladt at medbringe 2 husdyr. Ferieboligen er udstyret med 1 energibesparende luft til luft varmepumpe. Frysekapacitet på 12 liter. Der er desuden brændeovn.
Udenfor
Ferieboligen er beliggende på en 150 m² stor naturgrund. Grunden er indhegnet. Der er 700 m til havet. Nærmeste forretning er beliggende i en afstand af 8000 m. Der er en golfbane i en afstand af 6000 m. Til ferieboligen hører 40 m² terrasseareal. Desuden er der 10 m² overdækket terrasse. Grill til rådighed. Parkering ved ferieboligen.
Soveforhold
Der er i alt 2 soveværelser. Sovepladserne fordeler sig på: 6 sovepladser i enkeltsenge. 2 sovepladser i køjeseng. 2 af disse sovepladser befinder sig på husets hems.
Køkken
Køkkenet er udstyret med 1 køleskab. Der er 4 keramiske kogeplader, varmluftovn, mikrobølgeovn samt opvaskemaskine.
Toilet og bad
Der er 1 badeværelse med bruseniche og 1 toilet.
Multimedier
I ferieboligen er der 1 TV.1 Chromecast. Der er mindst 4 danske kanaler. 1-3 svenske kanaler. 1-3 norske kanaler. 1-3 tyske kanaler. Der er trådløst internet til rådighed.
Værd at vide
Ingen udlejning til ungdomsgrupper, hvor alle er 15-25 år. Rygning ikke tilladt. Ved overtrædelse af forbuddet opkræves et gebyr på minimum DKK 3.000,-.
Indretning
Sommerhuset egner sig til 6 personer. Ferieboligen er på 76 m² og er bygget i 1979. I 2013 gennemgik ferieboligen en renovering. Det er tilladt at medbringe 2 husdyr. Ferieboligen er udstyret med 1 energibesparende luft til luft varmepumpe. Frysekapacitet på 12 liter. Der er desuden brændeovn.
Udenfor
Ferieboligen er beliggende på en 150 m² stor naturgrund. Grunden er indhegnet. Der er 700 m til havet. Nærmeste forretning er beliggende i en afstand af 8000 m. Der er en golfbane i en afstand af 6000 m. Til ferieboligen hører 40 m² terrasseareal. Desuden er der 10 m² overdækket terrasse. Grill til rådighed. Parkering ved ferieboligen.
Soveforhold
Der er i alt 2 soveværelser. Sovepladserne fordeler sig på: 6 sovepladser i enkeltsenge. 2 sovepladser i køjeseng. 2 af disse sovepladser befinder sig på husets hems.
Køkken
Køkkenet er udstyret med 1 køleskab. Der er 4 keramiske kogeplader, varmluftovn, mikrobølgeovn samt opvaskemaskine.
Toilet og bad
Der er 1 badeværelse med bruseniche og 1 toilet.
Multimedier
I ferieboligen er der 1 TV.1 Chromecast. Der er mindst 4 danske kanaler. 1-3 svenske kanaler. 1-3 norske kanaler. 1-3 tyske kanaler. Der er trådløst internet til rådighed.
Værd at vide
Ingen udlejning til ungdomsgrupper, hvor alle er 15-25 år. Rygning ikke tilladt. Ved overtrædelse af forbuddet opkræves et gebyr på minimum DKK 3.000,-.
Vores gæsteanmeldelser Eksterne anmeldelser
Alle faciliteter
-
Adgang til ferieboligen
-
Nøgleboks med kode
-
-
Bemærk
-
Ingen håndværkere efter anmodning
-
Ingen ungdomsgrupper efter anmodning
-
Rygning er forbudt
-
-
Indretning
-
Antal voksne inkl. 4-11 år6
-
Bebygget areal76 m²
-
Brændeovn1
-
Byggeår1979
-
Feriebolig
-
Frysekapacitet (antal liter)12
-
Husdyr2
-
Renovering2013
-
Varmepumpe
-
Varmepumpe luft til luft
-
-
Køkken
-
Antal keramiske kogeplader4
-
Køleskab1
-
Mikrobølgeovn1
-
Opvaskemaskine1
-
Varmluftovn1
-
-
Multimedier
-
> 3 danske kanaler
-
0-3 norske kanaler
-
0-3 svenske kanaler
-
0-3 tyske kanaler
-
Antal tv'er1
-
Chromecast1
-
Download100
-
Trådløst internet
-
Upload100
-
-
Soveforhold
-
Antal soveværelser2
-
Enkeltseng (antal sovepladser)6
-
Hems (antal sovepladser)
-
Køjeseng (antal sovepladser)2
-
Soveplads ikke i soveværelset
-
-
Toilet og bad
-
Antal badeværelser1
-
Antal toiletter1
-
Brusekabine
-
-
Udenfor
-
Butik8 km
-
Golfbane6 km
-
Grill1
-
Hav700 m
-
Indhegnet plads
-
Natursted
-
Overdækket terrasse10 m²
-
Parkeringsplads ved huset
-
Størrelse af grunden150 m²
-
Terrasse40 m²
-
Miniferie
Der er begrænset mulighed for miniferie hele året, typisk uden for højsæsonen.
Priser og kalender
Kalender
Varighed
Pris
Periode
- Ankomst
- Afrejse
- Varighed
- 1 uge
Personer
Op til 6 personer
Bemærk
Ankomst er ikke valgt.
