Sommerhus - 6 personer - Langdalsvej - Sønderstrand - 6792 - Rømø
Alternative emner
I nærheden (434)Oversigt
- Soverum 3
- Badeværelser 1
- Boligareal 86 m²
- Grundareal 2.500 m²
- Husdyr 1
- Tilbyder miniferie Nej
- Afstand vand 1 km
- Afstand indkøb 1.400 m
- Sauna Ja
- Internet Ja
- Parabol/kabel TV Ja
- Brændeovn Ja
- Vaskemaskine Ja
- Opvaskemaskine Ja
- Ikkeryger Ja
- Ladestander til elbil Ja
- Energivenligt Ja
Beskrivelse
I kommer til at bo med skoven som nabo og blot en kilometer fra den fantastisk smukke Sønderstrand, når I holder ferie i dette flot renoverede sommerhus.
Velkommen indenfor
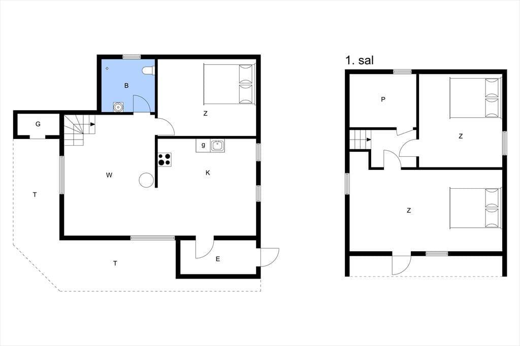
Sommerhuset passer perfekt ind i de naturskønne omgivelser, som det står her med sit høje stråtag og mørkebrun træfacade. Inden døre er det tydeligt at se, at huset har gennemgået en grundig renovering i 2022, for der er moderne møblement og lyse farvetoner på væggene. Samtidig har huset bevaret sin ånd og rare atmosfære, så det er virkelig et sted, der indbyder til hygge og afslapning. Et veludstyret køkken med spiseplads ligger i åben forbindelse med stuen, som byder på brændeovn, varmepumpe, en skøn sofaafdeling og fladskærms-tv med Chromecast. Et pænt brusebadeværelse og et soveværelse med dobbeltseng ligger også her i stueplan, og hvis I tager trappen op til førstesalen, finder I yderligere to soveværelser, der også er med dobbeltseng. Det største soveværelse har derudover en indbygget briks i den ene side, og det store vinduesparti giver jer direkte adgang til en sydvendt altan.
Nyd livet udenfor
Førstesalens overdækkede altan er en hyggelig opholdsplads, og når I vågner om morgenen, kan I eventuelt lige starte med at sidde her og vågne til fuglesangen og den fine udsigt over naturgrunden. Hvis vejret er godt, kan I også flytte morgenmaden ud på terrassen, der breder sig øst, syd og vest for huset – og I kan sågar benytte jer af den udendørs bruser og den skønne tøndesauna, som er placeret på grunden. I løbet af dagen kan børnene gynge eller lege i sandkassen samt lege gemme mellem grundens træer, og om aftenen er der mulighed for at tænde grillen og samles rundt om havebordet.
Kom tæt på de lokale oplevelser
Sommerhuset ligger i den allernordligste ende af Sønderstrand-området med Vråby Plantage, der breder sig på den anden side af vejen. Hvis I har hund med på ferie, er det rart, at der kun er 300 meter til den lokale hundeskov, og I kan selvfølgelig også tage det firbenede familiemedlem med i snor rundt på skovstierne og Rømøs hyggelige veje. Vil I til stranden, er der omtrent en kilometer til Sønderstrand, der med sine vidtstrakte sandvidder er perfekt til kitebuggy, blokart og andre former for vindsport. En dukkert i Vesterhavet kan også sagtens komme på tale, og hvis I bliver sultne af alle aktiviteterne, har I få kilometer til Havnebys supermarked, en fiskehandler og restauranter.
Stik til opladning af elbil, sidder i teknikrum
Vores gæsteanmeldelser Eksterne anmeldelser
Faciliteter
-
Hus Info
-
Antal husdyr1
-
Antal voksne6
-
Bruser
-
Byggeår1972
-
Grundareal / Naturgrund2500 m²
-
Husareal86 m²
-
Renoveringsår2022
-
SaunaTøndesauna
-
WC
-
-
Afstande
-
Afstand golfbane2 km
-
Afstand indkøb / Helårsbutik1,4 km
-
Afstand restaurant1,4 km
-
Afstand strand / Sandstrand1 km
-
Afstand vadehav1,2 km
-
-
Energi / Opvarmning
-
Brændeovn
-
Elvarme
-
Varmepumpe
-
-
Hårde hvidevarer
-
Elkedel
-
Emhætte
-
Fryser63
-
Kaffemaskine
-
Kogeplader
-
Køleskab206
-
Mikroovn
-
Opvaskemaskine
-
Ovn
-
Strygebræt
-
Strygejern
-
Vaskemaskine
-
-
Multimedier
-
Chromecast
-
Dansk tv
-
Engelsk tv
-
Gratis Wi-Fi - Over 100 Mbit
-
Kabel-TV
-
Norsk TV
-
Svensk TV
-
TV
-
Tysk TV
-
-
Ekstra
-
Barneseng
-
Barnestol
-
Dart
-
Golfferie
-
-
Udenfor
-
Grill
-
Gynge
-
Havemøbler
-
Liggestole2
-
Sandkasse
-
Terrasse
-
Udendørs bruser
-
-
Diverse
-
2 x Dobbeltseng 180 x 200
-
Dobbeltseng 140 x 200
-
-
Regler
-
Husdyr: alle slags husdyr tilladt
-
Opladning af elbil tilladt / CEE-stik med 16 ampere forefindes, medbring kabel
-
Rygning ikke tilladt
-
-
Pris inklusiv
-
Slutrengøring inkl.
-
Vand inkl.
-
-
GAMMEL
-
Radio
-
Priser og kalender
Kalender
-
december 2025
ma ti on to fr lø sø 49 1 2 3 4 5 6 7 50 8 9 10 11 12 13 14 51 15 16 17 18 19 20 21 52 22 23 24 25 26 27 28 1 29 30 31 2 -
januar 2026
ma ti on to fr lø sø 1 1 2 3 4 2 5 6 7 8 9 10 11 3 12 13 14 15 16 17 18 4 19 20 21 22 23 24 25 5 26 27 28 29 30 31 6
Pris
- Ankomst
- Afrejse
- Varighed
- 1 uge
