Sommerhus - 8 personer - Revlingevej - 9493 - Saltum
Alternative emner
I nærheden (306)Oversigt
- Soverum 3
- Badeværelser 2
- Boligareal 125 m²
- Grundareal 6.700 m²
- Husdyr 2
- Tilbyder miniferie Nej
- Afstand vand 100 m
- Afstand indkøb 1.600 m
- Spa Ja
- Sauna Ja
- Internet Ja
- Parabol/kabel TV Ja
- Brændeovn Ja
- Udsigt til vand Ja
- Vaskemaskine Ja
- Tørretumbler Ja
- Opvaskemaskine Ja
- Ikkeryger Ja
Beskrivelse
I får en formfuldendt ramme om ferielivet på Revlingevej 44, for dette sommerhus byder på afslappende hyggekroge, flotte udsigtspladser og sågar en lækker spaafdeling. Og så ligger husset tilmed midt i Saltums betagende klitlandskab bare 100 meter fra Vesterhavet.
Indretning
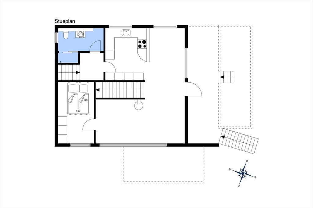
At sommerhuset er velindrettet fra kælder til kvist er bestemt ingen overdrivelse. Da huset blev moderniseret, blev underetagen omdannet til en skøn spaafdeling med hjørnespa, sauna og en lounge med direkte adgang til terrassen. I husets top er der også rart at være, for her finder I en stor hems med udsigt over klitterne og Vesterhavet. Det smukke syn får I også glæde af på førstesalen, når I slapper af i udsigtsstuen – og hvis flere sanser skal stimuleres, kan I fra etagens to soveværelser træde ud på den østvendte altan for at nyde den friske havluft og solens varme. Sommerhusets andet badeværelse og tredje soveværelse ligger i stueplan, som også byder på et stort opholdsrum med køkken og stue i åben forbindelse. Ligesom på de øvrige etager er interiøret stilfuldt og stemningen særdeles indbydende, og de mange vinduer sørger for, at I bliver badet i vestkystens smukke lys det meste af dagen.
Udendørs
Sommerhuset ligger på en 6700 m2 stor klitgrund, der har et fantastisk dyreliv året rundt. Som en praktisk forbedring er en del af grunden blevet mere plan, hvilket gør det nemmere at parkere og komme til huset. Der er også en græsplæne til leg og boldspil, mens resten af grunden er herligt kuperet med vilter beplantning. En sti fører op til en fin udsigtsplads, og omkring sommerhuset er der flere solrige terrasse med havemøbler af god kvalitet.
Beliggenhed
I kommer til at bo i bunden af den lukkede Revlingevej, og få meter fra sommerhuset fører en sti direkte over klitterne til Vesterhavet. Saltum Strand er kendt som en af Danmarks bedste badestrande, og hvis lysten til en dukkert melder sig, behøver I bare finde håndklæder og badetøj frem, før I begiver jer de få skridt gennem det varme sand. Det er sommerhusliv, når det er bedst! Med ferieadresse her får I al den fred og ro, I kan drømme om, og samtidig er I tæt på aktivitetsmuligheder for hele familien. Saltum ligger mellem Blokhus og Løkken, og I har nem adgang til skønne attraktioner som Fårup Sommerland, Børglum Kloster og Rubjerg Knude.
GRATIS! Udlån af trækvogne, barnestole og barnesenge (kan hentes og afleveres på det nærmeste bureau).
GRATIS BADELAND INKLUSIV! Fri og ubegrænset adgang til badeland (Blokhus Feriecenter, Blokhus) hele året!
Rumindretning
- Soveværelse
- Dobbeltseng - 140x200
- Soveværelse
- Dobbeltseng - 140x200
- Soveværelse
- Dobbeltseng - 140x200
- Sovehems
- Enkelt madras
- Enkelt madras
Vores gæsteanmeldelser Eksterne anmeldelser
Alle faciliteter
-
Hus Info
-
2 x Bruser
-
2 x WC
-
Antal børn2
-
Antal husdyr2
-
Antal voksne6
-
Byggeår1968
-
Grundareal / Naturgrund6700 m²
-
Havudsigt
-
Husareal125 m²
-
Indendørs spabad
-
Renoveringsår2022
-
Sauna
-
-
Afstande
-
Afstand golfbane6,9 km
-
Afstand indkøb / Sommerbutik1,6 km
-
Afstand restaurant2,8 km
-
Afstand strand / Sandstrand100 m
-
-
Energi / Opvarmning
-
Brændeovn
-
Elvarme
-
-
Hårde hvidevarer
-
Elkedel
-
Emhætte
-
Fryser100
-
Kaffemaskine
-
Kogeplader4
-
Køleskab
-
Mikroovn
-
Opvaskemaskine
-
Ovn
-
Strygebræt
-
Strygejern
-
Tørretumbler
-
Vaskemaskine
-
-
Multimedier
-
Dansk tvInkl. TV2
-
Gratis Wi-Fi - Over 100 Mbit
-
Parabol
-
TV
-
Tysk TV
-
-
Ekstra
-
Golfferie
-
-
Udenfor
-
Grill
-
Havemøbler
-
Liggestole2
-
Parasol1
-
Parkering på grunden
-
Petanque
-
Åben terrasse
-
-
Diverse
-
Gulvvarme
-
Sovesofa dobbelt
-
Åbent køkken
-
-
Regler
-
Husdyr: alle slags husdyr tilladt
-
Opladning af elbil tilladt / Medbring nødlader/mormorkabel
-
Rygning ikke tilladt
-
-
Pris inklusiv
-
Gratis adgang til Badeland / Svømmehal / Blokhus Feriecenter
-
Slutrengøring inkl.
-
-
GAMMEL
-
CD
-
DVD
-
Radio
-
Video
-
Priser og kalender
Kalender
Pris
- Ankomst
- Afrejse
- Varighed
- 1 uge
