Sommerhus - 6 personer - Sommervej 5 b - Skodbjerge - 6960 - Hvide Sande
Alternative emner
I nærheden (164)Oversigt
- Soverum 4
- Badeværelser 1
- Boligareal 99 m²
- Grundareal 2.649 m²
- Husdyr 1
- Tilbyder miniferie Nej
- Afstand vand 200 m
- Afstand indkøb 4.500 m
- Internet Ja
- Parabol/kabel TV Ja
- Brændeovn Ja
- Vaskemaskine Ja
- Opvaskemaskine Ja
- Ikkeryger Ja
- Energivenligt Ja
Beskrivelse
I det naturskønne feriehusområde Skodbjerge finder I på Sommervej 5 b dette charmerende træ-feriehus med stråtag. Sommerhuset ligger ud til det flotte og uspolerede hedelandskab og er i 1. husrække, lige bag klitterne og kun 200 meter fra stranden. Her er plads til 6 personer – perfekt til familieferien –, og her er familiens hund også velkommen.
Hyggelig og lys indretning med udestue og udsigt til naturen
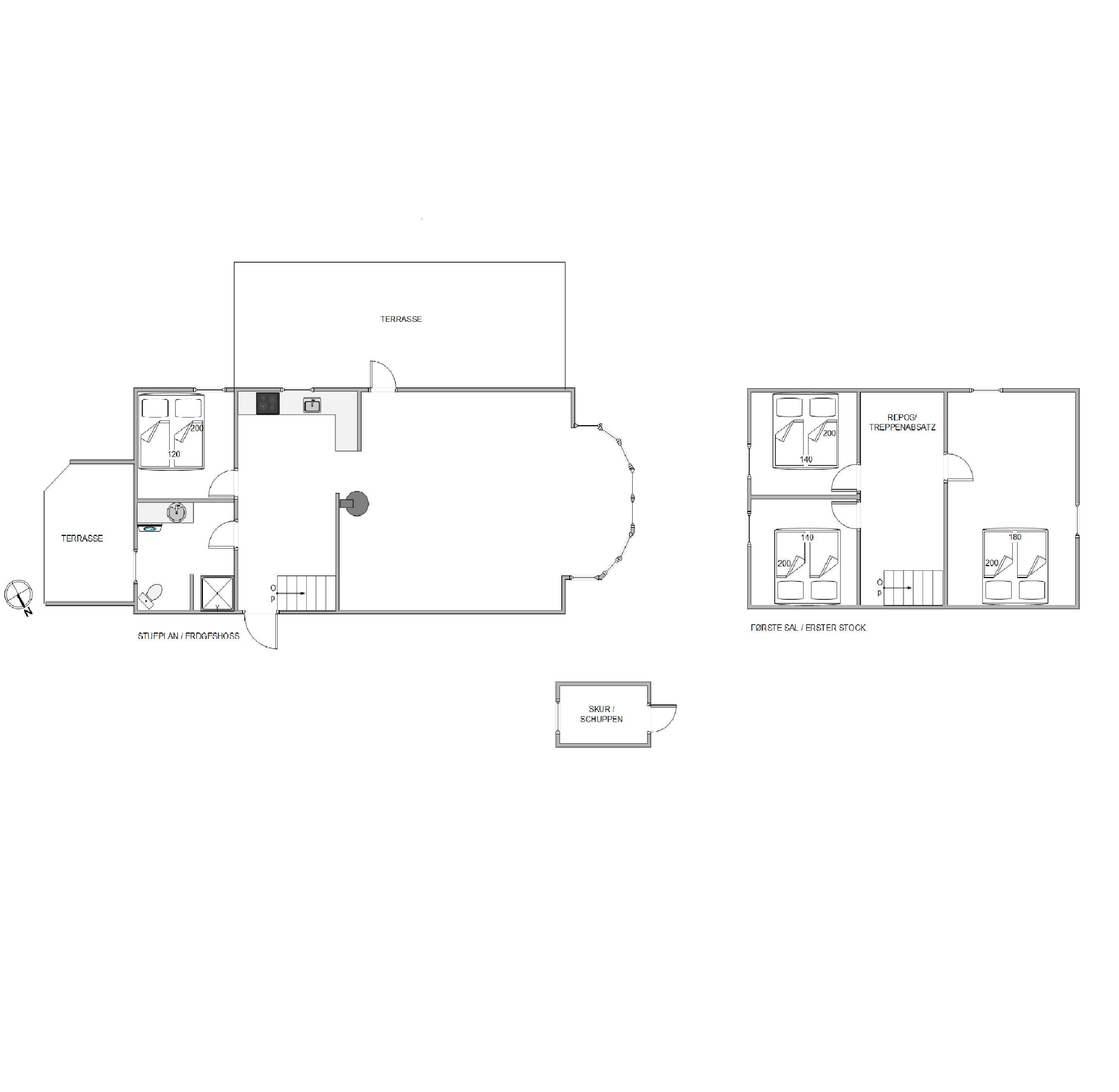
Dette skønne sommerhus er i 2 plan, hvor underetagen er domineret af det store køkken-alrum med stue og udestue. Det er et fantastisk rum med plads til det hele og fungerer som feriens naturlige samlingspunkt.
I køkkenafdelingen er der god plads til, at I kan hjælpes ad med madlavningen – og her er alt, hvad I skal bruge, bl.a. 48 l. fryser, mikroovn og opvaskemaskine.
Midt i rummet står brændeovnen, som er med til at give en dejlig jævn varme i hele rummet. Afslapning i sofaen med en kop kaffe og en god bog foran den knitrende varme ild og med naturen ”strømmende ind” igennem panoramavinduerne i udestuen er rent velvære.
Der er vinduer fra gulv til loft hele vejen rundt i udestuen, og her sidder I midt i naturen, som veksler efter årstiden. Naturen og lyset tages med helt ind i rummet.
Vågn op til den skønneste udsigt til klitterne
På feriehusets 1. sal finder I tre gode soverum med hver sin dobbeltseng. Fra soveværelset mod vest har I den flotteste udsigt over hedelandskabet og klitterne. Sover I i de østvendte soveværelser, vågner I op til solopgangen over Ringkøbing Fjord og udsigten over sommerhusområdet.
Badeværelset er praktisk indrettet, bl.a. med den uundværlige vaskemaskine, som måske især småbørnsfamilier sætter pris på.
Flere gode terrasser og kun 200 meter til stranden
Rundt om feriehuset på Sommervej 5 b finder I en hyggelig morgenterrasse mod øst, hvor I kan nyde solopgangen over Ringkøbing Fjord. På den sydvendte terrasse kan I slappe af i eftermiddagssolen fra liggestolene, og sidst på dagen kan I tænde op i grillen og tilberede et lækkert måltid under åben himmel.
Det brusende Vesterhav og den brede sandstrand ligger blot 200 meter fra ferieadressen og inviterer hele året rundt til forfriskende gåture langs vandkanten. Den salte havluft og bølgernes brusen er ren wellness!
Skodbjerge – en naturperle i Vestjylland
Skodbjerge er et mindre sommerhusområde på naturens præmisser. Her er store hedearealer, som især om efteråret er smukke, når lyngen blomstrer, og det hele står som et lilla tæppe.
Området er desuden kendetegnet ved gode cykelstier igennem sommerhusområdet og den skønne natur. Så tag cyklerne med og se naturen på nærmeste hold.
En cykeltur til Hvide Sande kan byde på softice på havnen, hvor I oplever den særlige stemning, hvor turisme og hverdag forenes. Besøg de spændende butikker – og slut dagen af med middag på en af byens gode restauranter.
Vores gæsteanmeldelser Eksterne anmeldelser
Faciliteter
-
Opholdsrum
-
Gulv: Sten/Beton
-
Radio
-
Brændeovn
-
Fladskærms-TV1
-
-
Soverum
-
Gulv: Trælaminat
-
Gulv: Sten/Beton - soverum
-
Dobbeltsenge3
-
Enkeltsenge1
-
Sovepladser6
-
Soverum4
-
1. soverum/sengestørrelser1x140x200
-
2. soverum/sengestørrelser1X190X200
-
3. soverum/sengestørrelser1x140x200
-
4. soverum/sengestørrelser1x140x200
-
-
Køkken
-
Komfur: El m. ovn
-
Køleskab
-
Opvaskemaskine
-
Mikroovn
-
Separat fryser /L48
-
-
Baderum
-
Gulvvarme bad
-
Antal badeværelser1
-
-
Objektinfo - Inde
-
Areal: Hus m²99
-
Byggeår1966
-
Barneseng1
-
Husdyr tilladt
-
Husdyr antal, max1
-
Ikke ryger hus
-
Personantal6
-
Renoveret2021
-
Danske TV-kanaler (Betalingskanaler)
-
Tyske tv-programmer
-
Varme: Elvarme
-
Varme: Varmepumpe luft til luft
-
Vaskemaskine
-
Parabol (enkelte danske og tyske kanaler)
-
Gratis fiber Internet
-
Apple TV
-
Jubilæumsmønt er udleveret
-
-
Objektinfo - ude
-
Afstand hav200 m
-
Afstand indkøb4,5 km
-
Areal: Grund m²2649
-
Grill
-
Havemøbler
-
Solvogne
-
Parasol
-
Terrasse: åben
-
Terrasse: Afskærmet
-
Redskabsrum
-
Naturgrund
-
Panoramaudsigt
-
Affald hentes:Mandag
-
Affald: Liter240
-
Gasgrill
-
-
Koncepter
-
Skiftedag: Lørdag
-
Priser og kalender
Kalender
-
juni 2026
ma ti on to fr lø sø 23 1 2 3 4 5 6 7 24 8 9 10 11 12 13 14 25 15 16 17 18 19 20 21 26 22 23 24 25 26 27 28 27 29 30 28 -
juli 2026
ma ti on to fr lø sø 27 1 2 3 4 5 28 6 7 8 9 10 11 12 29 13 14 15 16 17 18 19 30 20 21 22 23 24 25 26 31 27 28 29 30 31 32
Pris
- Ankomst
- Afrejse
- Varighed
- 1 uge
