Luksussommerhus med spa og fjordudsigt i Stauning
Sommerhus - 8 personer - Sivvænget - Stauning - 6900 - Skjern
Alternative emner
I nærheden (33)8 personer
Oversigt
Emne nr.: 121-24-3113
7 overnatninger
Fra
DKK 4.667,-
Valgfri rengøring: DKK 1.807,-
Luksussommerhus i Stauning med spa, sauna og fjordudsigt tæt på natur og havn.
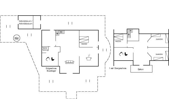
- Soverum 4
- Badeværelser 2
- Boligareal 138 m²
- Grundareal 1.200 m²
- Husdyr 1
- Tilbyder miniferie Ja
- Afstand vand 400 m
- Afstand indkøb 1 km
- Spa Ja
- Sauna Ja
- Internet Ja
- Parabol/kabel TV Ja
- Brændeovn Ja
- Aktivitetsrum Ja
- Gode fiskeforhold Ja
- Udsigt til vand Ja
- Vaskemaskine Ja
- Tørretumbler Ja
- Opvaskemaskine Ja
- Ikkeryger Ja
- Ladestander til elbil Ja
- Energivenligt Ja
Beskrivelse
Et flot luksussommerhus i 2 plan, beliggende på en skøn naturgrund, hvor der fra 1. sal er udsigt over Ringkøbing Fjord. Huset er bygget i træ med stråtag 2008. Til huset hører stort såvel åbent som overdækket terrasseareal med div. havemøbler. Desuden findes der en udendørs sauna til 8 personer og en udendørs spa til 6 personer, som kan benyttes hele året. Desuden balkon.
Til huset hører et aktivitetsrum, som er indrettet med poolbord, bordfodbold, elektronisk dart og TV. Indvendigt er der trægulve overalt, dog opvarmet klinkegulv i gangen og gulvtæpper på 1. sal. Der er 2 lækre badeværelser, begge med gulvvarme og bruseniche. I det store badeværelse i stueetagen er der desuden et badekar.
Moderne og veludstyret køkken med komfur med keramiske kogeplader og varmluftovn, mikrobølgeovn, opvaskemaskine og fryser. God spiseplads. Hyggelig stue med brændeovn samt TV med parabol (digital). 1 soveværelse med dobbeltseng. På 1. sal er der 3 soveværelser, 1 med dobbeltseng og 2 med hver 2 enkeltsenge. På 1. sal findes det ene af husets badeværelser, en hyggelig stue med ekstra TV (ingen antennemodtagelse) og DVD-afspiller samt balkon, hvorfra udsigten over fjorden kan nydes.
Af yderligere udstyr kan gratis, trådløs internetforbindelse (computer skal medbringes), vaskemaskine, tørretumbler samt ekstra fryser i redskabsrum nævnes. Der er installeret energibesparende varmepumpe/aircondition. Til de mindste feriegæster findes der puslepude, barneseng og høj barnestol samt virkelig skøn og stor sandkasse med div. legeredskaber, gynge og legehus. Desuden findes der udendørs fiskerenseplads med vask. Der er installeret stik til opladning af elbil (CEE stik) med 11 kW ladeeffekt
Et moderne sommerhus, kun 400 m fra Ringkøbing Fjord, beliggende i et område, som er rigt på naturoplevelser. Gå en tur ned til den lille hyggelige havn i Stauning og oplev stemningen. Her er der også restaurant og kunstigt anlagt bade-soppe-strand, velegnet til børn.
Værd at vide
Ingen udlejning til ungdomsgrupper, hvor alle er 15-25 år. Rygning ikke tilladt. Ved overtrædelse af forbuddet opkræves et gebyr på minimum DKK 3.000,-.
Værd at vide
Ingen udlejning til ungdomsgrupper, hvor alle er 15-25 år. Rygning ikke tilladt. Ved overtrædelse af forbuddet opkræves et gebyr på minimum DKK 3.000,-.
Vores gæsteanmeldelser Eksterne anmeldelser
Alle faciliteter
-
Adgang til ferieboligen
-
Nøgleboks med kode
-
-
Aktivitetsrum
-
Aktivitetsrum
-
Bordfodbold
-
Dart
-
Poolbord
-
-
Bemærk
-
Aktivitetshus
-
Ingen ungdomsgrupper efter anmodning
-
Lystfiskerhus
-
Rygning er forbudt
-
-
Detaljer lystfiskerhuse
-
Lystfiskevand Put & Take
-
Udendørs bord med skærebræt
-
Udendørs vask
-
-
Indretning
-
Antal børn (0-3 år)1
-
Antal voksne inkl. 4-11 år8
-
Bebygget areal138 m²
-
Brændeovn1
-
Byggeår2008
-
Feriebolig
-
Frysekapacitet (antal liter)265
-
Husdyr1
-
Højstol1
-
Puslebord
-
Renoveringsår2020
-
Tørretumbler1
-
Varmepumpe
-
Vaskemaskine1
-
-
Køkken
-
Antal keramiske kogeplader4
-
Køleskab1
-
Mikrobølgeovn1
-
Opvaskemaskine1
-
Varmluftovn1
-
-
Multimedier
-
> 3 danske kanaler
-
> 3 tyske kanaler
-
Antal tv'er3
-
DVD1
-
Playstation 3
-
Trådløst internet
-
-
Soveforhold
-
Antal soveværelser4
-
Barneseng1
-
Dobbeltseng (antal sovepladser)4
-
Enkeltseng (antal sovepladser)4
-
-
Spa
-
Udendørs forfyldt spabad (antal personer)6
-
-
Toilet og bad
-
Antal badeværelser2
-
Antal toiletter2
-
Badekar
-
Brusekabine
-
Gulvvarme1
-
-
Udenfor
-
Butik1 km
-
CEE fatning
-
Elbil hjemmeoplader
-
Fjord400 m
-
gynge
-
KW udgangseffekt11
-
Natursted
-
Overdækket terrasse10 m²
-
Parkeringsplads ved huset
-
Redskabsskur
-
Sandkasse
-
Størrelse af grunden1200 m²
-
Terrasse
-
Terrasse200 m²
-
Udendørs sauna
-
-
Udsigt
-
Udsigt til fjorden fra sommerhuset
-
Miniferie
Der er begrænset mulighed for miniferie hele året, typisk uden for højsæsonen.
Priser og kalender
Kalender
Varighed
Pris
Periode
- Ankomst
- Afrejse
- Varighed
- 1 uge
Personer
Op til 8 personer
Bemærk
Ankomst er ikke valgt.
