Moderne sommerhus ved Tornby Strand med stor grund
Sommerhus - 4 personer - Kragemarken - 9850 - Tornby
Alternative emner
I nærheden (102)4 personer
Oversigt
Emne nr.: 123-LN2050
7 overnatninger
Fra
DKK 3.769,-
Inkl. rengøring og forsikring
4
personer
Hyggeligt sommerhus ved Tornby Strand med moderne faciliteter og plads til 4 personer og 2 husdyr.
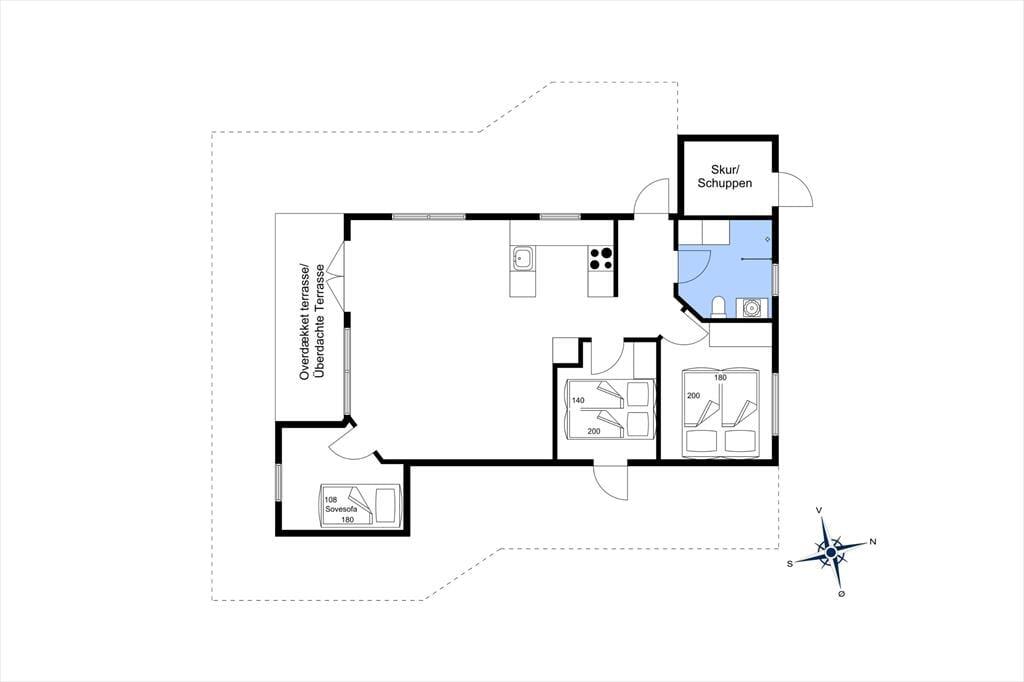
- Soverum 3
- Badeværelser 1
- Boligareal 73 m²
- Grundareal 2.500 m²
- Husdyr 2
- Tilbyder miniferie Ja
- Afstand vand 1.350 m
- Afstand indkøb 2.800 m
- Internet Ja
- Parabol/kabel TV Ja
- Aircondition Ja
- Vaskemaskine Ja
- Tørretumbler Ja
- Opvaskemaskine Ja
- Ikkeryger Ja
- Energivenligt Ja
Beskrivelse
Sommerhus i Tornby Strand, Nordjylland, med plads til 4 voksne og 2 husdyr. Der er en hyggelig indretning, og du finder desuden vaskemaskine, opvaskemaskine og tørretumbler i boligen.
Når du lejer denne feriebolig har du adgang til internet. Der er 1.350 meter til nærmeste strand og 2.800 meter til nærmeste indkøbsmuligheder.
Boligen er på 73 m² og ligger på en 2.500 m² stor grund.
Når du lejer denne feriebolig har du adgang til internet. Der er 1.350 meter til nærmeste strand og 2.800 meter til nærmeste indkøbsmuligheder.
Boligen er på 73 m² og ligger på en 2.500 m² stor grund.
Alle faciliteter
-
Hus Info
-
Antal husdyr2
-
Antal voksne4
-
Bruser
-
Byggeår2021
-
Grundareal / Naturgrund2500 m²
-
Husareal73 m²
-
WC
-
-
Afstande
-
Afstand golfbane6,4 km
-
Afstand indkøb / Helårsbutik2,8 km
-
Afstand restaurant1,3 km
-
Afstand strand1,4 km
-
-
Energi / Opvarmning
-
Elvarme
-
Varmepumpe / Med køl
-
-
Hårde hvidevarer
-
Elkedel
-
Emhætte
-
Kogeplader
-
Køleskab med frys
-
Opvaskemaskine
-
Ovn
-
Strygebræt
-
Strygejern
-
Tørretumbler
-
Vaskemaskine
-
-
Multimedier
-
Dansk tv
-
Gratis Wi-Fi - Over 300 Mbit
-
Kabel-TV
-
Norsk TV
-
Svensk TV
-
TVSmart TV
-
Tysk TV
-
-
Ekstra
-
Golfferie
-
-
Udenfor
-
GrillKul
-
Havemøbler
-
Liggestole
-
Parasol
-
Parkering på grunden
-
Udendørs bruser
-
-
Diverse
-
2 x Gulvvarme
-
Dobbeltseng 1X140X200
-
Dobbeltseng 2x90x200
-
Sovesofa dobbelt1x108x200
-
-
Regler
-
Opladning af elbil tilladt
-
Rygning ikke tilladt
-
-
Pris inklusiv
-
Slutrengøring inkl.
-
Vand inkl.
-
Miniferie
Der er begrænset mulighed for miniferie hele året, typisk uden for højsæsonen.
Priser og kalender
Kalender
Varighed
Personer
Pris
Periode
- Ankomst
- Afrejse
- Varighed
- 1 uge
Personer
Ingen personer er valgt
Bemærk
Ankomst er ikke valgt.
Der er ikke valgt personer.
