Sommerhus - 4 personer - Sletten - Tranum Klit - 9460 - Brovst
Alternative emner
I nærheden (40)Oversigt
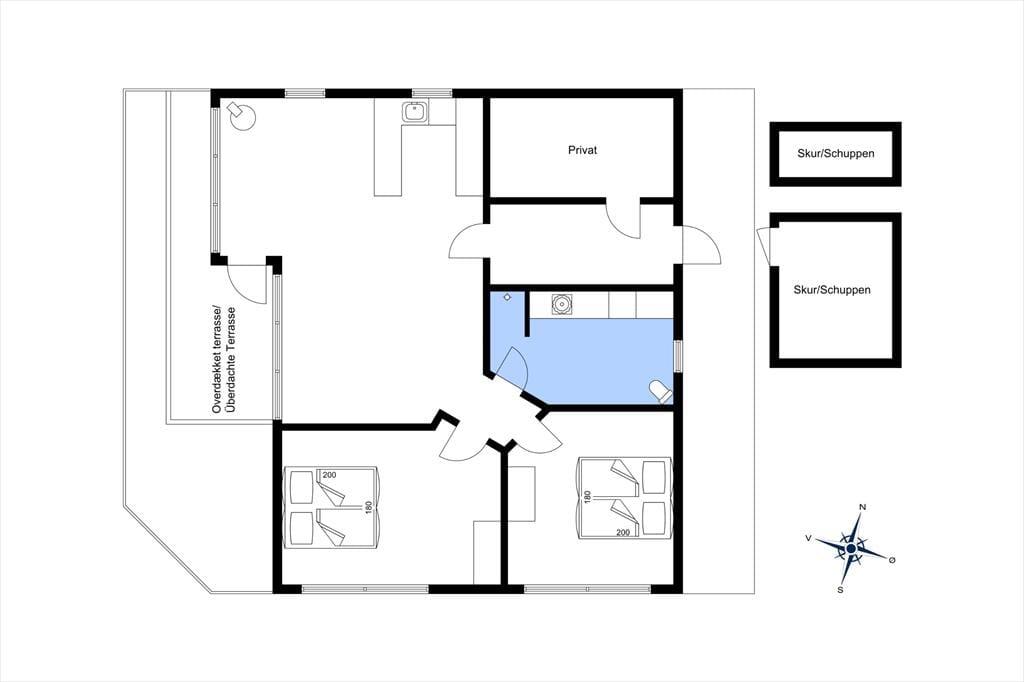
- Soverum 2
- Badeværelser 1
- Boligareal 68 m²
- Grundareal 1.257 m²
- Husdyr 2
- Tilbyder miniferie Nej
- Afstand vand 170 m
- Afstand indkøb 4.700 m
- Internet Ja
- Parabol/kabel TV Ja
- Brændeovn Ja
- Vaskemaskine Ja
- Opvaskemaskine Ja
- Ikkeryger Ja
- Ladestander til elbil Ja
- Energivenligt Ja
Beskrivelse
Ferie i afslappende og smukke omgivelser tæt på naturen.
Velkommen indenfor
Sommerhuset er lyst og tidssvarende indrettet, og alle vil hurtigt føle sig velkomne og godt tilpas i disse rammer. Det helt centrale rum er det åbne og kombinerede køkken-og opholdsrum med et stort vinduesparti og en dejlig udsigt til naturen udenfor. I det ene hjørne står en flot brændeovn, og med ild i den indfinder den helt rigtige feriestemning sig på ingen tid, og enhver gråvejrsdag er reddet. Derudover råder sommerhuset over to soveværelser med dobbeltsenge og et badeværelse med bruser og vaskemaskine. Medbring gerne pc eller tablet hjemmefra, og brug det trådløse internet til at søge oplysninger om områdets mange attraktioner og seværdigheder. Alt i alt tilbyder dette sommerhus de helt ideelle rammer for den næste par- eller familieferie i Nordjylland.
Nyd livet udenfor
Den flotte og kuperede naturgrund er fyldt med lyng, højt græs og klitter og ligger i komplet fred og ro. Mod sydvest ligger en stor og delvist overdækket terrasse, helt oplagt til at nyde alle de gode soltimer og tilberede det ene lækre grillmåltid efter det andet.
Kom tæt på de lokale oplevelser
Kun få hundrede meter fra sommerhuset finder man Vesterhavet; man kan enten gå ad Sletten-Redningsvejen og klitterne det sidste stykke eller tage nedkørslen ved den nærtliggende Strandvejen. I Hjortdal-området er mange gode stier til vandre-, løbe- og cykelture, og ofte belønnes man med den mest fantastiske udsigt over Jammerbugten fra de høje bakker, mens man i Tranum Klitplantage kan komme helt tæt på skovens træer og dyr. I lokalområdet findes også mange gallerier og kunsthåndværkere; Vesterhavets lys og farver inspirerer til mange unikke kunststykker!
Husk, at du altid kan låne trækvogne, barnestole og barnesenge hos os. Du kan hente dem direkte på bureauet og returnere dem til os igen, når din ferie er vel overstået.
Vores gæsteanmeldelser Eksterne anmeldelser
Alle faciliteter
-
Hus Info
-
Antal husdyr2
-
Antal voksne4
-
Bruser
-
Byggeår2003
-
Grundareal / Naturgrund1257 m²
-
Husareal68 m²
-
WC
-
-
Afstande
-
Afstand golfbane14 km
-
Afstand indkøb / Helårsbutik4,7 km
-
Afstand restaurant200 m
-
Afstand strand / Sand-/stenstrand170 m
-
-
Energi / Opvarmning
-
Brændeovn
-
Elvarme
-
Varmepumpe / Uden køl
-
-
Hårde hvidevarer
-
Elkedel
-
Emhætte
-
Kaffemaskine
-
Komfur
-
Køleskab med frys20
-
Mikroovn
-
Opvaskemaskine
-
Vaskemaskine
-
-
Multimedier
-
Chromecast
-
Dansk tvInkl. TV2
-
Gratis Wi-Fi - Over 100 Mbit
-
Norsk TV
-
Parabol
-
Svensk TV
-
TV
-
Tysk TV
-
-
Ekstra
-
Barneseng
-
Barnestol
-
Vandrevenlig
-
-
Udenfor
-
Grill
-
Havemøbler
-
Liggestole2
-
Overdækket terrasse
-
Parasol1
-
Parkering på grunden
-
Åben terrasse
-
-
Diverse
-
2 x Dobbeltseng 180x200
-
2 x Gulvvarme
-
Afmærkede vandreruter i nærheden
-
-
Regler
-
Husdyr: alle slags husdyr tilladt
-
Opladning af elbil tilladt / CEE-stik med 16 ampere forefindes, medbring kabel
-
Rygning ikke tilladt
-
-
Pris inklusiv
-
Slutrengøring inkl.
-
Vand inkl.
-
-
GAMMEL
-
CD
-
DVD
-
Radio
-
Priser og kalender
Kalender
Pris
- Ankomst
- Afrejse
- Varighed
- 1 uge
