Sommerhus - 6 personer - Svingelvej - Tversted - 9881 - Bindslev
Alternative emner
I nærheden (252)Oversigt
- Soverum 3
- Badeværelser 1
- Boligareal 57 m²
- Grundareal 1.876 m²
- Husdyr 1
- Tilbyder miniferie Ja
- Afstand vand 800 m
- Afstand indkøb 650 m
- Internet Ja
- Brændeovn Ja
- Vaskemaskine Ja
- Tørretumbler Ja
- Opvaskemaskine Ja
- Ikkeryger Ja
- Energivenligt Ja
Beskrivelse
Uanset om det er solen, der skinner ind gennem ovenlysvinduerne, eller om brændeovnens flammer lyser op i aftenmørket, kan du se frem til et skønt ferieliv i dette dejlige sommerhus. Ude er der også godt at være på den store naturgrund, og selvom huset ligger roligt placeret på en lukket vej, har du samtidig nem adgang til Tversteds bymidte og til stranden.
Velkommen indenfor
Efter en vellykket renovering i 2023 fremstår alle sommerhusets rum lyse og indbydende – selv badeværelset, hvor du kan vække kroppen med et morgenbad i glasbrusenichen, så du er klar til alt, hvad feriedagen måtte bringe. Hvis du mest af alt har lyst til at tage det i helt roligt tempo, kan du blive inden døre for at spille ludo med familien eller komme videre med strikkeprojektet, mens du ser tv eller nyder varmen fra brændeovnen. I det moderne, åbne køkken har du alt, hvad du skal bruge for at lave lækker mad, og hvis vejret indbyder til at spise ude under åben himmel, gør havedøren det nemt at bære måltidet ud på terrassen.
Nyd livet udenfor
Rundt om sommerhuset har du flere terrasser at vælge imellem, så du kan sætte dig lige der, hvor der er mest sol og læ. Den kuperede naturgrund er med til at skærme udearealerne af, og det er for øvrigt også skønt at have noget grønt at kigge på, når du sidder der og nyder den friske luft og den rolige atmosfære. Får du og familien lyst til at grille om aftenen, er der mulighed for det – og så er det selvfølgelig helt op til jer, om I slutter dagen af med at blive siddende ude i det fri, eller om I begiver jer ned til stranden for at nyde solnedgangen fra vandkanten.
Kom tæt på de lokale oplevelser
Fra den lukkede Svingelvej får du nemt ved at komme rundt i Tversted. Takket være byens små stier og rolige veje er der ikke langt hen til Tannisbugtvej med supermarked, butikker og spisesteder, og det er også muligt at nå stranden til fods. Efter en dukkert i Vesterhavet og et spil strandtennis i vandkanten er det måske tid til en is – og så skal du blot vælge, hvilke af Tversteds populære ishuse, du vil prøve i dag. Fra sommerhuset kan cyklen eller bilen hurtigt føre dig hen til den store Tversted Klitplantage, og hvis du vil tage familien med på en lidt længere udflugt, kan turen gå til ørnereservatet Eagleworld, Råbjerg Mile, Skagen eller en af Nordjyllands andre fine seværdigheder.
Husk, at du altid kan låne trækvogne, barnestole og barnesenge hos os i Tversted. Du kan hente dem direkte på bureauet og returnere dem til os igen, når din ferie er vel overstået.
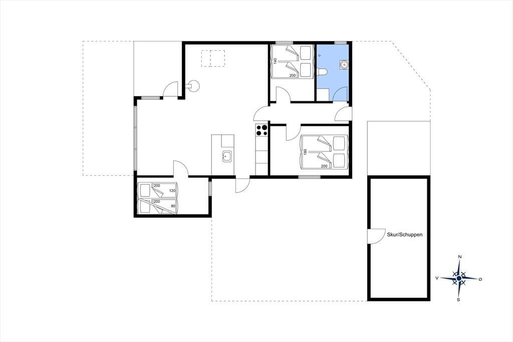
Rumindretning
- Soveværelse
- Dobbeltseng - 180x200
- Soveværelse
- Dobbeltseng - 140x200
- Soveværelse
- Dobbeltseng - 120x200
Vores gæsteanmeldelser Eksterne anmeldelser
Alle faciliteter
-
Hus Info
-
Antal husdyr1
-
Antal voksne6
-
Bruser
-
Byggeår1979
-
Grundareal / Naturgrund1876 m²
-
Husareal57 m²
-
Renoveringsår2023
-
WC
-
-
Afstande
-
Afstand golfbane9,5 km
-
Afstand indkøb / Helårsbutik650 m
-
Afstand restaurant550 m
-
Afstand strand / Sandstrand800 m
-
-
Energi / Opvarmning
-
Brændeovn
-
Elvarme
-
Varmepumpe
-
-
Hårde hvidevarer
-
2 x Opvaskemaskine
-
2 x Tørretumbler
-
2 x Vaskemaskine
-
Elkedel
-
Emhætte
-
Fryser88
-
Kaffemaskine
-
Kogeplader
-
Køleskab137
-
Ovn
-
-
Multimedier
-
Chromecast
-
Gratis Wi-Fi - Over 20 Mbit
-
TV
-
-
Ekstra
-
Golfferie
-
-
Udenfor
-
Carport
-
Delvis overdækket terrasse
-
Grill
-
Havemøbler
-
Liggestole2
-
Parkering på grunden
-
-
Diverse
-
Gulvvarme
-
Køje120x200
-
-
Regler
-
Husdyr: alle slags husdyr tilladt
-
Opladning af elbil ikke tilladt
-
Rygning ikke tilladt
-
-
Pris inklusiv
-
Slutrengøring inkl.
-
Vand inkl.
-
Miniferie
Priser og kalender
Kalender
Pris
- Ankomst
- Afrejse
- Varighed
- 1 uge
