Sommerhus - 5 personer - Havbjerge - Vester Husby - 6990 - Ulfborg
Alternative emner
I nærheden (484)Oversigt
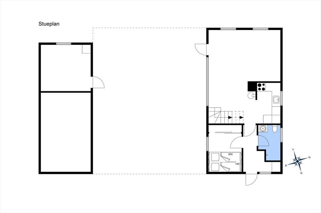
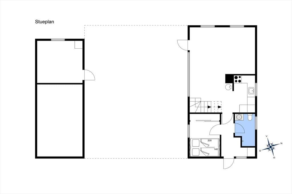
- Soverum 3
- Badeværelser 1
- Boligareal 99 m²
- Grundareal 5.000 m²
- Husdyr Ikke tilladt
- Tilbyder miniferie Nej
- Afstand vand 900 m
- Afstand indkøb 500 m
- Internet Ja
- Parabol/kabel TV Ja
- Brændeovn Ja
- Vaskemaskine Ja
- Tørretumbler Ja
- Opvaskemaskine Ja
- Ikkeryger Ja
- Ladestander til elbil Ja
- Energivenligt Ja
Beskrivelse
Velkommen indenfor:
Langsomme hyggelige morgner for hele familien er ideelt i dette lyse og charmerende feriehus, her er der god tid til at få brygget sin morgenkaffe og hører fuglene langsomt begynde at synge, mens solen langsomt stiger op på himlen. Sæt jer i sofaen og tag et slag kort og nyd brændeovnens stille knitren inden I begiver jer ud på dagens eventyr. Nyd hinandens selskab over spisebordet imens I spiser et lækkert aftensmåltid og nyder nærværet og den gode stemning der hersker over hele huset.
Nyd livet udenfor:
Gå direkte fra stuen og ud til den store, skønne og lukkede terrasse, her er der godt med muligheder for at solbade på de behagelige liggestole i fred og ro, imens I nyder solens stråler der både giver en dejlig varme og en flot kulør. Huset ligger på en stor og dejlig naturgrund der er omgivet af træer, her er der plads til diverse udendørs aktiviteter om så I er til fodboldkamp for hele familien eller en gyngetur i gyngestativet for de mindste.
Kom tæt på lokale oplevelser:
Med blot 900 meter til det skønne og vindblæste Vesterhav er der gode muligheder for at tage en skøn morgendukkert og få startet dagen rigtigt, eller nyd en dejlig gåtur langs vandkanten mens I ser solen gå ned i horisonten. Feriehuset ligger midt i feriehusområdet Vester Husby der med sin skønne og uspolerede natur har meget at byde på. Der er utroligt gode muligheder for hyggelige gåture i naturen med både hav, klitter, skove og fjorde. Vester Husby er et område der er oplagt når I trænger til at trække stikket og slappe helt af i dejlige rolige omgivelser, men der er også gode muligheder for en aktiv ferie, så tag et smut i Husby Klitplantage og gå, løb, cykel, rid eller vandre skoven tynd på nogle af de mange afmærkede stier, og slut dagen af med en dukkert i den hyggelige badesø.
Rumindretning
- Soveværelse
- Dobbeltseng
- Soveværelse
- Enkelt seng
- Enkelt seng
- Soveværelse
- Dobbeltseng
Alle faciliteter
-
Hus Info
-
Antal voksne5
-
Bruser
-
Byggeår1968
-
Grundareal5000 m²
-
Husareal99 m²
-
WC
-
-
Afstande
-
Afstand indkøb / Sommerbutik500 m
-
Afstand strand / Sand-/stenstrand900 m
-
-
Energi / Opvarmning
-
Brændeovn
-
Elvarme
-
Varmepumpe / Uden køl
-
-
Hårde hvidevarer
-
Elkedel
-
Kaffemaskine
-
Komfur
-
Køleskab med frys
-
Mikroovn
-
Opvaskemaskine
-
Tørretumbler
-
Vaskemaskine
-
-
Multimedier
-
Gratis Wi-Fi - Under 20 Mbit
-
Parabol
-
TV
-
Tysk TV
-
-
Ekstra
-
Barnestol
-
-
Udenfor
-
Grill
-
Gynge
-
Havemøbler
-
Liggestole
-
Lukket terrasse
-
Parasol
-
Parkering på grunden
-
-
Diverse
-
2 x Flise-/klinkegulv
-
5 x Træ-/parketgulv
-
-
Regler
-
Husdyr ikke tilladt
-
Opladning af elbil tilladt / Lader til elbil forefindes (Type 2-stik, medbring kabel)
-
Rygning ikke tilladt
-
-
Pris inklusiv
-
Slutrengøring inkl.
-
Vand inkl.
-
Priser og kalender
Kalender
Pris
- Ankomst
- Afrejse
- Varighed
- 1 uge
