Sommerhus - 4 personer - Bækbyvej - Vester Husby - 6990 - Ulfborg
Alternative emner
I nærheden (378)Oversigt
- Soverum 2
- Badeværelser 1
- Boligareal 82 m²
- Grundareal 5.000 m²
- Husdyr Ikke tilladt
- Tilbyder miniferie Nej
- Afstand vand 1.900 m
- Afstand indkøb 2 km
- Sauna Ja
- Internet Ja
- Parabol/kabel TV Ja
- Brændeovn Ja
- Vaskemaskine Ja
- Opvaskemaskine Ja
- Ikkeryger Ja
Beskrivelse
Velkommen indenfor:
Ungerne kan smide sig i den dejlige sofagruppe og nyde en god film, imens brændeovnen knitrer og forældrene laver mad i det store køkken som ligger i åben forbindelse med stuen, her kan I stadigvæk være sammen selvom I laver forskellige ting, så lad snakken kører lystigt og grinene flyve gennem luften, inden I sætter jer omkring spisebordet og nyder solen som skaber flotte orange toner i hele rummet gennem de store vinduer, og omkring spisebordet kan I stadigvæk nyde brændeovnens herlige varme og hyggelige knitren. Trænger I til en afslappende stund så hop i saunaen og nyd dens afslappende varme.
Nyd livet udenfor:
Begynd morgenen langsomt inden resten af familien er stået op, med en varm lækker kop kaffe på den øst vendte terrasse og se solen gå op og hør fuglenes herlige sang. Når de mindste er stået op, er der gode muligheder for dem i haven, der er et herligt gyngestativ der opfordrer til utallige gyngeture og den dejlige sandkasse der er perfekt til at bygge sandslotte i, eller tag en fodboldkamp for hele familien på den store plæne, her kan I rigtigt give den gas og få sved på panden. Nyd jeres aftensmad på den østvendte terrasse og se solen gå ned og duggen der langsomt begynder at falde.
Kom tæt på de lokale oplevelser:
Nyd den store velplejede grund omgivet af træer i midten af Vester Husby, her har I gode muligheder for at opleve den rå og uspolerede natur der hersker i området. Med kun 1900 meter til det vilde og vindblæste Vesterhav har I gode muligheder for utallige gåture langs vandkanten. Rundt i området kan I opleve alle sider af den vilde vestjyske natur, her er båd hav, hede, skove og fjorde, så trænger I til en god gåtur er det på med skoene og så afsted på en af de afmærkede stier der løber rundt i området.
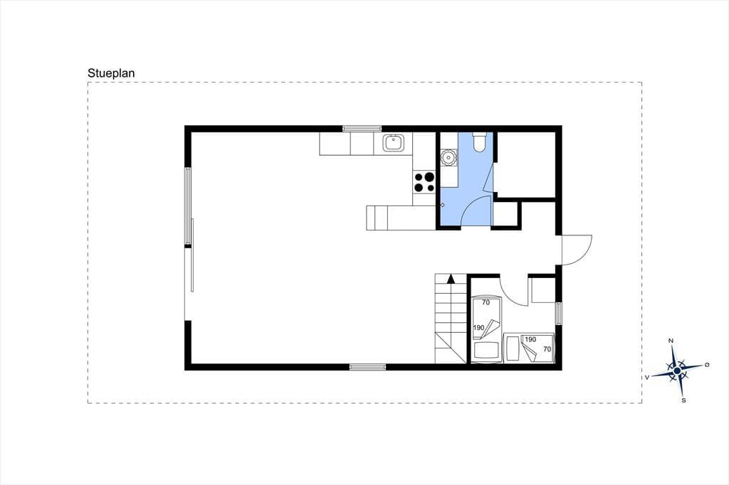
Rumindretning
- Soveværelse
- Dobbeltseng
- Soveværelse
- Enkelt seng
- Enkelt seng
Alle faciliteter
-
Hus Info
-
Antal voksne4
-
Bruser
-
Byggeår1983
-
Grundareal5000 m²
-
Husareal82 m²
-
Sauna
-
WC
-
-
Afstande
-
Afstand indkøb / Sommerbutik2 km
-
Afstand strand1,9 km
-
-
Energi / Opvarmning
-
Brændeovn
-
Elvarme
-
-
Hårde hvidevarer
-
Elkedel
-
Emhætte
-
Kaffemaskine
-
Komfur
-
Køleskab med frys
-
Mikroovn
-
Opvaskemaskine
-
Vaskemaskine
-
-
Multimedier
-
Dansk tv
-
Gratis Wi-Fi - Under 20 Mbit
-
Parabol
-
TV
-
Tysk TV
-
-
Udenfor
-
Gynge
-
Havemøbler
-
Liggestole
-
Parasol
-
Parkering på grunden
-
Sandkasse
-
Åben terrasse
-
-
Diverse
-
3 x Flise-/klinkegulv
-
Gulvvarme
-
-
Regler
-
Husdyr ikke tilladt
-
Opladning af elbil ikke tilladt
-
Rygning ikke tilladt
-
-
Pris inklusiv
-
Slutrengøring inkl.
-
Vand inkl.
-
Priser og kalender
Kalender
Pris
- Ankomst
- Afrejse
- Varighed
- 1 uge
