Sommerhus - 9 personer - Thorsvej - Nordstrand - 4500 - Nykøbing Sj
Alternative emner
I nærheden (72)Oversigt
- Soverum 3
- Badeværelser 2
- Boligareal 112 m²
- Grundareal 1.196 m²
- Husdyr 1
- Tilbyder miniferie Ja
- Afstand vand 750 m
- Afstand indkøb 2.500 m
- Internet Ja
- Brændeovn Ja
- Aircondition Ja
- Vaskemaskine Ja
- Tørretumbler Ja
- Opvaskemaskine Ja
- Ikkeryger Ja
- Ladestander til elbil Ja
- Energivenligt Ja
Beskrivelse
Slap af i nyopført skønt sommerhus
Sommerhuset er beliggende i rolige omgivelser på Nordstrand i gå-afstand til en af områdets bedste sandstrande.
Indretning - Handicapvenligt
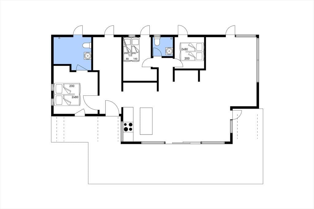
Huset er indrettet med entré, hvor der også er vaskemaskine og tørretumbler. Stort soveværelse med dobbeltseng og adgang til badeværelse. I entré er der adgang til hems med 2 sovepladser. Stort lyst køkken-alrum med god spiseplads, hyggekrog, og udgang til stor træterrasse. Soveværelse med køjeseng. Badeværelse. Soveværelse med dobbeltseng. Stue med brændeovn, TV (kun streaming), og udgang til overdækket terrasse. Herudover er haven anlagt med græsplæne og naturgrund for biodiversitetens skyld i den resterende del.
Beliggenhed/området
Sommerhuset er beliggende nær en af områdets bedste badestrande. Hvis I er til cykel, gå eller strandture ligger det helt perfekt. En tur til Rørvig bare 15 min. fra huset, hvor der er mulighed for at deltage i det berømte krabbefiskeri eller nyde en lækker frokost hos fiskemanden kan varmt anbefales. Sommerhuset er også beliggende i kort afstand fra Hovvig fuglereservat, der er værd at besøge hvis man trænger til en hyggelig gåtur og nyde den skønne natur. Børnene vil elske en dag i den populære forlystelsespark Sommerland Sjælland.
Rumindretning
- Soveværelse
- Dobbeltseng
- Soveværelse
- Dobbeltseng
- Soveværelse
- Køjeseng
- Badeværelse
- Badeværelse
- Stue
- Entre
- Sovehems
- Køkken-alrum
Vores gæsteanmeldelser Eksterne anmeldelser
Alle faciliteter
-
Hus Info
-
2 x Bruser
-
2 x WC
-
Antal børn3
-
Antal husdyr1
-
Antal voksne6
-
Byggeår2023
-
Grundareal / Have1196 m²
-
Husareal112 m²
-
-
Afstande
-
Afstand golfbane5,1 km
-
Afstand indkøb / Helårsbutik2,5 km
-
Afstand restaurant2,5 km
-
Afstand strand / Sandstrand750 m
-
Afstand svømmehal1,8 km
-
-
Energi / Opvarmning
-
Brændeovn
-
Elvarme
-
Varmepumpe / Med køl
-
-
Hårde hvidevarer
-
Elkedel
-
Emhætte
-
Fryser
-
Kaffemaskine
-
Kogeplader
-
Køleskab
-
Mikroovn
-
Opvaskemaskine
-
Ovn
-
Tørretumbler
-
Vaskemaskine
-
-
Multimedier
-
2 x TV
-
Chromecast
-
Gratis Wi-Fi - Over 100 Mbit
-
TVStreaming med Chromecast - Via eget abonnement
-
-
Ekstra
-
Barnestol
-
Børnevenlig
-
Golfferie
-
-
Udenfor
-
Bålsted1
-
GrillGas
-
Gynge
-
Havemøbler
-
Liggestole2
-
Overdækket terrasse20 m²
-
Parasol2
-
Parkering på grunden
-
Åben terrasse40 m²
-
-
Diverse
-
2 x Gulvvarme
-
3 x Flise-/klinkegulv
-
5 x Træ-/parketgulv
-
-
Regler
-
Husdyr: Kun hunde tilladt
-
Opladning af elbil tilladt / Lader til elbil forefindes (Type 2-stik, medbring kabel)
-
Rygning ikke tilladt
-
-
Pris inklusiv
-
Slutrengøring inkl.
-
Vand inkl.
-
Miniferie
Priser og kalender
Kalender
Pris
- Ankomst
- Afrejse
- Varighed
- 1 uge
